
关注我的都变美了
不信你试试
最近在网上看到了一个户型,觉得在空间的变化性上面挺好,拿过来分享一下。

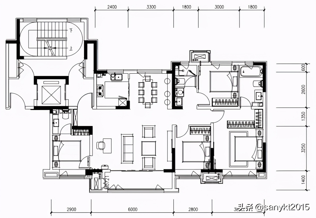
这是个洋房的户型,看样子是一梯两户的设计。洋房在规范术语中是没有这个词的,一般7层以下带电梯的多层就会冠之以洋房的说法。
洋房因为只有一部电梯,所以公摊会小一些,得房率在90%以上。这还是加了电梯的情况下,如果去掉电梯,就是以前的6层多层房了。因为电梯只有一台,所以电梯会做成刷卡对开门的样子,每一层的两户可以独享一个电梯厅,在营销说法上叫做私家电梯厅,实际上这个电梯厅是计入公摊的,只不过如果是刷卡进入的话,外人是进不来的。

也有将电梯厅做成共享的,就会跟常见的多层一样,两户是门对门的。这种门对门的看起来公摊更小一些,但是私密感就没有了。所以从楼盘品质来说,还是给每一户创造一个独立电梯厅会好一些,尽管公摊会大一些。

多层洋房相对于高层,室内的承重墙少多了,这样的空间装修公司是非常喜欢的,可以随意发挥创造性。
这个户型就具有这样的特点,比如北向那个儿童房的套间,面宽达到5.7米,中间无梁柱,就具有随家庭人口变化的成长性。

如果家里只有一个小孩,可以将这个空间作为一个儿童套房,卧室加学习室。其实好多人家里都会装出一个书房来,但是这个书房基本上就是给孩子用的,或者说孩子也不怎么用。小楼自己家里也装了一个书房,有时候把孩子放进去做作业,会发现孩子在里面发呆磨时间,写个100多字的作文能磨2个小时,这就导致晚上睡觉时间就晚了。所以有时候就会把孩子喊出来在餐桌上做作业,这样反而会促使孩子迅速做完作业。小楼也想请教一下儿童教育专家,这是怎么回事,孩子不会厌学了吧?
在这个户型的餐桌这里做了个学习台,小楼觉得这个设计师是一个为人父母的人,可能经历过这种情况,小楼觉得这个设计挺好的。

如果家里有了两个孩子,同一性别的话,可以做成户型图中的双子房,一人一半;如果是一子一女,就可以把两个房间隔开,各自使用一间,互不干扰。
这个户型另一个看点是对于在入户玄关处设计了一个储藏空间。现在家里面装修不同于开发商的样板间,不是以展示空间大为主,而是实用为主,因而好多人家里不是沿卧室墙就是在客厅墙上打一长溜柜子,尽可以做多一些储存空间,就这样,家里的东西还一定有地方存尤其是一些大件物体,像孩子的脚踏车、旅行箱等,还是觉得没有地方放。

再一个这个户型的厨房也做得挺大,面宽3.3米,进深3.5米,有12个平米大,所以在户型示意中做出了中西厨两个厨房。小楼以前一个朋友一直选不到合适的房子,因为他喜欢烹饪,看了无数的房子,就是找不出一个可以盛放他所有家伙事儿的厨房空间,估计他看了这个户型应该能接受。
当然这个户型也是有缺点的。其一就是老人房的卫生间面积太小了,而且是个暗卫。如果在右侧开一个天井,给卫生间开一个窗户就好了,面积也可以扩展一些,不至于淋浴、马桶就正对着挤在一起。

另一个是这个老人房的门是冲向横厅的,动线上面有些弱,估计客户买了房后会把门的方向改一下。
还有一个问题是公卫正对着客厅,估计不少客户会忌讳这个。不过这个卫生间的进深够长,有3.5米,做成三段式的卫生间避免尴尬。主卧室的卫生间尺寸也不算大,只有1.8米,如果能加大到2米以上,这个空间就会舒适很多了,比如保利天汇这个主卫。

洋房一般尽可能把朝南的开间拉大,做到四开间甚至五开间,所以将电梯厅、步梯间尽可能摆到北向,这可能会影响到厨房、餐厅的布置。像这个洋房户型,餐厅也客厅摆在一起成为一个大宽厅,面宽有7.5米,视野效果是极好的,但是厨房的位置可能就会位于餐客厅的正北方,会影响到所谓的南北通透性。多数横厅都会有这样的问题,所以部分客户是不愿意接受这样的户型。
不过就整体来看这样的户型,南向面宽达到了15米以上,这种尺度是一般的叠墅无法媲美的,空间感极强,居住起来比别墅要舒适多了。嗯,如果这个一楼再送个院子,再加个地下5米挑高的地下室,比别墅的体验感不差吧。当然头上有人是一些大老板无论如何无法接受的。比如爱马仕哥在深圳湾1号一掷数亿买了个大平层,不爽是个次顶楼,说要买个顶楼,结果开发商的老板说顶楼是我的。
END
小楼从事地产营销十几年,经历楼市跌宕起伏,为了给处于迷茫中的小白指点些许迷津,小楼限量开展购房咨询,有需要的可以微信搜索公众号:春小楼,扫描最新文章文末的二维码,暗号: 楼掌柜 。
如果需要加入长沙购房群与其他欲购房的同道人交流的,扫描二维码,暗号: 楼小二 。小楼工作闲下来会通过拉你入群。
小楼将客户咨询的问答都放在了知识星球上,如果想从同类中吸取购房的经验,也欢迎加入知识星球:春小楼。
END

#小白看房
●小白买房要听的精装PUA
●小白买房为什么纠结?
●小白买房的心理建设
●小开发商靠谱么?
●一味追求公摊小就好么?
●你家的物业值几分?
●小白买房为什么上了车就后悔?
●售楼处里的心理暗战
●小白买房要听的园林PUA
●实例讲给小白看房要看什么?
●小白买房要听的户型PUA
●小白买房要听的区域PUA
●物业怎么给住房增值?
●长沙买房众生相
●维权风波下的洋湖南
●怎么给客户制造纠结?
●小白买房要懂的风险控制
●小白买房要懂的客户定位
●小白买房要懂的板块
●小白买房要懂的周期论
●物业怎么给住房增值?
#X-Ray看
●腾飞的城东 佳兆业滨江四季X-ray看
●找个非洲王子做女婿 新城明昱东方X-Ray看
●高铁南站的网红盘?佳兆业城市广场X-ray看
●十年新城沉浮 旭辉·国悦府X-Ray看
●围猎长沙外滩?招商华发天汇X-Ray看
●带长沙房价飞?城发恒伟金垅项目X-Ray看
●三环发威?弘阳阳光城昕悦棠X-Ray看
●一网打尽,近郊大盘?万科·森林公园X-Ray看
●地铁(未来规划)+名校(村小待扩建)+双公园,房价顺挂,甩开二手房2000+
#区域对比
●没想到你是这样的梅溪湖
●梅二期与开福北Battle
●首付20万是买市区的老破小楼梯房还是买星沙地铁口附近的次新房?
●南部新城还有机会么?
●自贸试验区加持下的黄兴副中心还好么?
●梅溪湖二期凉了么?
●金霞北为什么难发展起来?
●洋湖南与树木岭之间怎么选?
#楼盘测评
●华润·凯旋门测评
●卓越·洋湖晴翠测评
●国欣·向荣府测评
●绿地麓云国际测评
●复地滨江金融中心测评
●富兴时代御城测评
●欣利梅溪左岸测评
●梦想滨江府1913测评
●长沙星河湾测评
●德奥悦东方测评
●龙湖春江天玺测评
#楼市小知识
●长沙买房你不得不知道的规划技术小知识(五)
●楼市不要买之负面清单七
●楼市不要买之负面清单六
●楼市不要买之负面清单五
●楼市不要买之负面清单四
●长沙买房你不得不知道的规划技术小知识(四)
●长沙买房你不得不知道的规划技术小知识(三)
● 长沙买房你不得不知道的规划技术小知识(二)
● 用房价消灭泡沫