刀把式户型,也可以叫做枪手型户型,设计起来确实有一定的难度,抛开风水不说,最关键是设计的不好,就很容易让整所房子显得很局促,很压抑,动线很不舒服。
然而,对于这个只有44.3㎡的小户型来说,设计师却大胆的使用了开放式布局,避免了房间的局促感,另外,整个房间的采用深色和原木色搭配,让整个视觉感非常协调,尤其值得称道的是,玄关很实用,卫生间也很有调性,此外,相信看过这个案例的朋友,一定会对房顶和墙面上的线管留下深刻的印象。
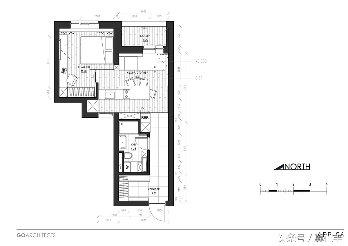
老规矩,先上户型图:

户型图

开放式布局

厨房和餐厅吧台

小餐厅和小客厅

电线管业成了装饰品

灯光设计

卧室的木条隔断

温馨的大床

走廊

使用的玄关

有调性的卫生间

有调性的卫生间
整个案例,合理的避开了户型的不足,洗浴区、生活区和休息区进行了合理划分,开放式的设计也避免了小户型的局促感,整个风格很有个性,可以说,这样的缺陷户型,依靠设计师的精心布置,竟然设计出了大名堂。
很多朋友问秀巢网小编装修流程、装修规范和验收标准之类的问题,我就不一一回答了,建议大家*载下**一个【秀巢选装修】APP,里面的“步装步美”已经说的很详细了,尤其是北京地区的业主朋友还可以通过这个APP直接选择施工队和设计师,直接节省40%左右的装修费用。
更系统的家装知识分享地——秀巢网微信公众号:shownest(长按可复制)