关注我的头条号,查看南昌更多楼盘开工案例
昨天跟一个同事聊天,问我家联泰梧桐壹号的房子可装修了,我说前段时间刚跟设计师在沟通设计方案呢?他问我花多少钱,我说估计要个几十万吧,没个几十万效果出不来,也买不到啥好东西,他一脸羡慕加不懂的表情,搞的好像我是外星人一样,难道装修花几十万很不正常吗?我家那房子这次装修完,我可是要住至少十年以上的诶!真不知道怎么说,反正我喜欢。
设计师:王美清(diguadou888 ←查看方案详细报价,可以直接加设计师微信。)
方案出品:南昌丛一楼装饰总部
职务:首席设计师
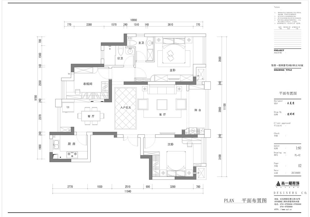
楼盘: 联泰·梧桐壹号
户型:3房2厅
面积:110
造价:9万
风格: 小美风格
主材:马可瓷砖,志帮橱柜,
项目:1.水电2.泥工3.木工吊顶4.油漆
本案小美风格,整个房型客厅餐厅结构和通风采光都不错,轻装修重装饰,局部的改造让空间最大话,后期可以根据自己的需求从新添置家具。重点打造一个温馨浪漫又具有个性的居家,而且要显得大气。在设计表现上运用比较简洁的手法,主要以实用为主。

联泰·梧桐壹号110平三房小美风装修设计效果——客厅

联泰·梧桐壹号110平三房小美风装修设计效果——餐厅

联泰·梧桐壹号110平三房小美风装修设计效果——卧室

联泰·梧桐壹号110平三房小美风装修设计效果——小孩房

户型图

平面图
买了联泰·梧桐壹号这么好的房子,你真的要好好装一装哦
——————————————最后吃我一记安利————————————————
HI,就叫我玲子,专注南昌装修15年,我在南昌,只做靠谱装修,设计、施工、管理、售后,四维一体式服务,找对人很关键。
如果您准备装修,可点开作者头像进入主页,点击正下方“我要装修”,即可直接 预约设计师!