
人防工程,也称人防工事,是指为保障战时人员与物资掩蔽、人民防空指挥、医疗救护而单独修建的地下防护建筑,以及结合地面建筑修建的战时可用于防空的地下室。 人防工程是防备敌人空袭,有效地掩蔽人员和物资,保存战争潜力的重要设施;是支持长期防御反侵略战争直至胜利的工程保障。
设计是工程的灵魂,事关整个工程的使用性能、规范施工、建筑效果、投资成本、施工效率、应用质量,很大程度上决定着工程的成败。

与一般建筑设计相比,防空地下室设计有其特殊性,也比较难于驾驭。本文从多专业的角度分析人防设计的要求,总结人防设计的方法和步骤,并结合一个实例项目,图文解读一下建筑人防是如何设计的。
人防设计难于驾驭的原因,主要原因有以下几个:
(1)涉密性。人防工程分为国防工程和民防工程,一般建筑师只会接触到民防工程。人防设计含有涉密内容,可查阅的参考类书籍较少,因《人民防空地下室设计规范》(限内部发行)仅针对民防工程,且只谈到设计标准和做法,而非设计原理,使建筑师无法理解条文制定的原因和人防使用的要求。
(2)地方性。因为不同地区的战略重要性以及人防工程管理“特殊性”的不同,所以国内很多地区要求指定当地人防设计院对此部分内容进行单独设计,造成该地区民用设计院不会也不太关心人防设计。
(3)全专业性。人防设计需要设计单位的全专业配合。
(4)平战结合性。人防设计必须考虑平战结合。一套平面需要兼顾两项功能,平战功能的转换要求增添了设计的困难,甚至有些地区人防主管部门要求递交人防部分的平时使用和战时使用两套图纸。
(5)顺序性。人防设计一般是平时功能先于战时功能,在平时功能已经设计好的图纸上再进行战时功能设计,因而受到已经形成的条条框框的约束,给人防设计带来很多困难。
(6)实践性。由于国际上已禁止进行地上核试验,且我国多年来没有经历过战事,人防功能的设计与施工没有经过实际的验证,因而无法确定很多细节是否能够与实际相符,造成不同地区对人防条文的理解和执行有偏差,也为设计增添了难度。
合理地进行人防设计,做到与平时使用功能的良好结合,首先必须理解人防工程的防护原理及战时使用功能原理,了解人防每个细部节点的功能与作用。
人防主体使人与物资避免受到各类*器武**的伤害
人防主体是人防的围护结构,也是人防的最重要部分,就像一个巨大、坚固、密闭的容器,以满足人们战时躲避*器武**的伤害,战后能快速恢复建设与发展的要求。
人防主体主要包括人防底板、人防顶板、外墙(外围护墙)、临空墙等部位(图 1),由于各部位对*器武**的抵抗能力不同,造成对各部位的要求不同。

图1 人防主体结构的组成部分
人防顶板是人防主体最薄弱的部位,最小厚度不得小于 250mm,以抵抗来自上部的强大冲击波,所以人防顶板不允许穿越任何无关的孔洞(包括水暖电各专业的管线),同时人防顶板必须使用防水混凝土浇筑,以防止化学*器武**的毒素与细菌的渗透。由于墙体和柱子对人防顶板的支撑力不同,也决定了人防等级的不同。多数情况下,由剪力墙支撑顶板的(剪力墙结构)地下室,适合建造 5 级人防,而由柱子支撑顶板的(框架结构)地下室,适合建造 6 级人防。
人防单元使人与物资受到空袭的伤害降到最小
当需要建设的人防主体过大时,必须将主体分成两个或更多独立的单元,即防护单元。每个防护单元的内部循环系统(送排风系统、上下水系统、供电系统等)都是独立运行的(图 2)。

图2 防护单元划分示意图
当某个防护单元遭到破坏时,其他单元仍然能良好运转。同一防护单元内部为了防止*药弹**爆炸后,弹片等物体损伤人的生命,应分别设置抗爆单元(每单元面积不大于500m2)。人防主体的上部建筑层数为 10 层及 10 层以上,或其上部也为人防主体时,该人防主体可以不划分防护单元和抗爆单元,因为由于楼板的遮挡,可以不考虑遭*弹炸**破坏。
人防出入口满足人与物资顺利地进入人防主体
人防工程形成封闭的主体后,需要有出入口来满足人和物资安全地出入人防内部。每个防护单元至少具备两个出入口,一个是室外主要出入口,能满足战前、战时和战后的使用,因而在战前和战后都不能先于人防主体受到损害;另一个是次要出入口,能满足战前使用即可,战时需要封闭或封堵,战后不作要求。由于出入口是整个人防封闭主体上的“缝隙”,所以口部成为人防防护的薄弱环节(图 4)。

图4 人防主入口设置
人防室外主要出入口的设置,首先应满足在战时不得被地面其他构筑物损害而对口部形成堵塞的要求,所以口部应按防倒塌棚架设计。在不影响平时使用的前提下,应优先选用与主体脱离的独立式出入口,当用地确实紧张的时候,可以采用附壁式出入口,但是出入口投影范围内的上方不得有构筑物(图 5)。

图5 人防室外出入口形式
人防通风保障掩蔽人员在战时正常呼吸
在人防主体和人防口部位置确认后,通风成为最重要的设计内容。人防内部的空气通过超压排风(空气从压力高的一侧流向压力低的一侧)的形式进行流动,如表 1 所示,可以看出,位于防护单元主体以上的功能性房间均为进风系统的房间,位于防护单元主体以下的功能性房间均为排风系统的房间。同时根据空气流动的路径,可以看出风向序号相邻的房间应该相邻,以保证空气不会发生逆流。

表1 人防空气流向表
由此可见,当人防主要出入口的位置确定后,排风竖井和机房位置紧邻人防出入口而确定(图 6),这是因为战时有人要从室外主要出入口进入人防,而从室外进入人防的人员身上有可能携带细菌等有害物质,所以在完全进入人防之前,应在防护密闭门与密闭门之间的防毒通道“吹吹风、淋淋水”,进行洗消,防止将室外沾染的毒剂带入人员掩蔽区域。因人防内的清洁空气十分珍贵,所以应尽量将人防内被掩蔽人员呼吸以后的 CO2浓度高但没被污染的空气,作为“清洗”外来人员身上有害物质的“风源”。

图6 人防排风区域的确定
排风竖井和机房位置根据主要出入口确认后,进风竖井、进风机房(图 7)和滤毒室的位置随之确定。进风部分功能房间应尽量远离排风功能部分,如果人防主体为矩形平面,进、排风井应尽量放在对角线的两个远端位置,因为战时通风为超压排风的形式,即通过进风形成空气压力,使清洁空气流向压力小的区域,最后通过排风口排出人防,如果进、排风区域距离过近,势必造成部分区域空气流通不畅,CO2浓度过高,影响掩蔽人员的呼吸(图 8)。

图7 电动脚踏两用风机

图8 人防进风区域的确定
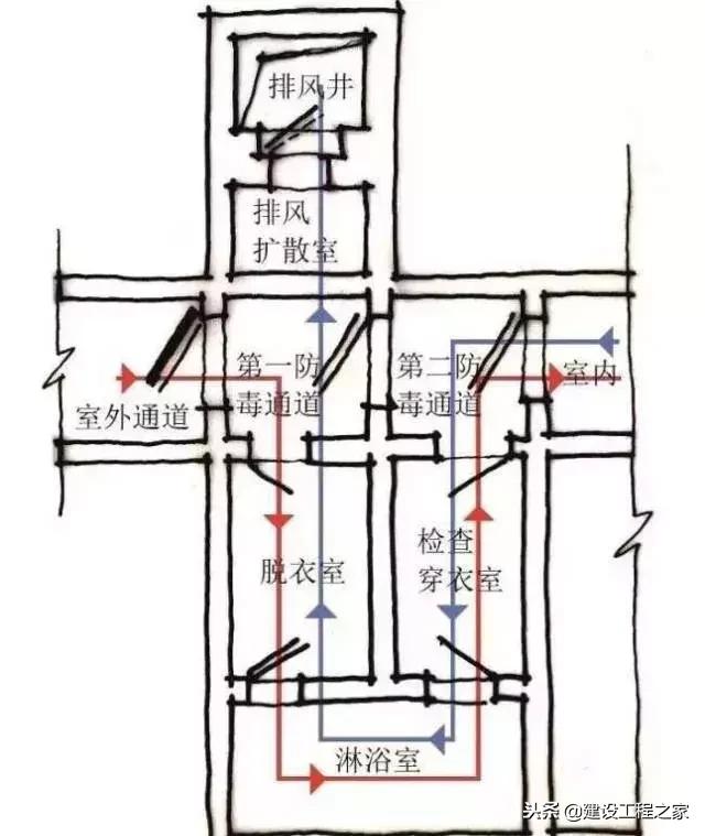
人防室外主要出入口作为战时使用的出入口,其口部通风形式也采用空气从压力大的一侧流向压力小的一侧。如表 2 所示,可以清晰地看出,风的流动方向与人进入人防方向正好相反,可利用 O2含量低但没有被污染的清洁空气作为“风源”,吹掉欲进入人防内的人员身上携带的有毒气体和尘埃。

表2 人防口部人员与空气流向表
表 2 所示的在人员停留区域之间设置密闭门,所有密闭门不能同时打开,当进入人员在每个区域内停留一定时间并接受“排风的洗礼”后,才可打开下一个密闭门,进入下一个区域并关闭身后的密闭门。第一防毒通道与第二防毒通道之间的密闭门只是方便平时功能的使用,在战时不允许打开(图 9)。

图9 人防室外主要出入口风向与人流路径图
人防的水与电
满足掩蔽人员在战时的基本生活需要
从上述内容得出,人防室外主要出入口确定后,与排风有关功能的房间要临近主要出入口设置,同时卫生间也要靠近排风区域,所以人防的生活水箱间应贴近卫生间布置(图 10),以利于洗浴的用水和废水能够冲洗厕所。除人防医院外,其他人防工程的面积总和超过 5000m2时,应设置柴油电站。发电机组容量大于 120kW时,宜设置固定电站,发电机组容量不大于 120kW 时,宜设置移动电站。

图10 厕所与水设备间靠近排风区域布置
人防细部节点关系到整个人防能否良好运行
6.1 密闭通道与防毒通道
密闭通道是完全密闭的通道空间,可在战前或战后使用,战时不可使用,一般通过两道密闭门或一道密闭门和一道防护密闭门封闭。防毒通道也完全密闭的通道空间,但是因为在战时使用,所以需要使通道内的空气压力大于室外空气压力,通过超压排风实现,避免细菌和毒气等进入,一般通过两道密闭门或一道密闭门和一道防护密闭门封闭(图 9,15)。各类规范中带“防”字的房间,一般指该房间通过采用空气压力大于外部空间压力的措施,主动防止外部空间的气体进入该房间。例如防毒通道、防烟楼梯间、防烟楼梯间前室、防火隔间、消防前室等。规范中带“闭”字的房间,一般指该房间通过封闭和密闭措施,被动阻碍外部空气进入该房间,如密闭通道、封闭楼梯间等。
6.2 扩散室与防爆波活门
为了削弱冲击波对直接接到风井上风管的压力,在风井与风管之间增加扩散室或扩散箱,利用空间扩散作用减少冲击波的压力(图 11)。位于人防风井和扩散室之间的墙体上采用防爆波活门进行分割,平时使用时将防爆波活门打开,通过活门洞口进风或排风,战时使用时将防爆波活门关闭,通过活门上的悬板缝隙进、排风(图 12)。当风井受到冲击波的压力时,悬板在冲击波压力作用下将自动关闭,避免内部空间受到损害。冲击波过后悬板会自动打开,保持空气通道畅通。必须引起注意的是:防爆波活门只有逆时针开启和顺时针关闭一种开关方式(图 13)。

图11 人防风井与扩散室剖面图

图12 防爆波活门

图13 防爆波活门开闭方向(平面图)
6.3 集气室
因为防爆波活门的洞口尺寸面积有限,而有些风井平时和战时都需要使用,当防爆波活门的洞口截面积不能满足平时使用的风量要求时,需要增加集气室以扩大平时使用风量的截面积(图 14)。

图14 集气室平面图
平时使用的风管接到砖砌墙体上,关闭集气室的普通门,打开防护密闭门和密闭门,以保证足够的风量进出集气室,并通过风管进出室内。战时关闭防护密闭门和密闭门,集气室不再使用。战时空气通过风井、防爆波活门、扩散室、风管依次进出人防主体,从而达到防护密闭的作用。
6.4 滤毒室与除尘室
滤毒室紧靠进风机房,位于其上风向(图 15)。内部装有滤毒罐(即过滤吸收器),用来过滤烟、毒气、蒸汽等有害气体。除尘室位于滤毒室前端(图 16),内部装有油网除尘器,是滤毒罐的前级保护装置。由于滤毒罐内的过滤材料非常密实,所以通过油网除尘器将空气中的大颗粒物质提前过滤掉,以免堵塞滤毒罐,减少滤毒罐的使用寿命。设置除尘室的前提是所需风量过大,滤尘器超过 4 块(4 块及 4块以下可管式安装),应采用立式安装,此时需设置除尘室。

图15 滤毒室位置图

图16 除尘器、滤毒室位置图
6.5 防化通信值班室
防化通信值班室是为了检测滤毒罐使用效率,并及时更换滤毒罐的防化人员和通信人员值班的工作房间,其位置应当靠近滤毒室布置(图 17)。

图17 防化通信值班室
6.6 集水坑
人防口部设置集水坑,用于收集洗消被污染墙面、地面的废水。按规范规定应在进风竖井、进风扩散室、除尘室、滤毒室(包括与滤毒室相连的密闭通道)和战时主要出入口的洗消间(简易洗消间)、防毒通道及其防护密闭门以外的通道设置。
实例分析看防空地下室如何设计
本实例项目为甲类核6级二等人员掩蔽工程。
设计要素包括人员掩蔽工程人防按防护单元进行划分,每个防护单元不超过2000方,每个单元应设主次入口各一个(不含竖井式、单元间连通口),主入口应直通室外,上部不得有建筑,次入口可以借用室内核心筒楼梯。内部构成有染毒区与清洁区、主要口部(兼排风口部)、次要口部(兼进风口部)、战备柴发机房、辅助用房(干厕、防化值班室、平战转换材料堆放间)、战时饮用和生活水箱。

主要口部含直通室外楼梯、防毒通道带简易洗消。
排风部分含排风竖井、扩散室、排风机房。

次要口部含室内楼梯、密闭通道。
进风部分含扩散室、滤毒室、密闭通道。

辅助用房考虑如下:
干厕(战时砌筑,200砖墙),出于卫生考虑,应放置在排风口附近。宜设前室,男女比例按1:1,大便器男每40~50人设一个,女每30~40人设一个,均为干式便桶。
防化值班室应设置在清洁区的进风口附近。
平战转换材料堆放间堆放战时封堵框之类材料,本项目取消。
战时饮用和生活水箱,与水专业协商确定。
强弱电防爆波电缆井从室外引入,本项目取消。
涉及到扩散室、风机房等的位置关系,与暖通专业协商确定。
疏散计算方法如下:
出入口净宽=掩蔽人数X0.3米/100人
(每樘门通过人数不超过700人,通道和楼梯净宽应大于门洞净宽)
掩蔽人数A=掩蔽面积 / 1m2/人
掩蔽面积=防护单元建筑面积X0.65~0.7
砌筑要求,主次口部、滤毒室、风井、扩散室均为钢筋混凝土墙,墙厚300,其中扩散室开门的墙500厚;风机房、干厕、防化值班室为战时砌筑,200厚砖墙,图中用WALL-人防表示。
人防专用楼梯,踏步宽X高=250X180,项目考虑260X175考虑。
临空墙(人防地下室与非人防部位空气直接接触的部位)厚度甲类核6级为250。项目按300墙考虑。
细部尺寸要求:
参数选择:甲类核6级二等人员掩蔽所
甲类防空地下室的剂量限值0.2
甲类核6级出入口防护密闭门设计压力值0.15MPa
甲类核6级通风口防爆波活门设计压力值0.15MPa
门窗编号原则:
战时砌筑的房间门除风机房外,均用M1021,风机房用FM1221甲
门扇选型。本项目密闭门、防护密闭门的宽度选用尺寸:单扇(1000、1500)、双扇(2000)。注意:人防疏散以此净宽为准,而梯段宽度应大于此数据。防爆波活门选型,掩蔽人数600以下,战时通风量按2000m3/h取值,选BMH2000-15;掩蔽人数600-1200人,战时通风量按3600m3/h取值,选BMH3600-15;门扇尺寸均为500X800。
总结
人防设计的方法和步骤
综上所述,建筑师在进行人防设计时,可采用如下设计步骤:
1)认真分析当地人防办的规定和对所做项目的人防要求;
2)计算和确定人防总体规模和范围;
3)将规模较大的人防主体划分合理的防护单元;
4)根据项目总平面图确定人防室外主要出入口位置;
5) 确定排风功能的房间(临近室外主要出入口);
6)确定进风功能的房间(远离室外主要出入口,临近次要出入口);
7)选择建筑内部的楼梯间,布置人防次要出入口;
8)确定厕所和生活水箱间(临近排风区域);
9)确定防化通信值班室(临近进风区域);
10)根据人防规范和人防图集以及各专业的要求,进行人防细部节点的详细设计。