最近在思考一个问题,是什么让我们成长。我觉得是各种人生的经历和事件让我们长大。这几年我从顺风顺水到磕磕绊绊,人生态度也慢慢转变。凡事尽量少纠结,少较真,不消耗自己的情绪。 面对繁杂的别墅装修竟然云淡风轻的完成了。坐在新家的沙发上环顾四周,给自己叫一声好。 整个装修期间没和任何人吵过架没换过任何人目前没有大的纰漏。特做一篇小记,记录我一年平静的装修生涯。
首先,遇见。
买这套房子完全不在我和先生的人生规划中。遇上它纯属偶然,一切都是凑巧。整个过程颇玄幻,感觉人生剧本其实早已写好,就等着我们遇见而已。
房子19年初买好,是联排别墅的边套,地上两层面积136,地下室120平,二楼挑高可以自己搭建阁楼60平左右,花园200平,开发商预计当年10月交付。各种购房手续办好,我闲暇开始编织起我的装修梦,拿着房型图展开对未来生活的畅想。
首先,必须考虑清楚这个房子的功能是什么,我想要的是什么,它是我们装修的主轴,整个装修要围绕它进行——
- 它目前的定位是我们周末、假期闲暇放松的去处。
- 孩子2022年出国以后,它会是我们几个提前空巢的兄弟姐妹的据点。那么,这个房子需要有多几间卧室,多一些娱乐放松空间。
- 再过几年,等财富积累到我们的目标,先生大概会提前退休,那这边会是我们生活的主要地点。那么,这个房子需要尽可能的舒适。
- 双方父母年纪大了,后面需要我们的照护,可能会住在一起。那么,这个房子需要更多的适老设施。
- 除了这些,作为女主人,我想要这个房子是我个人兴趣、爱好施展的地方。我喜欢收纳、烘焙、园艺。我爱电影、瓷器、各种迷你可爱的小物。好的,这个房子需要一个我个人的工作间,多一些收纳储藏让家干净整洁的设计,最好有中、西两个厨房。
综合起来这些需求,我在每天在晚饭后,固定和先生散步聊天的一个多小时里,沟通出我们未来房子的蓝图。 在一些大的方向比如装修风格、空间划分、大致预算、装修的主要话事人上达成共识。这花了我们大概二周的时间。
后面是对装修工程的规划。
因为是人生第一次装修别墅,对于装修市场的深浅一无所知。同时别墅地处郊区,我们工作生活在市中心不可能一直盯着。 所以我们计划,装修选择一家相对比较知名的装修公司,尽量省心、省时、省力哪怕费用高一点。 能提供这些服务的别墅装修供应商上海有几家。我知道的有SY、XJ、TL、MS。其中,SY最先进入我的视线。因为很多出租车上有他们的平面广告。它的总部在我家附近,出门经常看到他们的总部大楼。因为是“大宝天天见”的节奏,它印在我脑海里了。在19年初刚买好房的一个月,先生就接到了SY的客服电话。在我关注的几家装修公司里是对我们最早“下手”的。电话里,客服邀请我们参加他们周末的别墅展。先生看看时间正好有空,地点离我们家不到二公里,就答应了。
其实那个时候,我们还没有开始装修的想法。毕竟还早,房子还有半年才交付。我们计划20年下半年再装修。只是想看看门道。周末如期去SY总部。见识到了“最是套路得人心”。任何时候,攻心才是制胜关键。看看我们怎么成为套子里的人。
第一步进入SY大堂,马上接待小姐向我们了解我们是哪个楼盘。然后立刻跟我们说目前,我们是这个楼盘最大的装修供应商,从一期到现在我们一共装修了多少套,是装修数量最多、目前几大里面满意度最高的。这个可以跟物业、开发商了解(出家人不打诳语巴拉巴拉)。我心里的OS是,看房的时候,确实看到不少装修人家有他们的LOGO,那这家应该跟楼盘的开发商、物业有比较好的合作关系,装修公关方面不用我太头疼。
第二步,设计师出场。在和接待小姐聊天的过程中,设计师下来。自我介绍后他带我们去了楼上。详细跟我们介绍了他们的企业发展历程、企业文化、各种装修工艺、各种服务流程、装修案例、样板房展示、他之前作品的展示。我感觉在和我们沟通的过程中设计师一直在观察我们夫妇。观察我们的言谈举止、气质性格。在判断我们的风格偏好。这一点我觉得是一个设计师必须的技能和眼力见。
第三步,最为关键。进入“小黑屋”。我们被请进了一间独立的设计室。设计师和他的助理拿出一套设计方案。我一看,有点惊喜,就是我家的。因为我家的房型非常特别,整个小区没有几套。设计师能够拿出来,肯定是做过功课的。他一定是去过我家的现场,做了基本的了解和测量。这一步最为关键。因为我看到了他的执行力、专业度和针对性。他拿出了他基本的方案,说实话比我自己想的周到很多。也开拓了我的思路。同时他觉得现代简约的风格比较适合我们,他发现了我的需求。这一点我很满意。达成了初步的意向。
第四步,抓住我们。设计师说今天有设计费的优惠活动,提前支付多少钱,后面正式签约可以抵扣多少。我们知道这是固定套路,但是几个小时下来,我们对他们的服务的专业度比较认可,而且订金金额不高,即使后面不合作也没有太大的损失。于是我们现场决定先签一个意向。去的时候没有任何准备也没有任何打算。没想到就这么达成合作意向了。 人生就是遇见,有的时候偶得也是一种缘分。
后面,设计师王老师把我们送下地库。看到我们家的车车,大概判断了我们的经济实力。后面他提出设计的预算正好在我们的可承受范围,装修超支的部分也是我们可以HOLD住的。 不得不说,设计师主要还是一个了解人,观察人的工作。撇开设计能力,怎么与人沟通,怎能契合需求是需要长期修炼的。和聪明人打交道比较轻松。
从SY回来后,其他几家公司也逐渐跟我们接触。我们见了几个设计师。约在家附近的咖啡馆。为了不让他们白跑一趟,所以的消费我们来。感觉几个设计师不太了解我们房子的真实情况,大概没去过现场。拿出来的方案是别家的户型。一一PASS掉。其实别墅是大CASE,前期设计师肯定是需要投入成本的。来回的时间、交通费用都不少。客户还未必会选择难免会有无用功。但是也只有投入了,才能赢得客户。好吧!在经过比较之后,SY的设计师王老师赢了。赢在了速度、专业度、前期的投入度、对客户的洞察度、还有预算的把控度。我们花了不到一个月的时间,确认了装修合作对象。
时间来到了2019年的4月份。
因为要装修难免会做有心人。我开始提前做功课。买了几本书,了解各种装修材料、装修流程。逛各种装修论坛,微博上关注了雄大,进而进了各种《装修情报》的读者社群。看到一个个的装修血泪史,各种吃亏上当欺骗、各种跑路烂尾纠纷、各种以次充好返工胸闷。不禁让我有些焦虑。
我梳理了一下,给自己制定几条规则:
1、争取第一次就把事情做对。宁可慢也不要推倒重来。劳民伤财不说,绝对影响情绪。
2、尽量选择大品牌、知名品牌产品。相对产品质量、安装工人业务素质、售后服务会有一定的保障。
3、为避免不必要的纠纷,绝对不乱搭乱建,一切配合物业要求。
4、落子无悔,已经选择的承担相应后果。绝不搞悔不当初的戏码。既然不草率做每一个决定,那事后就坚定这是你最好的选择。装修必须有阿Q精神。
5、装修一定会花冤枉钱,毕竟这不是我们熟悉的领域,学费肯定会交的。但我也自我暗示交了学费我必会有成长,用到下一套房子就可以。小小的心疼可以别把自己气的吃不下睡不着就行。
我认为装修是一时的,以后的生活是长久的。美好的生活才会让家越来越美。装修是家的背景而已,所以我也决定家里清淡、大路为主。给后面的生活留白。 就这样,五月差不多来了。
设计师也没闲着,在反复沟通确认中设计稿出来了。
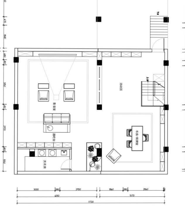
地下一楼设置了影音室、茶室、酒吧台、洗衣房兼储藏室。除了洗衣房,空间全部打开。地下室经过反复考虑没有做卫生间,因为地下室所有的污水都是通过提升泵输送到一楼下水道。万一几年后管道老化或者提升泵出问题无法想象排泄物横流的画面。所以还是略麻烦一点去一楼如厕吧。

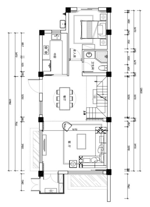
一楼是厨房、餐厅、客厅、客卫和一间老人房。厨房和卫生间都不大,怎么排兵布阵颇花一番心思。

二楼是主卧和老人房。中间一个空间大部分人家是做成两个衣帽间服务于两间卧室。考虑到这是第三居所,衣物不会特别多,而且有二扇窗户日光丰沛,决定做一个榻榻米休闲空间。可以品茗、阅读。拉上帘子还会成为一间客房。主卧阳台有十平方,除了休闲功能我还设置了洗衣功能,准备放一个洗烘一体的洗衣机。地下室洗衣房为非常驻人口服务。本人略有洁癖,二楼的洗衣机仅供核心小家庭使用。

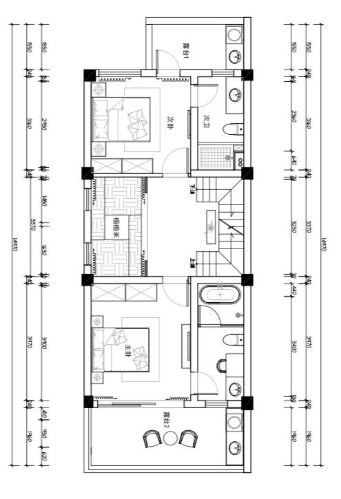
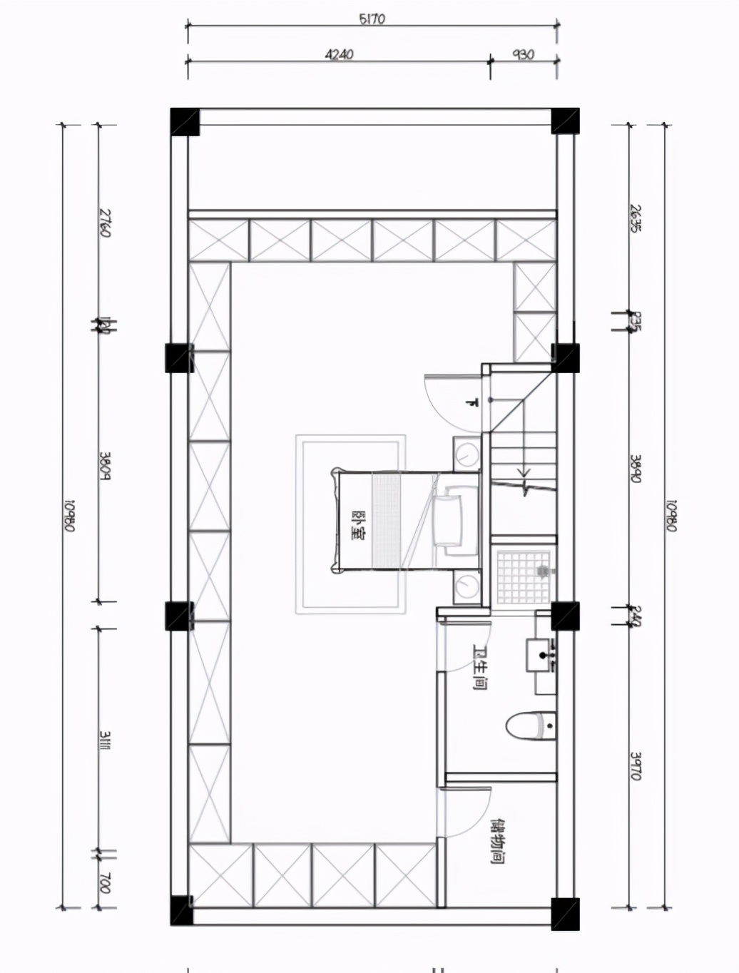
阁楼全部给儿子使用。他正值青春期,极度需要个人空间。三楼全部给他。里面有一室一厅一更衣室一玩具屋一带浴室的卫生间。设计图没有完全体现,因为阁楼存在边边角角,必须因地制宜边建造边设计。亲生的儿子,一切为他考虑,希望他的小阁楼让他放松愉快也成为他偶尔避世的地方。
至于学习功能我没安排太多,市区生活各种考试补课鸡血,来到郊区改变一下基调尽情玩耍休闲吧少年。同时我也放了一些小心思,三楼的门没有安排锁,因为青春期的孩子动不动把父母关在门外,我从根源上解决问题,我们肯定不会随便进出他的房间,但需要沟通的时候爹妈必须可以进得去。他的房间没有设饮水设备,我希望他宅着打游戏的同时可以动动屁股挪下楼喝点水吃点食顺便和爸妈聊两句。

写了文章才发现,阁楼最终呈现的和设计图完全不同。也确实在阁楼上花费了最多的心思。我计划等儿子明年出国留学后,霸占他的阁楼,我要在上面做手工、做花艺、听音乐看书。
设计图出来到最后成稿,大约二到三周。因为房子还没交房,一切都慢悠悠的给我充分思考纠结头脑风暴的时间。初稿出来,后面细化图陆续出炉。有厚厚一本。专业性比较强,总之几个空调口、新风怎么装、各种开关插座的安排、水龙头位置、灯光点位布置我肯定是参与并确认的。结合我的生活经验,尽量做到让家方便、宜居、舒适。设计师效率不错,效果图也很快出来了。当他呈现给我的时候,我和先生还是满意的。


▲地下室空间效果图


▲一楼客、餐厅效果图

▲一楼卧室效果图

▲二楼客卧效果图

▲二楼主卧效果图
效果图出来取得我们认可以后,工程造价书也随之出炉,造价书厚厚一本,其实作为门外汉那么多项目门类我并不是特别了解。我仔细看了一下,针对一些有疑问的费用和设计师沟通确认,也只能做到这些了。开始各种缴费。先是设计费,原价6万,因为我们选择后续施工继续与SY合作,设计费减半,3万。签订装修合同以后,开工前支付30%,水电验收后支付35%,泥木验收后支付30%,整体装修工程全部验收结束以后支付5%尾款。 装修计划2019年11月1日开始,2020年11月30日结束。
2019年7月中旬左右装修前期工作大致完成。离交房还有将近三个月。还是非常富余的。工作慢慢推进的感觉很好。
开发商十月初如期交房,验收工作我没有太细致,主要还是因为是小白,实在看不出太大的问题。只能看看门窗有没有缝隙,墙面地面是不是平整,有没有肉眼可见的歪斜、漏水渗水现象。
2019年11月1日,我特意翻了一下黄历,是个万事皆宜的日子。是我们开工的日期。SY搞了一个开工仪式,红毯、鲜花、礼炮一应俱全。有时候小小的封建迷信会给人一种迷之自信,振奋精神。虽然最终还是业主自己买单,但当天还是觉得非常欢乐。有一种好的开始就是成功的一半的感觉。

仪式当天,我见到了工程的项目经理王HJ。短短交谈几句,我发现他沟通能力很强,而且非常利落。给人踏实的感觉。 对于一个项目经理来说,沟通能力、执行能力、应急能力、管理能力都非常重要。 大家普遍不太注重装修队伍的学历,其实任何工作做到后面都需要文化的加持。我最近无意发现项目经理的抖音。他发布的每一篇都语句流畅、没有任何错字或者标点符号错误、画面有风格、不俗气、音乐不雷人。我判断他最少高中毕业。在整个装修过程中,我非常认可他的管理能力和项目推进能力,又是一个遇见。
开工以后,比较省心的是,王经理很快打通物业渠道。很多装修事务,如进货报备、垃圾清运等不用我亲自沟通,他会自己搞定。他和他的队伍都是江苏人,据说最好的装修工人是江浙的,据说而已,没有考证,但我对这支装修队伍整体还是满意的。
接触下来,首先工地的卫生状况很好,工具、建材都整齐摆放,没有乱七八糟闹心的感受。每天只要开工,都会拍照给业主汇报。方便我们随时监督。其次,师傅们都很有礼貌,每次去工地大家都客客气气的。再次,比较重视客户的要求,但凡我们提出的,都会尽快落实。最后,最重要的手艺过关。
我看雄大的微博,经常发布一些装修TIPS,我对照一下,基本合乎规范。我还观察到了一个有趣的现象,装修师傅们中年夫妻档居多。这样情绪稳定、技术成熟、人员不容易流失。干起活来老公主力,老婆打下手。我家一楼老人房暂做装修师傅的宿舍,每个工种轮流过来。每一对夫妻都把工作、生活打理的不错。有的还在院子里种点小花、小葱。 去工地的时候看他们边干活边放着音乐,赶上饭点老婆在电磁炉上做饭,香气四溢,鲜活生动的场景让我觉得虽然工作很辛苦,但都非常热爱生活。他们上有老下有小是家里的顶梁柱,能够通过自己的劳动让家人衣食保暖也很幸福。 闲聊时发现每个人都很有故事,比如安装空调的阿姐早年在日本打工好多年,怪不得她工作习惯特别好。水电工陈师傅文质彬彬一手好字,也许只是少年时机会不够没能进一步深造。总之为生活奋斗的人都值得我们尊敬。
因为开工在11月,很快就要迎来新年。师傅们都会提前回家过年。我们计划年前把土建全部完成。包括敲墙、砌墙,搭建三楼楼梯及阁楼楼板。这个工程我觉得应该是装修中的垃圾活。每天大锤、噪音、尘土飞扬。王经理动作很快,差不多11月中旬工人进场,11月底敲墙、收建筑垃圾全部完成。同时,在11月给到我整个工程的项目进度表。表格非常大,非常细致。每个月的工作计划细细列出,标注各个时间节点。各个工种的衔接,需要配合的厂商、主要负责人全部标出。对于装修小白来说,我看了这张表格,基本可以了解别墅装修的工程是如何推进的,装修步骤是怎样。什么时候作为业主要做什么事情大致有数。后面每次去工地我都会拉出进度表,对照一下。附一小部分表格。

在土建的同时,我们12月确定了舒适系统的供应商。家里的空调、新风、采暖、净水设备的供应、安装、调试、养护全部由集美完成。 这笔开支非常大,空调选择大金、新风是松下、采暖选择威能,考虑到别墅住的不多,我们选择了即开即热的墙暖,暖气片是波兰的一个牌子,净水是康丽根。 全部加起来将近20万。惊得我倒吸一口凉气。第一次感觉到装修别墅是一个劳民伤财的事情,也第一次感觉到钱袋子捂不住的感觉。
在土建的过程中,项目经理汇报地下室比较潮湿,还有两处地面漏水点。地下室防水势在必行。项目经理给了我们一个预算。又是被惊吓的一天。地下室的两面临土墙面要重新砌一个隔潮墙,砌好的墙要找平、做防水以及铺保温隔热板,整个地下室地面、墙面、顶面要几遍防水涂料,花园将近60平的地面是地下室的顶面。露天风吹日晒雨淋,这一块要做雨虹防水。看到密密麻麻的施工项就知道一定不便宜。果然整个防水八万多。但是又非做不可,否则后患无穷。心在滴血。
到了12月,设计师约我们看主材。SY有很多合作厂商。正好他们12月15号总部有一个主材订购会。我和先生洗白白作为“小肥羊”闪亮登场。现场非常热闹,有很多组客户。我感觉很像流水席。我跟先生坐在主位上,各路供应商捧着小本本来汇报工作。他们事前全部去过我家现场,方案、尺寸、报价全部做出来。看看都有什么。厨房橱柜、厨房电器、全屋瓷砖、地板、墙面硅藻泥、浴室电器、家庭影院、网络、安防、全屋木制品、射灯、全屋大理石、地下室提升泵、全屋门锁、淋浴房浴室柜、厨房移门、全屋水龙头卫浴。除了软装,全部一网打尽。
我去之前,以为只是随便参观打打酱油而已,没想到是真刀真枪的江湖。他们有备而来,我们没做半点功课。多亏我没事喜欢四处逛逛,还加入了《装修情报》各种群围观潜水,经常看雄大的微博有一点点小心得。几个供应商都还算大品牌,有些也跟《装修情报》有合作。比如厨电方太,淋浴房浴室柜玫瑰岛,地板德高,瓷砖马可波罗,木制品达恩,台盆卫浴龙头高仪、杜拉维特。这些我自己其它家里也在用,有些觉得很不错,所以也没有太排斥。设计师选择跟他合作的供应商估计也是考量过我们的审美和承受能力,判断的挺准确(此处应该有掌声)。他们的实体店几乎都在宜山路的家饰佳,难道SY和家饰佳是夫妻老婆店? 那天时间耗费了好久,到后面疲倦到不行。只想快点结束。
结束后,在车库里拿着一摞合同意向书,掏出手机计算器加一加,一声叹息,有70多万。感觉压力山大。 我们在车里安静了一会儿,老公突然说,今天效率太高了,主材全部搞定了,后面不用麻烦到处跑了,还省了我们各种吵架。有那时间辛苦纠结,不如埋头多赚点钱。 看看我们300平,有四个卫生间,三层楼梯,这个费用应该还行吧。此人心态极佳。 他有一个理念“钱是赚出来的不是省出来的”。 我小小郁闷了一下,也就过去了。后面论坛里潜水,看到不少群友极会搜集各种打折信息各种砍价, 这些都不是我擅长的,同时因为我关注点主要在青春期孩子的情绪以及学业上,也只能采取这种偷懒花钱的办法。
回过头看,经过后期比价,各路供应商的价格还算良心,产品品质不错。而且SY是金主爸爸,长期稳定的大客户,他们比较买SY的面子,后面配合程度很高。衔接的不错,极少出幺蛾子让我省心省力不少。2019年12月15日那天,谁也没有想到后面的疫情。疫情过后,各种建材、电器纷纷涨价而我们早早都签好锁定价格了。事实证明,也没多花钱。就算是傻人有傻福吧。 装修就怕心态好啊! (纯属自嘲,也许在很多人眼里就是冲头、冤大头)
主材选好以后,2020年1月5号下午,所有的供应商以及项目经理、设计师、业主在装修现场开了一次交底会。设计师、项目经理拿着图纸,一个一个的沟通、对接,确定尺寸、工艺、材质、各种时间节点、如何衔接、怎样配合、确认职责。全部加进装修群。我觉得交底会很重要,面对复杂的千头万绪的别墅装修。确实需要好好梳理一番。
就这样,我们在2020年新年以前完成了土建、舒适系统布局设计、主材的选择。总共投入130多万。(费用没支付,预算已落地,这三块后面都没有增加费用)
果真,生活就是需要走走看看,计划永远赶不上变化。 疫情来了。节前群里说正月十五开工,结果小区物业根本不让外人进,那个时候各个高速路口也不许外地车辆进入。我们被封闭在家里,第一次迫切希望别墅装修快点完成,因为被关在家里的感觉确实难受。如果有大房子、有花园、有娱乐设施隔离生活会丰富快乐得多。同时,我还打算在地下室洗衣房辟出一个区域专门囤货,一旦发生类似疫情全家人到这边有吃有喝有存货,手里有粮心里不慌。我甚至写了一张清单,准备囤积半年左右的相关食品、药品,还有蔬菜种子(地瓜萝卜土豆青菜)万一弹尽粮绝还能自给自足。不过后面疫情缓解也就此作罢。
从二月初一直到四月都无法复工。这时候家具供应商主动联络我了。节前主材订购会的时候家具厂商在现场,当天实在太累就留了个微信简单的认识了一下。供应商是简合,旗下有很多品牌,写意空间、MD、夏图、可木、OOD定制等。疫情寸步难行,就翻翻他们家微信发给我的产品图册。越看越觉得它家不错,不少产品长在我的审美上。他们的业务经理在节后美凯龙可以开门迎客的时候就通知我了,让我抽空去看看,一方面疫情期间有折扣,一方面美凯龙店庆有返现,现在正是买家具的好时候。想想也对,我们特意挑了店庆的周末去店里参观。老规矩,业务经理手里有我们的设计图,什么地方摆什么家具大致尺寸都已经规划好了。我们去了根据我们的需要做一些微调。第一次去,我们订了MD的影音室沙发、可木的客厅沙发、茶几、电视柜。第二周订了MD的餐桌餐椅。后面陆陆续续订了卧室的床,床头柜,一楼老人房的斗柜。在疫情复工之前,家具已经订购完成。 我发现,我做决定还是很快的。第一眼看中了,基本就是它了。还有就是装修只买最基本的需求,以后住进去根据实际生活的需要再进行删减添加。 家具我还是倾向实体店购买,毕竟是大件,如果网上买了不合适更换成本太大,也会大大影响心情。我对家具的材质也不做过高要求,一是普通人家很多实木产品消费不起,二是也不怎么懂行,即使以次充好也看不出。 我更关注是否环保,各种五金件是否耐用,家具漆面处理是否得当,款式是不是合心意,家具厂子大不大,业内信誉如何,会不会跑路。
家具选购结束,《装修情报》群里也有不少活动。我跟着买了西门子的洗衣机、烘干机、洗碗机,订了澳金的浴缸,还买了很多家居小物品。去家饰佳德高地板看现货的时候,又碰上了商场大减价,其实说真的疫情期间很多商场为了活下去搞了不少促销活动,对我们有需求的客户来说确实是福利。当天我花16500买了日立RG590的冰箱,9千入了松下全自动马桶。同时通过SY认识了卡萨帝的销售经理。向他买了另一个家需要更换的大冰箱、新家的两个水吧、冰箱,价格非常给力。
紧接着,迎来了一个好消息。4月2号,停工许久的工地终于复工了。年前搭建的阁楼和楼梯,新砌的各种墙晾了这么长时间绝对干透,再糟糕的事情也有好的方面,乌云总会镶着一道金边。赶紧群里发一个大红包,不容易啊。项目经理很有信心,工程可以如期完成。一开工,就是紧锣密鼓的地下室防水和水电。

给地下室新砌的隔潮墙找平以后刷上防水涂料

防水涂料干透以后,再铺设一层保温板,防止冷凝水。保温板外面好像刮了腻子又涂了一层防水。
水电陈师傅开工前再次跟我确认好各种插座、开关需求。之前没考虑的热水循环也跟我们提了建议。各个水龙头是否安排软水也核对确认好。水电在做的时候集美的空调、暖气、新风也一起进场施工。网络安防的弱电同时配合完成。4月26日水电进行验收。验收前一天,全部拍照视频,后期制作光盘,方便交付以后的维修。贴瓷砖以后,全部水管位置贴上提示条,防止安装各类设施的时候误触。

工地日志每天发送到群里。有需要配合的供应商提前在群里圈一下,确定好的工期,不得有误。所以整个工期效率可以。
肉眼可水电师傅做的不错,实际交付到现在基础工程运行良好。


水电结束,泥木紧跟。这一环节出了点问题。木工师傅性格非常火爆,手艺没得说,但他做过的工不容置疑。有异议会摆臭脸,我盘算这属于艺高人胆大谁都不害怕。我看项目经理也有点打怵。好在对业主稍微买点面子,我们提出的要求,黑脸归黑脸但是会执行。某天设计师说某处要配合修改,现场沟通。结果设计师有事晚到了,群里夺命连环CALL。然后各种不满,最后吵成一团。我云围观,觉得好尴尬。我是劝还是不劝呢?算了,他们是一家公司的,自己解决吧。后来据说是项目经理出来撸平了。项目经理是急性子,谁进度没跟上,就会在群里点名批评,让我少操很多心,毕竟有人比我更着急,我每天在群里说辛苦啦!加油哦!就可以了。

我不时的在群里发表一些由衷的表扬。 我的原则是不好的地方私下单独沟通,好的地方要大声说出来。对别人工作的要看到亮点并给予肯定是最大的善意和鼓励。

木工完成,泥工衔接上。很幸运,泥工脾气特别好。合作愉快而顺利。在梅雨季节来临之前,泥木完成。为避免梅雨季节对装修的不良影响,施工现场放置了三台*湿机除**全天运转。整个梅雨季节没有施工。2020年的梅雨季特别漫长。停工了一个多月,工程又如火如荼的开始了。复工比较重要的事情就是泥木验收,安排在7月22号。

泥木验收之前,油漆已经进场。先开始刮腻子。翻了翻施工进度计划表,天哪!还有密密麻麻那么多项目没有做。装修实在是一个劳民伤财,伤筋动骨的苦差事。天气越来越热,口袋越来越瘪,人也越来越不耐烦,祈祷快点结束吧!
在此期间,设计师给我们推荐了欧雅壁布做软装供应商。其实我个人比较喜欢东理的窗帘。但欧雅除了窗帘,可以同时做墙面硬包、卧室墙纸、地下室电动天窗、阁楼卷帘。天气热了,也实在不愿到处跑,在空调房里喝喝茶选选货可以看得见摸得着的实体展示让我们还是和欧雅签了约。我发现大品牌的优势是产品质量和安装以及售后服务,让客户少闹心,如果预算比较充足,建议还是和大厂合作吧。

后面就是各路厂商的安装、施工。
8月8号,大理石楼梯安装铺设。阳台玻璃雨篷安装。美缝进场施工。
8月31号,开始上第一遍涂料。除了卧室墙面使用硬包和墙纸外,公共区域全部大白墙。为以后的生活留白,厌倦了方便换新。
9月14号德高进场铺设地板,一天完成。
9月15号厨房橱柜以及台面安装。
9月18号全屋定制的木制品送货。9月23号三个师傅进场安装。木制品是这次装修的大头,从地下室到三楼,所有的门套、门、屏风、橱柜、衣柜,都由达恩设计制作安装。流程也拉得很长。特别担心会出岔子。这一部分也是最纠结和耗时间的。光设计反反复复修改沟通大概就要一个月左右。定稿后厂家制作送货也耗时一个月左右。好在后面安装都挺顺利,一周左右完成,除了地下室感觉颜色选的略深,其它的都觉得还不错。在安装木制品的同时,顶固配合完成了门锁安装。
10月10号,花园开始破土动工。
10月15号,玫瑰岛进场安装浴室柜、淋浴房。松下安装智能马桶。
10月23号,踢脚线和浴霸安装完毕。
10月24号,墙面硬包、挂壁马桶安装结束。
11月2号,地下室洗衣房安装洗衣机、烘干机,吧台洗碗机、以及提升泵。
随着各种安装,新家开始显露出了大致的样子。




11月7号,开始进家具。三个师傅,一大车。兵荒马乱。刚来的时候制服整洁,等全部进完,各个汗流浃背,狼狈不堪。
11月9号,玫瑰岛制作的厨房移门进行安装。
接下来就是双十一,天知道我下了多少单。大到床垫、地毯、电器,小到抹布、厕纸。没几天,快递堆满门廊拆包装到崩溃。我网上选择的比较多的是消耗品,那些固定的,轻易拿不下来的硬装产品我比较谨慎,基本都是实体店挑选。因为这一块试错成本太高。
11月13号,开始安装楼梯扶手。我们选择的是卡槽嵌超白玻配黑色窄边扶手。我个人比较喜欢木质楼梯踏板,可是老公和设计师倾向使用大理石。少数服从多数,但是由于大理石和扶手是两个厂商,中间真的是很多波折。各种尺寸没有配合好,时间没有衔接上,沟通没有说明白,颜色没有做对 。装修最闹心的就是这一块。一件事只能一个厂商完成,一掰为二真的是给自己上眼药。 楼梯这一块,总算在11月25号全部完成。有一说一,超白玻虽然比普通玻璃贵了几千,但效果确实可以。当然如果可以再次选择。我必须坚持木楼梯踏板,因为木踏板有弹性且柔和。如果重来我会换一个扶手制作商。这个厂商师傅手艺可以,但是太能拖拉,到项目经理设计师都忍不了的地步。
到11月15号,影音、安防、网络、厨电全部安装完毕。看到了曙光,硬装部分马上结束了。
11月28号全屋保洁。真心不便宜,要2600。早上7点几个人就开工,忙到下午4点。但我感觉相当于洗菜洗第一遍,粗略把泥沙去除。后面细致的工作,还是要自己耐心完成。
11月29号,全屋窗帘安装。开始有家的感觉了。我有一个偏好,窗帘和床品大都选择没有花色的。我觉得外面的生活太喧嚣,希望家里素净、平淡,可以让我安心、静心。而且乱花渐欲迷人眼,我觉得花色容易过时,也容易审美疲劳,到时候更换成本很高。素色乍一看不打眼没有个性但不太容易让人厌倦。就像大鱼大肉虽然好吃但是清粥小菜始终更得人心。
11月30号是装修合同上的完工日期,硬装部分确实如期完工一天都没耽误。房子交给我们,后面的布置、归置、细部清洁、各路动线的安排都要自己上了。
12月3号,开始安装客厅、餐厅、楼梯灯、镜前灯。千挑万选,我最终全部选择了新特丽。我觉得它家的设计、材质、质感、色调都是我比较满意的。对得起它的价格。但是真心不好装,特别是两个吊线的餐厅灯,光调整高度和平衡,就把人累个半死。
很快,美烁的玻璃屏风和玻璃小景安装完毕。这个算是无用但美丽的设计,为家添上一点花边。屏风选择了玻璃夹丝水墨山水,玻璃小景里面的石子片岩和竹子都是自己脑海设计淘宝购买自己铺设。
现在,新家基本落成。花园也差不多经历了3个月左右全部完成。周末假期会过去小住。基本的生活功能完全没问题。墙面还光秃秃的,没有挂画,主要是舍不得在新墙上打洞,家里还没放置绿植。我觉得还要花费半年左右的时间去调整和美化。装修这一年几乎所有的周末假期都在奔波,各个卖场打转。我大约算了一下,网购了将近300单,这300单后面大概是3000次以上的浏览、纠结、比价。几乎没有买过新衣服和包包,看到喜欢的会自动换算同等价位是不是可以添个冰箱,能不能升级一下家具,可以买几块瓷砖,会自动掐灭瘾头,感觉这一年个人活的比较凑合寒酸。 但一砖一瓦建立一个家的快乐和成就感以及为共同理想而奋斗的凝聚力也是无以伦比的。
比起网上的各种新家美图,能力财力有限,我家大概也就属于凑合级别的。不过也倾注了很多的热爱和汗水。 装修完工不是结束,是人生道路一个崭新的开始,让闪闪发光的新家指引我们更幸福的生活。
编辑留言:
大家好,我是这篇文章的编辑雄大,真的非常感谢上海业主Jessie的投稿,文章写的很感人。至少我在阅读的时候,感受到了她那份真情流露,看得出她对新家与未来生活的期待。
我在她的微博@王小臭的懒人生活 一直关注着她的整个装修过程,逐渐成为了她的粉丝。我在微博上阅读到她的文字时,第一感觉是“从容、淡定”,没有像许多业主遇见装修时的那份“焦躁、不安”,她在享受装修。我试探着邀请她写稿,她欣然答应。在她“消极怠工”了一段时间后,忽然收到她发来的稿件,我如获珍宝,她说出了我很久以来,一直想传递给大家的一些经验和心声:
“ 首先,必须考虑清楚这个房子的功能是什么,我想要的是什么,它是我们装修的主轴,整个装修要围绕它进行。 ”
“不得不说,设计师主要还是一个了解人,观察人的工作。撇开设计能力,怎么与人沟通,怎能契合需求是需要长期修炼的。和聪明人打交道比较轻松。”
“我梳理了一下,给自己制定几条规则。”
“对于一个项目经理来说,沟通能力、执行能力、应急能力、管理能力都非常重要。”
......
这篇文章太值得大家细细品味,反复阅读。最后我再引用一句她的“至理名言”作为文章的结尾,我们一起来体会下她“懒人生活”背后的“幸福人生”。
“我认为装修是一时的,以后的生活是长久的。美好的生活才会让家越来越美。”
看完这篇文章后,如果你想请雄大帮你推荐装修公司、设计师,或者想咨询问题的可以留言给我。