原创: 留房百事 来源:成都摇号助手
月初我去踩了大面的卧龙谷壹号,稿子在一周之前就已经写好,原计划是项目一拿证就推送出来,但由于档期的原因延期到了今天。
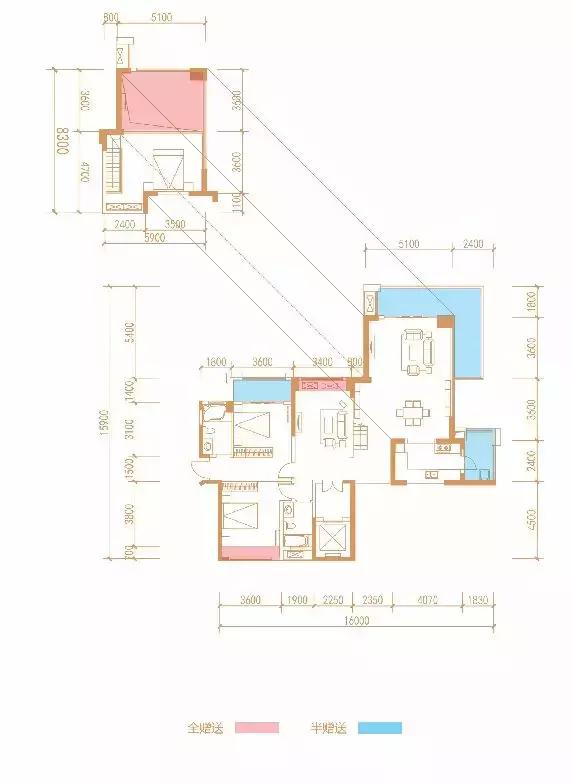
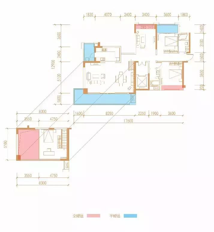
卧龙谷壹号项目(备案名:百悦星城二期)已于11月13号成功取得预售许可证入市销售,共推出 232 套高层房源。其中148.91㎡3室2厅2卫3阳台108套,平层149.02 ㎡3室2厅2卫3阳台4套,跃层187.91㎡2室3厅2卫2阳台52套,跃层187.95㎡2室3厅2卫2阳台4套,跃层187.96㎡2室3厅2卫2阳台52套,跃层188.2㎡2室3厅2卫2阳台4套,顶跃247.12㎡3室3厅4卫2阳台4套,顶跃303.26㎡5室3厅5卫1阳台2套,顶跃303.96㎡5室3厅5卫1阳台2套。
上述房源中24套用于棚改货币化安置住户优先摇号、优先选房,125套用于刚需家庭优先摇号、优先选房,83套房源纳入普通购房家庭选房范围。
项目信息
套数:232套
面积:约149-304㎡
价格:1.62万/㎡
容积率:2.0
绿化率:30%
开发商:成都盛世百城置业有限公司
区域位置
卧龙谷壹号位于龙泉驿区大面街道新建路99号(天鹅湖公园旁),属于大面板块,该板块紧邻锦江区三圣乡和龙泉山森林公园,生态资源优越。并且随着城市“东进”战略的不断推进,作为东部新城核心板块的大面,经过近几年的大力发展,成为了成都东部集现代制造、产业服务为一体的核心居住板块,兼具城市化和景观化。

凭借其靠近绕城高速、锦江区、国际城南的地理位置,和“东进”的区域利好,大面吸引了众多知名开发商集中入驻,如百悦、世茂、华润、龙湖、保利等。目前该板块内已经有数十个项目呈现出来,居住氛围浓厚,常住人口超20万。在近三年的时间里,大面一直占据着成都近郊热门板块商品房成交前三名。

项目配套
在大部分购房者眼中,交通配套和商业配套一直以来都是大面的软肋。但在这儿我要重点说明一下,现在这两点已经逐渐得到了改善,未来交通配套和商业配套将会成为大面板块的两大优势。根据成都市城市轨道交通线网规划,地铁13号线一期工程及11号线工程均经过大面并规划有站点。目前,成都市正抓紧上报城市轨道交通第四期建设规划,其中13号线一期工程已纳入第四期建设规划。
地铁13号线西起温江区,途径青羊区、锦江区、龙泉驿区,最后到达简阳天府机场。其最大价值就是起到了连接成都市区和简阳天府机场的作用,是“东进”战略中最重要的城市规划之一。个人认为,如果想抓住“东进”、投资“东进”,可参考地铁13号线的站点规划。
从下面两张提交的第四期建设规划图中可以看出,地铁13号线在大面设有两个站点,分别为公园大道站和龙华寺站,如果复批通过成都地铁就将按市政府统一部署抓紧开展相关工作。而这两个站点距离卧龙谷壹号均在1公里范围,建成以后该项目就是最大的既得利益者。

(13号线一期工程站点规划)

(13号线一期工程各站点规划详情)
除去正在复批的地铁13号线,百悦集团也在抓紧完善其商业、医疗等配套设施,参考各个在建或正在规划的项目工期,预计未来3年内这些项目就会基本竣工并营业,届时卧龙谷壹号在家门口便能享受到全方面的生活服务配套。
交通配套:
项目位于驿都大道和成龙大道两条交通要道之间,距离绕城高速仅300米左右,经这三条路线能在半个小时内达到春熙路、金融城等城市核心区域。另外地铁2号线行政学院站距离项目仅1.5公里;规划中的地铁13号线公园大道站、龙华寺站距离项目都在1公里范围内。良好的交通配套拉近的卧龙谷壹号与城市各个核心区域之间的距离,为生活提高了极大的便利性。

商业配套:
首先百悦集团自己打造了60万方的商业综合体,包括了已经营业的成都百悦希尔顿酒店以及百悦云景法式商业街;另外项目旁边的世茂城五期也规划了约20万方的商业,预计2021年开业;最后3公里范围内还有亚洲最大的伊藤洋华堂,预计今年年底试运营。未来,3公里范围内便有全方位的高端商业配套,满足一切吃、住、穿等生活所需。

(已经营业的成都百悦希尔顿逸林酒店)

(已经营业的成都百悦希尔顿逸林酒店)
教育配套:百悦集团引进了北大的教育体系,建设北大成都附属实验学校博雅幼儿园、北大成都附属实验学校,囊括了幼儿园、小学、中学、高中,能够满足3-18岁的全龄段教育体系。

(北大成都附属实验学校实景图)
医疗配套:
据了解,百悦集团计划将在天鹅西湖南路与金桉路交汇处(天府逸家旁)建设一家三甲医院;另外距离项目2公里处还有四川大学华西第二医院。
生态资源配套:
卧龙谷壹号拥有非常优质的生态资源配套,项目本身就处于1200亩的绿地公园中,两公里内还有市政公园、天鹅湖公园、三圣花乡和白鹭湾湿地。

(卧龙谷壹号项目实景图)
项目详情
卧龙谷壹号总占地约120亩,建筑密度30%,容积率2.0,是整个成都较为稀缺的生态大盘。项目分两期开发,规划为全住宅业态,涵盖改善属性的独栋、联排、叠拼别墅产品及高层(平层+跃层)产品,约900多户。
它最大的卖点就是建在约1200亩湿地公园的最高处,拥有安静、宽阔的绿地景观的同时,还拥有千米以上的广阔视野。从项目中望去首先看到的是1200亩的湿地公园,其次是天鹅湖公园和三圣花乡,周边景色一览无余,如此高舒适度的居住项目在整个城东都是绝无仅有的。

(项目实景图)

(项目实景图)
项目呈三层岛式布局,在产品排布上采用的是高层别墅分别入园的设计,这种布局极大的增加了住户的私密性。内部景观采用的是现代生态主义风格,旨在建立一个人与自然的互惠共存空间,着重表达生态化和艺术化的生活。
项目外立面采用新中式建筑风格,将本土文化元素与现代设计手法相融合,强调凝重光洁的深米黄色石材与轻灵通透的玻璃虚实交错,表现出空间的内外延续以及建筑与自然的融合。这种建筑风格使项目外立面呈现出一种新的东方神韵美,给人一种沉着、大气的视觉感。

(效果图)
卧龙谷壹号本次预售楼栋为34/35号楼,两栋住宅位于小区中间位置,每栋116套,共计232套,面积区间约149-304㎡。每一栋房子都是精心设计的,户户达到最佳的通风采光效果。

本次所有预售房源三面开窗、拥有270度的观景视野!加上项目是建在1200亩的绿地公园以内,四周没有任何遮挡,从房间里面望出去最大视野可达千米以上,带了的观景效果、采光效果是成都大部分项目所不能比拟的。

(样板间实景图)
最后还值得一提的就是本次预售的跃层房源,它采用的是客厅局部挑高6.3米的设计,并且为四梯四户,独立电梯入户的配置。客厅局部挑高6.3米的设计在成都市场上已经绝版,据我了解到,目前新建商品房中还有这种设计的只有麓湖生态城这一个楼盘,这种设计使客厅显得宽敞大气、极大的增加了房屋的采光面,大幅度提升了居住的舒适度;四梯四户,独立电梯入户的设计,保障了住户私密性的同时,也提升了住户的尊贵感、生活的仪式感。

(样板间实景图)
户型图:



总结:卧龙谷壹号作为城东领军豪宅,是成都稀缺的低密度生态大盘,该项目对于城东乃至整个成都对产品定位和居住环境有高要求的购房者来说是很具有参考价值的。
对此你怎么看?欢迎留言交流~