项目地址:蓝星万象城
业主诉求: 经常在家办公,要求有一个独立书房,想在主卫放个浴缸;孩子房间要有独立书桌,家里书都比较多,最好有能随手能拿取和收纳的地方;爱人想要一个鱼缸,储物空间多多益善,厨房电器较多,最好能有个类似吧台的料理区......
对业主的印象:优雅知性,个人素养较高,重视孩子教育。一家三口都比较喜欢传统文化,待人友善随和。喜欢阅读,热爱生活。

我们不会把一个户型某个不完美的的地方称之为缺点,因为优缺点这件事情是相对的,是基于使用这个空间的人对他的偏见,完美也是相对的,我经常和业主说,这个时代,我们已经得到的够多了,够多了......
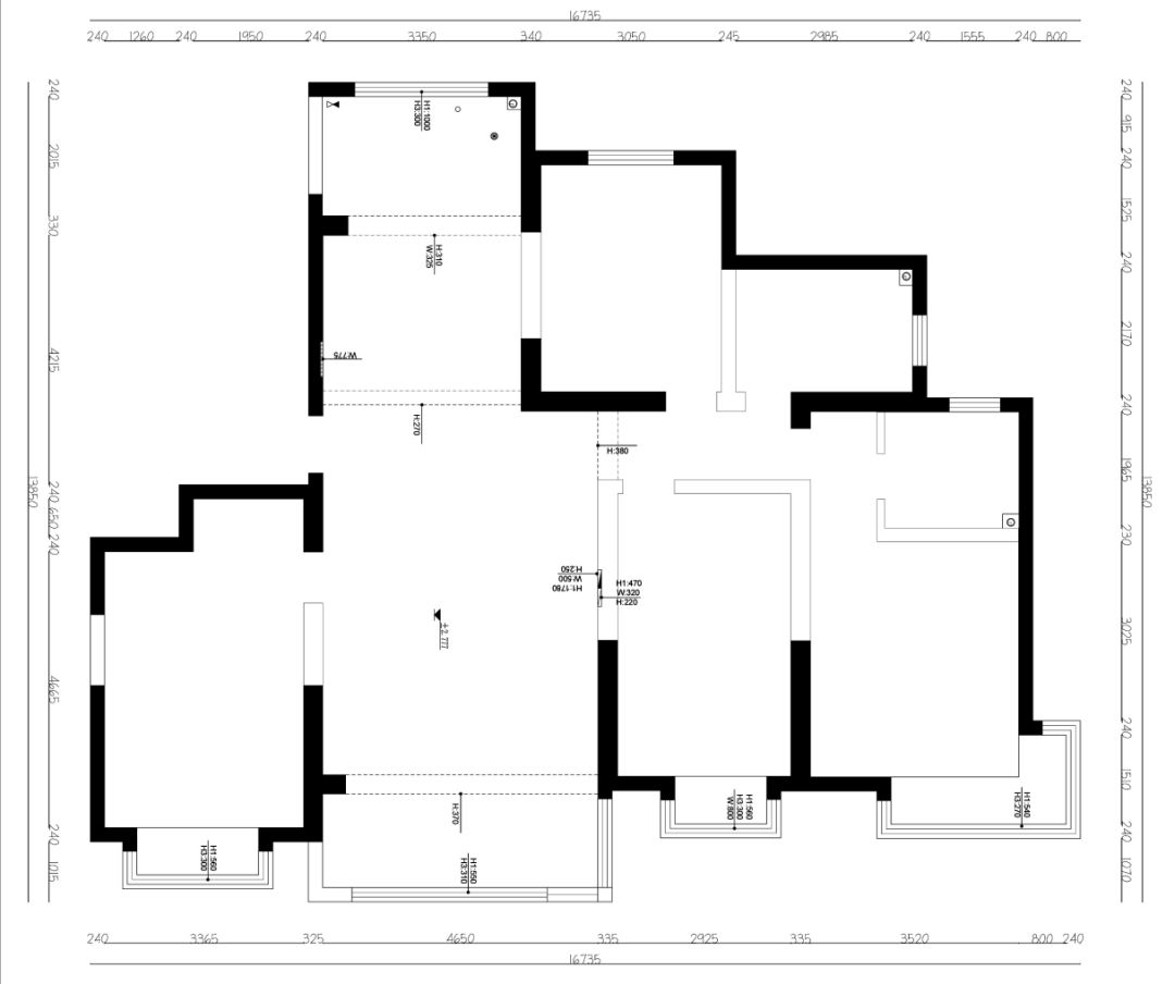
四室两厅两卫,往前一步青岛路,后退一步海滨路,这个位置完美极了。虽然户型在承重结构上对设计有点限制,但总体来说还是一个比较不错的奢享型住房。在大框架和各功能区无法做较大更改的前提下我们重点解决三个问题:

1. 入户门对卧室门,老生常谈的的基础问题。我们对玄关的依赖普遍很强,但都处于人人心中有各个口中无的状态,每个家里都想要一个玄关出来,但就是说不出来为什么想要它。其实玄关在一个空间里无论从功能上和心理上都起着举足轻重的作用:从精神上讲它是家的标志,从功能上讲它是视觉缓冲,从风水上讲它是聚财纳气,从心理上讲它是隐私过渡。但我们如果从走廊中间设置一道隔断出来势必会把室内动线打散,综合利弊,我们把走廊尽头卧室门的位置设为玄关墙,打开家门,第一眼看到的就是自己喜欢的家的样子。
2. 儿童房门切客厅的问题。这类问题我们在很多户型中也经常遇到,这类门洞的开的位置不在最左也不在最右,刚好卡在一面墙的五分之二处,左右又不能改动,对整个墙面的比例美感和隐私方面造成很大的影响,让大家很是头疼。虽然设计师不是神,但这类问题对我们来说还是很容易解决的,平面上解决不了的问题,我门要学会上升到立面,立面上解决不了的问题要上升的顶面,顶面上解决不了的问题再上升的色彩灯光和软装弱化,这些都解决不了怎么办?要么是客观存在的真没办法解决了,要么就是您该换设计师了。对这类问题首先大家都会想到的是隐形门,隐形门对这类问题的解决确实屡试不爽,但如何让隐形门和功能有机结合做到一加一大于三这就是一个需要设计的问题了。(效果图上是单纯隐形门的做法,平面上是隐形门和功能结合的做法,大家可以参考一下)。
3. 我们真的需要四室吗?(这个问题的解答之针对一家三口,二孩或有老人同住的除外)对于这个问题我们对我们服务过的一家三口的业主做了很多跟踪调研。发现三加一那个单独卧室的闲置率为百分之九十以上。又和本案委托人做了长线的交流,深入沟通后我们决定把书房和主卧合二为一。由于本案业主藏书较多,习惯在家办公,又有累计多年的阅读习惯,这一做法满足了业主需求的同时增加了整个房间的舒适度,让两个空间增加了互动性,两个功能区因为有一扇特殊的移门既能统一又能各自独立互不干扰,大大提升舒适体验感。
难题解决后我们是不是就松了一口气了,相反,这只是设计的开始,庞大而复杂的面及细微和关键的点才是设计师真正要解决的问题。我们会对关键尺寸和动线上做一些调整和优化,在奢享型住宅提升舒适度和体验感是我们的追求,比如扩大走廊宽度、强化中西厨概念、室内空间与室外庭院互动等在这里就不一一赘述了。

新中式的“新”个人理解为“现代”或者“当下”,新时代背景下的生活方式以及思维模式,我们无法抛开传承几千年下来的文化汲养,我们都会使用仁义礼智信作为我们的底层价值思维来看待这个世界,正如新中式也无法抛开对称、借景、留白、意境等内核,但,他可以和现代结合,用他和现代人的生活习惯、审美情趣、价值取向以及现代材料有机统一。
以下为部分效果图,期待施工完美落地。





设计师:周海斌
设计是一场修行,热爱生活,汲取生活,将自己所坚持的设计价值传递下去。

热爱四季的每一个晴天和阴天,
热爱大自然中每一朵盛开或枯萎的花,
热爱生活中每一句爱和恨的许诺,
热爱生命给予我们每一个大小好坏的角色。
感谢设计师为我们带来了原创点评和改造建议,相信能给将要交房的业主一些灵感,也欢迎设计师加入我们威海新楼市的平台,通过我们平台发布自己的作品,分享自己的经验和灵感,在威海扬名立万。
如果您希望得到设计师的客观点评和专业建议,欢迎加入我们的装修讨论群。
在威海装修怕被坑?
装修公司不知道哪家好?
材料商场走一走,商家报价水分大,
选择起来一头雾水?
现在开始,加入威海新楼市装修讨论群。
1000+位要装修的业主和你一起讨论!
内幕,陷阱,通通现行,
还有专业老师为你解答所有问题!
加入方式:
通过文章底部留言或对话框留言,
我们在这里等你!
还记得威海那点事吗?这里是我们的新战场!记录威海楼市变化,分享真实楼盘信息和客观点评。帮助更多新威海人解决移居,旅居威海遇到的问题。各行业大咖分享在威海生活,创业,工作的经验。感谢您的关注,让我们一同成长和进步!
长按二维码关注我们“威海新楼市”▼

↙↙↙点击“阅读原文”查看更多威海买房攻略