尺 寸面宽18.4米 进深16.7米
建筑面积185.0㎡
设计机构易盖房钱帅工作室
土建造价40.0万
项目概况

△总平面示意图
项目位于安徽,基地西、北两侧是空地,东侧是邻居家住宅,南侧是村内道路。项目属于在原有建筑的原址上翻盖,原有建筑为“L”型住宅,业主在前期为我们提供了造型参考图,参考业主喜好和场地情况,建筑最终选择现代风格。
图纸设计

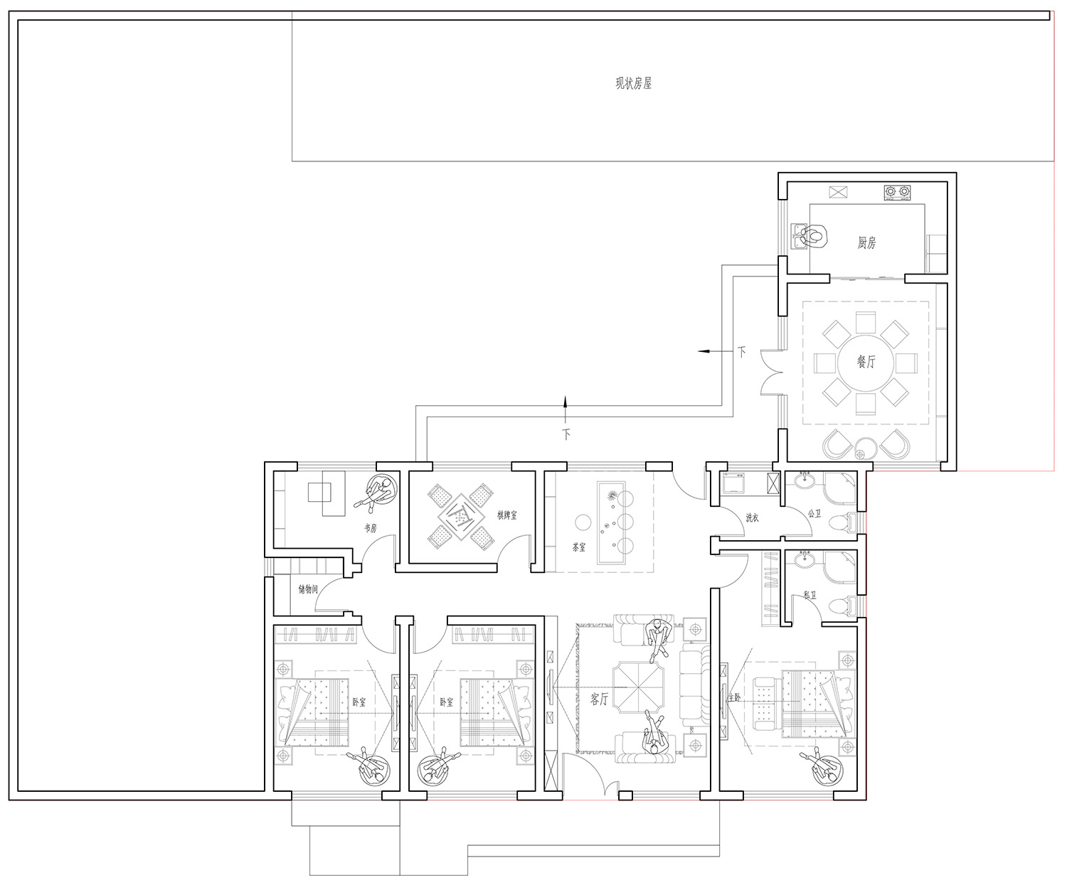
△一层平面图
建筑从南侧入户,客厅和茶室选择一体设计,南北通透的格局将接待空间渲染得十分大气。内庭院通过茶室处的入口与建筑连接。
正房共有三间卧室,主卧配有独立卫生间。所有卧室均位于南侧,客厅、卧室、餐厅等主要空间均有南向采光,保障室内环境。书房、棋牌室位于北侧,多种功能满足业主及其家人的不同需求。
餐厅、厨房布置在厢房内,根据场地情况,餐厅可获得多向采光,与外界连通的布局将内庭院景观引入室内,提升用餐环境和品质。
造型设计

△鸟瞰图
建筑整体偏向现代风格,立面以真石漆为主,为了避免建筑过于单调,局部使用木格栅进行装饰,不仅利用木色点亮建筑,格栅的设计让立面具有更多层次。

△鸟瞰图
建筑南侧门头配合屋顶部分的人字顶强调出了建筑正面的体块感,避免出现立面过于单调的情况。门头柱体选用文化石强调,突出空间的同时提升质感。

△西南侧效果图

△南侧效果图
庭院分为两个部分,西侧以景观为主,东侧作为交通空间和活动场地使用。东侧靠近院墙部分利用绿化和休息平台丰富空间,此处平台正对茶室、棋牌房,与室内互动更加方便。

△庭院效果图
西侧景观区域以水景为中心,石头堆砌的外观古朴、随意,却展现出了中式田园风情。中心水景与院墙上的水墨画呼应,将空间意境展现出来。

△庭院效果图
阳光房区域为“L”型轮廓,与建筑轮廓相似。此处作为闲时小酌之地,空间十分私密。如业主后续有需求可以将阳光房位置改为车库,临路一侧的位置让使用变得极为便利。

△庭院效果图

△东立面图

△西立面图

△南立面图

△北立面图