“泛海国际规划更改的核心争议是,之前写字楼是否可售。”中原地产首席分析师张大伟对《中国建设报·中国房地产》表示,不可出售的写字楼相对来说价值较低,如果规划更改导致不可售的写字楼变更为可出售的住宅,则整体货值变化较大。
近日,泛海国际项目1号地块规划更改引发舆论热议。有业主反映,泛海国际1号地块已经封顶的五栋别墅正在被拆除,小区门口张贴的《公示说明》解释该区域将要更改规划。
据了解,泛海国际北区位于东四环朝阳公园东侧,原本由泛海控股开发建设。今年1月份,融创房地产收购了泛海控股子公司北京泛海东风置业有限公司(以下简称“东风置业”)拥有的北京泛海国际项目1号地块。
规划更改引争议?
泛海国际业主反映,1号地块原本是被规划建设少量住宅,主要建成商业配套,但是,该地块被泛海控股卖给融创之后,规划被更改,商业配套减少,住宅面积增多,影响生活品质。
《公示说明》显示,原方案地上建筑规模约44.6万平方米,其中住宅9.5万平方米,配套、商业及办公35万平方米,人防0.04万平方米,建筑高度180米。
调整后地上建筑规模约36.6万平方米,其中,住宅26.5万平方米,配套、商业及办公10.01万平方米,人防0.1万平方米,建筑高度100米。
东风置业发布公告指出,按照国务院对北京市城市规划的要求,此规划符合北京市落实疏解非总部功能、落实新的北京城市规划要求,在泛海国际住区建设的十余年中,也按照北京市相应的规划要求,进行过多次规划调整。项目所在地块属于协议出让地块,规划调整不涉及重新收储再次招拍挂事宜。在泛海国际住区整体生活需求方面,未涉及商业配套更改。
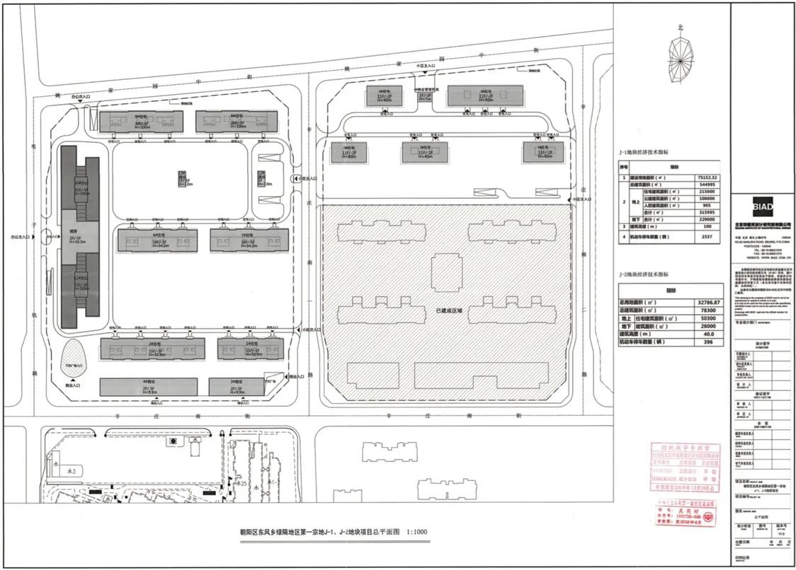
《中国建设报·中国房地产》查阅发现,北京市规划和自然资源委员会官网早已于2019年5月16日发布《朝阳区东风乡绿隔地区第一宗地项目(公示期限30天)》,“按照《北京城市总体规划(2016-2035年)》相关要求,现建设单位对项目规划设计方案进行调整,调整后地上建筑规模约36.6万平方米,建筑高度100米。”并且上传了规划更改后的项目平面图。

项目货值增高?
业内人士解释,规划更改后,该项目的地上建筑规模减少8万平方米,但是,住宅面积占比大幅增加,由原来的9.5万平方米增加至26.5万平方米,增幅17万平方米。泛海国际小区的房价已经突破每平方米10万元,所以规划更改之后,住宅面积的增加会影响整体项目货值的变化。

更改后的项目平面图
对此,东风置业表示,部分媒体所说的“项目的货值至少多出了200亿元”内容,是进行了数字方面的估算、杜撰,故意进行舆论引导,并未考虑减少面积产生的货值减少事宜。
“泛海国际规划更改的核心争议是,之前写字楼是否可售。”中原地产首席分析师张大伟对《中国建设报·中国房地产》表示,不可出售的写字楼相对来说价值较低,如果规划更改导致不可售的写字楼变更为可出售的住宅,则整体货值变化较大。
之前有舆论指出,泛海国际规划未更改之前,35万平方米的商业部分不可出售。对此,《中国建设报·中国房地产》致电融创集团进行求证,截至发稿前,未收到回复。
2017年正式发布的《北京城市总体规划(2016年-2035年)》要求,为了留住北京壮美的天际线,北京未来要严格控制100米以上超高层建筑的高度和选址布局。张大伟表示,这个硬性规定让很多项目修改了原来设计。

对于此次规划更改引发舆论热议,北京市规划和自然资源委员会6月5日发布《关于建设项目规划设计方案公示有关事项的说明》,“对建设项目规划设计方案开展公示,是我委按照《城乡规划法》和《北京市城乡规划条例》听取公众意见的一种方式。公示期间收到的反馈意见我委将逐一进行分析采信。属于我委职责,且符合事实和法律规定的意见,我委将予以采信。不属于我委职责,或不符合事实或法律规定的意见,我委不予采信。”