
西区花园白领公寓

西区花园白领公寓位于郫都区犀浦的核心区域,小区建成于2009年,开发商是成都志达房产开发有限公司,小区物业是四川省润无声物业发展有限责任公司。
小区概况
小区至今已有11年楼龄,整体来看,小区外观较新,楼龄尚短,属于次新房。较纯新房相比,除有价格优势外,在物业配套、户型设计、居住环境上也丝毫不逊色。与同区域小区相比也有一定的竞争优势。小区自建成至今有一定年份,相对老旧,但整体状况仍可圈可点。品牌物业方的精心维护给居民一以贯之地营造着舒适的居住环境,生活配套也较完善。小区均价处于区域价格洼地,有一定价格优势,刚需一族可考虑入手。
在小区居住舒适度上,小区有着1.8的容积率,小区规划合理,整体布局较为宽松。楼间距较大,居住体验良好。
小区具有很高的绿化率,这也是与周边小区相比最具竞争力之处。舒适宜居的环境往往使人身心愉悦,因此对于居住环境有高要求的购房者可以考虑入手,但小区的价格优势则不明显。
房价行情
计算到2020年6月,小区挂牌均价为9043元/平方米,比犀浦均价(1.27万/㎡)低约3700元,低出郫都区均价(1.04万/㎡)1348元。小区均价整体偏低,当前处在一个明显的价格洼地中。

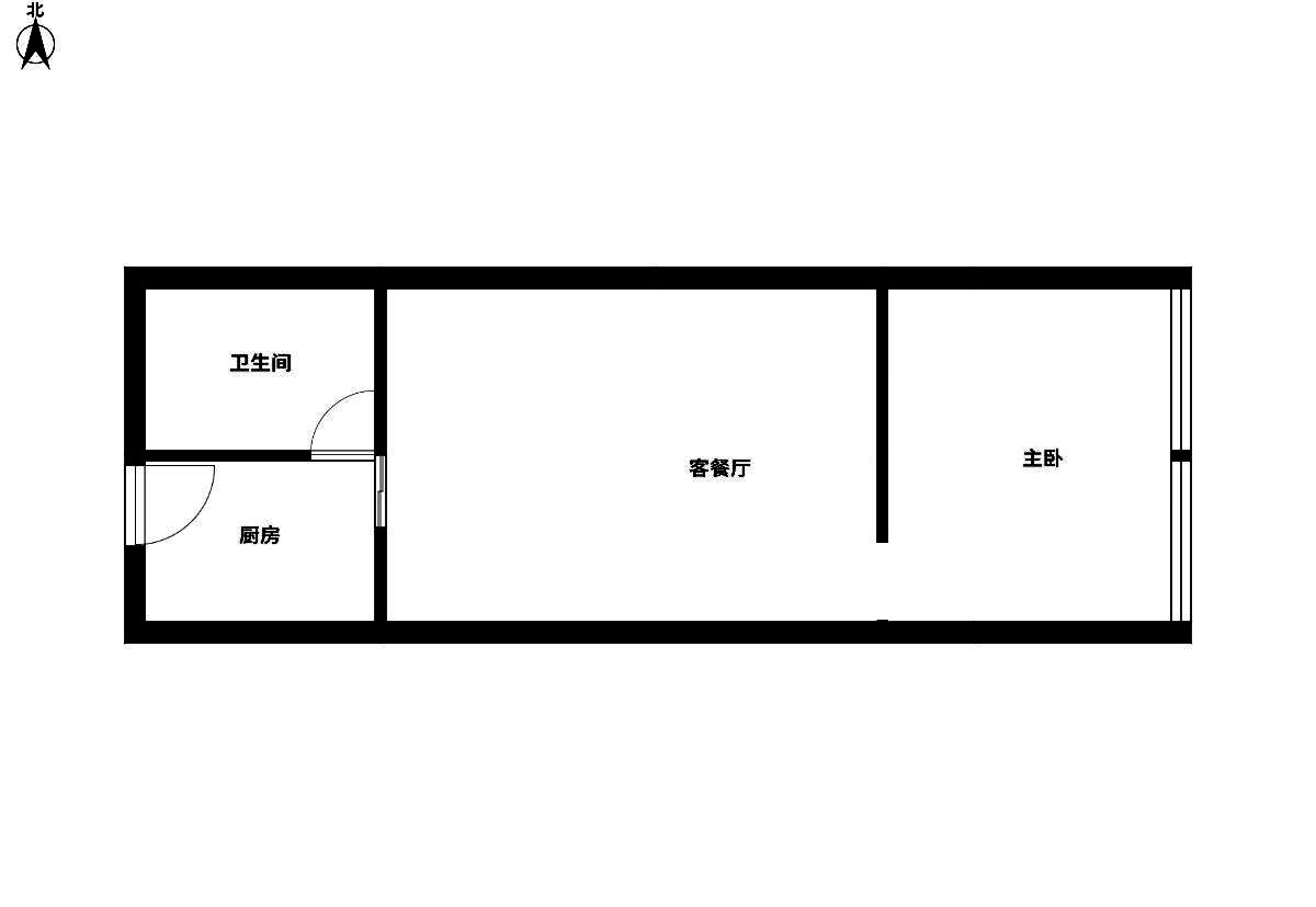
推荐户型
本小区户型多种多样,总房价在25万~88万之间,适合不同需求的购房者选购。
当前小区主力户型为小一居,低总价,朝南,全天采光良好。

交通配套
距离地铁天河路站直线距离约608米,公共交通配套较好。
生活配套
小区有便利的生活购物体验,出门就是大型购物中心鑫大百盛购物中心,大约1132米左右的距离。
鑫大百盛购物中心是集购物、餐饮、娱乐于一体的大型购物生活综合体,一站式解决居民的生活购物需求。
生活配套十分齐全,可满足各个年龄段住户的不同需求。
健康医疗
项目5公里内有新华医院、天康医院、郫都区中西医结合医院、和万家医院、振华医院,医疗资源丰富。
小区对比
除了西区花园白领公寓,犀浦板块还有哪些二手房小区可供选择?
以下为本板块部分二手房小区,点击小区名可查看详情:
- 乐视界广场(建筑年代:2020;均价:10221.1元/㎡)
- 大陆美地西庭(建筑年代:2018;均价:16678.0元/㎡)
- 龙城半岛(建筑年代:2018;均价:14228.4元/㎡)
- 朗基少帅府(建筑年代:2018;均价:14895.9元/㎡)
- 万科理想城(建筑年代:2018;均价:16116.8元/㎡)
以上即为幸福里对西区花园白领公寓的测评内容,小区具体信息请以实际情况为准,欢迎*载下**幸福里app看房选房。
