【楼盘名称】春藤小镇
【装修面积】111㎡
【装修户型】四居室
【装修风格】简中
【设 计 师】潘婷
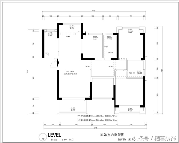
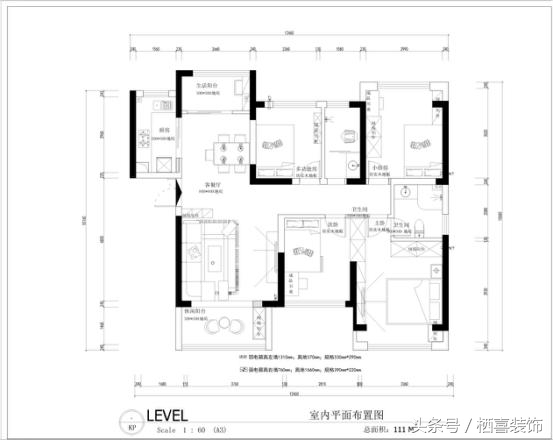
户型分析及方案介绍

四居室的户型,让空间非常宽敞,虽然是传统的布局,但是生活阳台和休闲阳台在一条直线上,这样的布局让通风和采光效果都非常好,让居住生活更加的舒适。另外飘窗的设计不仅美观,而且还拓宽了房间的视野和格局,在生活起居和功能等方面都让该户型加分不少。

简中风格虽然不如其他风格那样流行,但是其容易唤起共鸣的精神内涵还是备受推崇。在功能布局中秉承简约风格的特色,在造型和软装方面遵循中式风格的特征,能够让居住者在感受惬意生活的同时,还能找到精神归宿和难得的归属感。大量的木制作适可而止,不仅点缀了空间,还发挥着强大的功能作用。
效果图

含苞待放的荷花,加上晕染的宣纸所投射的文化内涵,搭配经典的红木餐桌椅,让中式风格的儒雅、恬静表露无遗。

简约中式风格的整体兼有传统中式风格和现代简约风格,不会有中式的那种沉闷,也不会有简约的那种飘逸,它沉稳大方,不失品味,每一个角落都在简单中沉淀出中国传统文化的魅力。

中国文化的博大精深在主卧的一幅画、一幅字、一盏灯、一对枕头中以小见大的表现着,潜移默化的表达着文化的力量。

一张舒适的沙发,一套简单的桌椅,就可以造就娴静的书画、工作世界。

除了童趣,还有简约,腾出的空间让家中的小孩可以自由发挥,这样才不失小孩房的功能和魅力。
更多装修案例请关注:栖喜装饰官网