
观承别墅位于古代出京御道“方氏渠”之上,现今北京顺义高丽营镇于庄区域。史料《顺义县志》中记载,乾隆皇帝为表彰著名水利专家方观承治水之功,赐名“方氏渠”,故“观承”一词,由此得名。
-
观承 · 历程
-

2013年,三磊主持设计观承别墅一期,2016年初开盘即售罄,荣登千万级别别墅销冠;随后的观承别墅二期荣获2017年金盘奖年度最佳别墅荣誉。观承别墅·大家是基于观承既往项目经验所研发的第三代产品。从观承一期中魂西技的联排别墅,到观承二期传统中式的合院产品,随着居住产品的更新与对设计本源的思考,这次北京万科与三磊设计选择从形到意,以东方意境及空间回归居住的本源,打造全新的精工别墅。


观承别墅产品的更迭,不仅是一次次设计理念的创新,更是开发者、设计者、居住者对文化理解的升华。从起初跟随舶来文化提出的“中西合璧”,到体现传统文化自信的“新中式”,再到当下回归居住本源的“东方意境”;如今的居住产品不再拘泥于具象的风格,更多展示的是生活质感与自然之美。
-
升级 · 升华
-

改造前的观承示范区
三磊设计已经与观承项目共同成长5年之久,可以说,没有任何设计团队比三磊更熟悉这片土地。观承一期二期拥有一个非常唯美的展示区,中轴对称的水面和端庄的建筑相得益彰,所传递的高端产品定位与品质深受客户认可,并在过去几年成为万科最美展示区的典范。为呼应东方意境的新一代产品主题,向客户展现未来生活的真实场景,我们对原有示范区进行再升级。

观承别墅·大家示范区平面图
“观承·大家”作为城市山林里的桃源居所,怎样才能发挥它的最大价值,让它更好地融入并服务于当代生活?我们将原有售楼空间整体改造、局部加建、室内重新布局,增加客户的体验感和参与度,打造一栋含蓄而雅致的示范区。


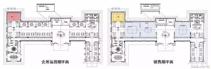
由于销售建筑在交付后将变为餐饮会所,为避免不必要的资源浪费,在原始售楼处的改造之初,即为此后的会所运营做出预见性设计。设计团队打破常规设计思路,根据会所功能要求首先确定运营期的平面布局,并在软装增补、硬装小改的原则下,由运营期平面思路倒推出销售期的设计方向。



销售期建筑需要兼顾“观承别墅”与“观承别墅·大家”的双重营销任务,因此室内空间以单入口、双参观动线的方式,串联起三个沙盘区、双水吧台及双洽谈区,以避免参观高峰的流线混*交乱**叉。

销售建筑名为既见堂,“既见”一词出自《诗经》,带有一种相见于顷刻之感,具有典型的东方韵味,三磊团队希望将“既见”的时间与空间进行延展,通过大面积可旋转的玻璃门窗,模糊室外与室内之间的界限,当玻璃门旋开后,自然山水与楼台亭榭近在咫尺,充满东方意境,呈现出建筑与自然共生的体验。
-
厅院 · 共生
-

为了让居者体会居于此的舒适宁静生活,我们打造一个以“垂直园林”为主题的合院样板间,并把东方居住意境的表达推向高潮。


为了最大限度地实现人与自然的融洽互动,建筑外立面玻璃的面积比例较上代产品增加了25%,同时各层起居厅采用大面积推拉门以实现更加通透的界面。尤其是首层客餐厅采用九十度全景推拉门,取消角柱,实现LDK(客厅、餐厅、厨房一体空间)居住空间的无限拓展,营造开阔的视野和丰富的层级,这也是国内住宅领域首次实现角部完全开敞,真正使室内外空间交融贯通。

设计团队以“城市山林”的理念打造私园,将传统二维平面园林演变为三维多空间叠合园林。建筑在不同高度上设置六个不同高度和大小的院子、露台、阳台,让它既是居住空间,也是立体园林空间,多种室内外路径的串联方式形成与自然接触的游园体验,实现人、建筑、自然的和谐共生。


地点:北京 顺义
客户:北京万科
设计:三磊设计
规模:15.51 万平方米
容积率:1.01
服务:规划设计/ 建筑设计
摄影:存在建筑
观承别墅·大家宣传片
E N D