
视野超好的落地窗,是很多人心中Dream House的必备元素。尤其是对于大宅来说,既要合理划分空间功能,又要保证良好的采光与视野。
为了满足这些需求,屋主在室内装修时也把窗外景色考虑其中,让室外景观成为室内装饰。家居君今天给大家推荐的家,就是一套420m²拥有整面落地窗的房子。设计师在与屋主进行充分沟通后,优化室内布局,以白色和灰色为主色调,利用明黄、蓝、绿、红为配色进行调和,本着开阔简洁的原则,打造出这个高级又明快的家!
认识她

设计师李晶一
LW设计事务所设计总监
从业20年
设计过很多优秀的项目,比如:京润水上别墅、嘉林花园、西山美庐等。在她看来,设计是用来诠释生活的,所有空间围绕居住者而规划,才是设计的重要意义。
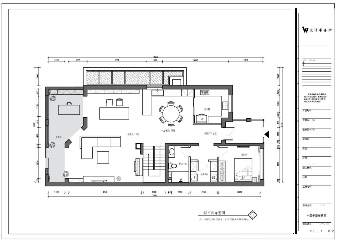
房屋信息
户型:四室
房屋建筑面积:420m²
坐标:北京




左右滑动查看改造前平面图




左右滑动查看改造后平面图
改造重点:
房子是业主的原住宅,已经居住过一段时间,随着孩子的成长对空间需求的增加,原户型已经没办法满足生活需求,所以打破了原有的常规格局,进行重新规划,去除繁琐浮夸的装饰,以简洁、满足功能为主。
01/ 客厅
开放式交流区,满足家人互相陪伴

一层整体是个大型开放空间,客厅、餐厨区和书房都在这里,整墙落地窗设计,在视觉上达到了延伸空间,站在大落地窗旁边,时刻都能感受到沐浴阳光的温暖。

作为全家人的活动区,可以满足家人间的交流与互动,孩子们写作业,大人喝茶、看书,功能一应俱全,又能抬眼就看到彼此。

整个公共区域都采用无主灯设计,利用简单的筒灯、线形灯来完成空间照明,营造出沉静、简洁的氛围感。房屋在结构上有很多几何线条,多处使用灯带让空间更有建筑的延伸与层次。
客餐厅地面使用了意大利ITALGRANITI瓷砖,以天然大理石为原型,砖面渲染石头的纹理,达到渐进变化的效果,美观的同时也非常好打理。

虽然是旧房翻新,但客厅大部分家具都是原房子有的,秉持不浪费的原则,重新进行分配和陈设,没有浮夸的饰品,所有装饰都是尊重了屋主的喜好来设计。角落里明黄色置物架的鲜明色调,成为了视觉点缀。
02/ 餐厨区
个性化搭配,让空间更立体

餐厨区位于客厅另一侧,延续了现代简洁的设计。
台面采用了太空黑岩板材质,吧台一侧利用10公分厚的整块木板做了延伸。天然的纹理配合周围的灰色调,更能突显高级质感。

餐桌为实木复合材质,刚好与延伸吧台形成呼应,时尚与传统的搭配,也在这里形成了鲜明的对比。

餐椅的选择上比较灵活,有现代感极强的设计,也有木质,呈现出传统与现代的碰撞与融合。

客厅看向餐厨区视角。橱柜是定制款,选择覆膜烤漆材质,光泽感加倍。
03/ 书房
整墙展示柜,收纳力超强

书房位于客厅与餐厨区中间,是整个公共区域的组成部分。背景墙采用了灰色调展示柜,凸显屋主沉稳的个性,同时也呼应整个空间的优雅格调。
展示柜是来自德国的品牌定制款,中间大块面板可以推拉移动,在需要的时候用于遮挡和变幻格局。

由于书架整体高度比较高,为了方便小朋友拿取书籍,特意安装了有横向轨道的可移动梯子,2.4米的高度足够使用,也比独立梯子更加安全。

书房区的桌椅主要是家中小朋友的学习使用,因此选择了活泼的明黄色椅子。将学习区设在这里,也使得小朋友能与父母随时交流互动。

学习桌同样来自国外品牌,实木复合材质更好打理。


楼梯是以木材、透明玻璃、铜质扶手组合而成,简洁利落。利用空间的优势,增添了层次感。扶手部分简洁而现代,让楼梯区域线条感十足。
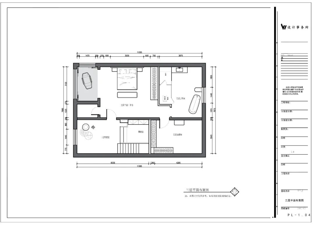
04/ 卧室
用于休息,静谧安逸为主

二层南卧室的墙面选用蓝灰色的乳胶漆,配合大块白色更显素雅。大幅的装饰画购自于挪亚家,放在这刚好呼应整体风格。

不规则形状床头柜,来自意大利品牌PORRO。倾斜与平衡并存的理念,给床头增添趣味性。

主卧位于三层,大概有35m²。淡雅素净,浅灰色的墙面给人宁静祥和的放松之感。

床头花瓶颇有质感,石材与彩色玻璃相结合,刚好与床头相呼应,营造现代空间里的古朴氛围。休闲阳台同样是采光极好的落地窗,配合舒适的摇椅和羊毛地毯,平时可以在这里阅读或者冥想。
05/ 卫生间
各具风格,个性化打造

这个区域是南卧室的卫生间,色彩鲜明,采用多个色块搭配,展现出一个富有想象力的空间。

晶莹剔透的水龙头来自汉斯格雅-雅生的斯达克系列,设计感满满。

主卫与卧室保持同样的色调,地面与墙面为意大利ITALGRANITI瓷砖,纹路细腻自然,层次分明,也为空间增添几分硬朗的气质。
黑色的玻璃门分别为淋浴房和桑拿房,洗手台旁边有一个灵活的小边几,可以根据使用需要任意移动。边几的台面是贝壳宝石材质与金属的结合,更有质感。

天窗是房屋原本的结构,重新规划后,对顶面进行重新设计,利用防水石膏板和隐形灯具,使得浴缸上方极具建筑感。
05/ 其他活动区
二层活动区 · 孩子的主场

二层是孩子主场,休息区设计以儿童的喜好特点为参照,即能欣赏窗外的景色又能欣赏动听音乐。两间卧室整体色调偏明亮温暖,颜色活泼、丰富,通过天花造型做出柔和的光线条,搭配简单的家具,在一定程度下提供了小朋友空间玩耍、又保证了孩子私密性。

一个房屋,居住者的感受往往是最重要的,所以,从心出发,以个人喜好为主,打造一个最合适,最喜欢的家,才是享受生活的开始!
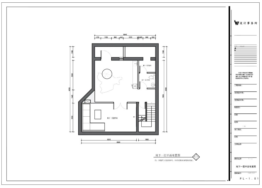
负一层 · 休闲空间,开阔放松最好不过

从楼梯下来就到了负一层,这里是家里休闲、娱乐的区域。
设置了简单的水台和柜子,旁边有一个小酒柜,屋主平日会收藏少量的红酒,在休闲之时会和家人一同品尝。

角落的陀螺椅引人瞩目,来自意大利家具品牌Magis,它没有常规四平八稳的椅腿,没有固定的入座方向,就像一个陀螺。

椅面的纹理仿照着黑胶唱片的表面进行设计,细腻的线条纹路如同旋涡般富有吸引力,整体都充满了雕塑般的美感。玫粉色与墙面的墨绿色相碰撞,演绎出浓郁的复古感。
其实一个房子,最重要的就是居住者的感受,所以这个家的每一个空间,设计师都是根据业主对不同空间的需求进行规划,从心出发,以简洁的设计、完美的细节,营造出一种“家”的感觉。
——好物推荐——

文字 / y·t
策划 / Kiki
图片 / 设计师