楼盘信息

博林君瑞位于深圳市宝安区沙井街道南环路与中心路交汇处,项目占地面积45171.6m,建筑面积175297 m,分为两期开发,共规划有7栋,6栋高层、1栋幼儿园。可售总户数为866户,住宅有729套,商业套数为137套,车位共1014个,车位比接近1:1。

项目于2018年6月开盘,A、B两座属于回迁房,C、D、E、F、G属于商品房(C座有一半属于回迁房),回迁房与商品房的花园不共享,商品房区花园更大更美观。
本项目户型为90-160m的2-4房,主力户型为90㎡3房。产品类型倾向刚需业主的需求,户型方正通透,自住舒适度极佳,均为3梯5户,梯户比合理。

A丨B丨C丨D户型 约90㎡2房2厅2卫(可改3房)
1、在C/D/E/F/G座均有分布,也是房源数最多的户型,整体朝东南及西南,且朝园林的占比较多;
2、主卧带独立卫生间及阳台,但阳台面积较小,不适合做标准卧房,可改造为衣帽间或小书房,提高实用率;
3、U型厨房设计,使用性能较佳,但不正对餐厅,传菜或不便捷。

E户型 约90㎡3房2厅2卫
1、房源分布在C/D/F/G座,朝向朝东南或西南,户型均临马路一侧,低楼层容易受灰尘和噪音影响;
2、主卧配备景观阳台,可用作小书房或衣帽间,提升空间实用率;
3、卫生间分离式设计,厨房U型设计,使用的性能均较佳。

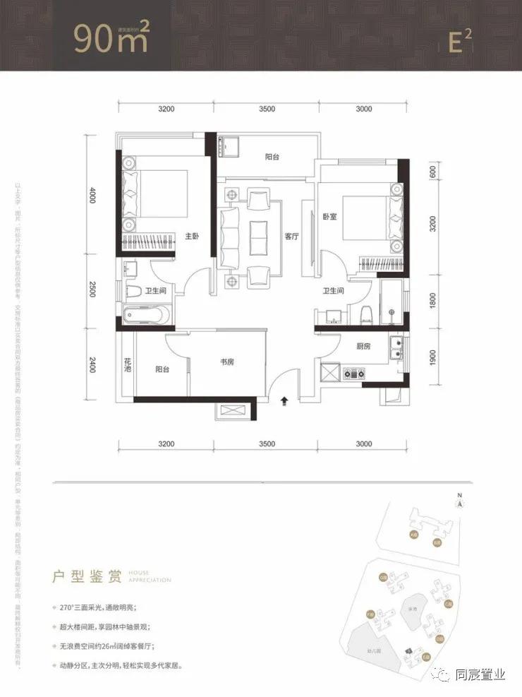
E²户型 约90㎡3房2厅2卫
1、房源分布在E座,为西北朝向看花园,整体较为安静;
2、图纸上没有餐厅的设计,或可把书房部分改造为餐厅;
3、客厅开间3.5米,两卧室的开间也达到3米以上,整体布局较为方正、宽敞。
教育配套

项目对应学区为宝安中学(集团)第二外国语学校,宝安中学(集团)第二外国语学校前身为上寮学校创建于1990年,于2011年扩建成为一所九年一贯制学校,学校东临107国道,西接沙井市民广场,地处沙井街道中心区,占地面积25918平方米,为九年一贯制学校,建设规模54个班,由2017年4月15日加盟成立。
距离项目不远还有深圳外国语宝安学校,2021年4月7日深圳外国语宝安学校公布招生范围,沙井海岸城、鸿荣源禧园等小区被划入,而此前被认为带深外预期的博林君瑞,并不在招生范围内。

万丰小学创办于1927年,现有25个班,学生人数1315人。近年来,学校规模迅速发展社大,2000年通过区级评估,2002年通过市级评估,2007年12通过区优质化学校评估,2010年6月涵过宝安区救师培训、家长培训“双优”学校评估。
交通配套

项目距离地铁11号线马安山站直线距离1公里以上,预计步行时间需要20分钟左右,距离有些长应考虑单车或者转乘方式。11号线作为城市快线,大概用时40分钟左右直达南山中心区,60分钟左右直达福田中心区,在交通出行的时间成本上提供了重要保障。

公交线路主要集中在中心路上,项目楼下有新丰苑站,西北处沙井天虹商场线路较多,需步行700米左右,主要为环沙井街道内小巴和接驳机场东的西部公交,通达关内公交车则主要集中在宝安大道上。

自驾方面上宝安大道连接深南大道,直达南山、福田,不过一路上红绿灯较多。目前较为便利的出行线路走沿中心路,沿107国道走新安片区,再进入深南大道,直达南山科技园、福田中心区等地。
商业配套

商业配套集中在项目北侧,有农批市场、义务商贸城、行色城购物广场、天虹商场,社区出行居民购物相对便利,但整体商业氛围不够。

沙井老中心比较繁华的商圈是原有的沙井老街商圈和沙井万丰商圈,主要集中在宝安大道沙井站两侧,其中沙井新天虹、京基百纳,距离项目较远。

在距离项目不远的沙井海岸城和万科星城也在建设当中,大体量集中式商业或引领马安山片区形成新的商圈。
楼盘总结
优势:
- 沙井周边次新房小区较少,没有更多选择
- 项目于18年“731”政策前开盘,部分在新政前网签的房源不受三年限售影响可直接交易,万科星城仍需要两年以上才能交易
- 项目地理位置未来可共享沙井海岸城的商圈配套
劣势:
- 项目失去了深圳外国语宝安学校的学位预期,目前得到消息业主正在集资聘请律师起诉,争取深外宝安分校共享权益,我们将密切关注,有最新消息第一时间和大家同步
- 项目离地铁较远,步行地铁站近20分钟
- 项目房价已上涨不少,同比周边限价新盘性价比不高
