内容摘要:松江区新桥镇将新建新桥晨新幼儿园,占地7200.2平方米。目前该镇共有4所公办幼儿园。

项目区位图
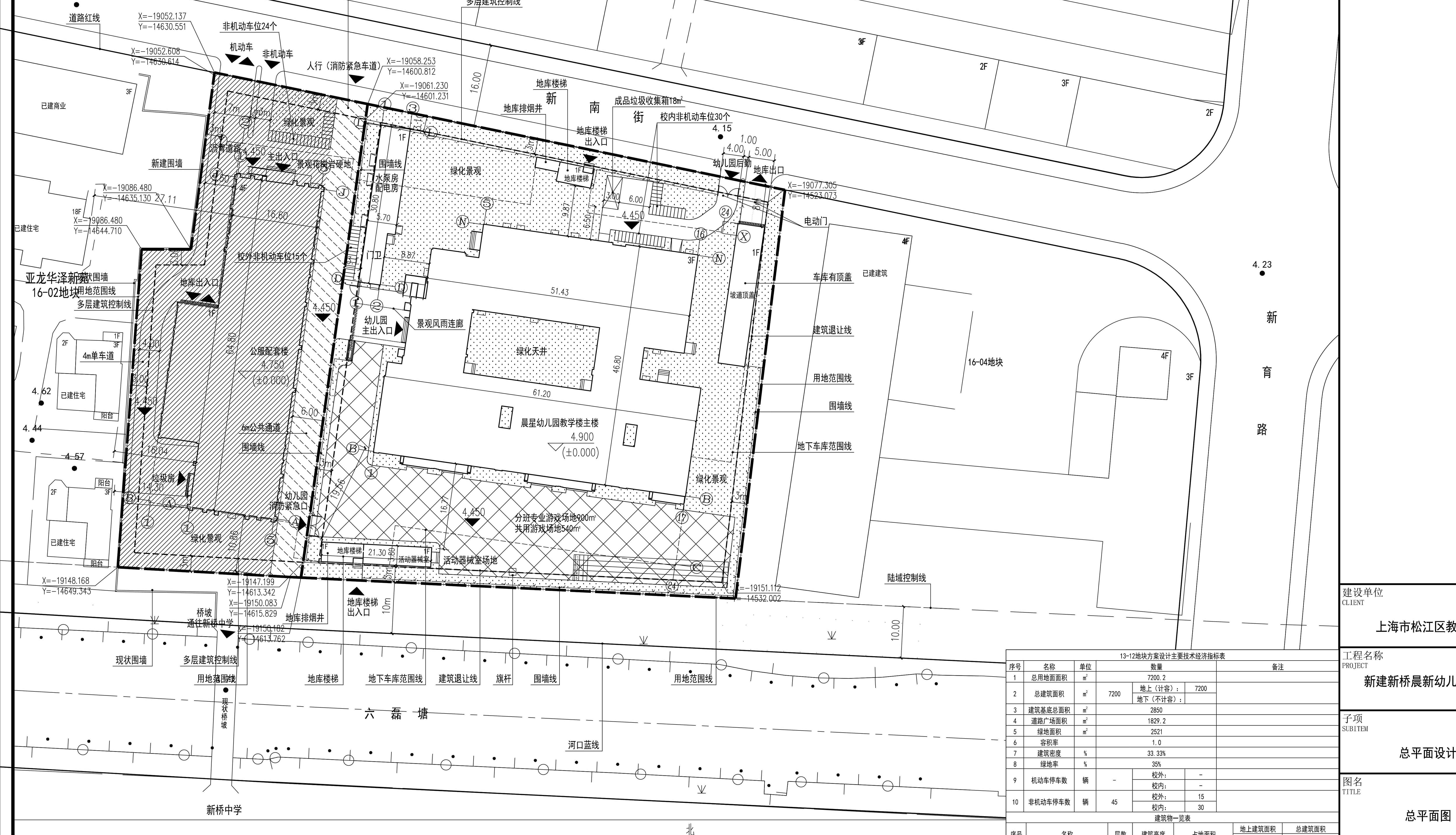
近日,关于"新建新桥晨新幼儿园"项目规划设计方案公示,从公示内容来看,松江区新桥中学对岸新建一所占地7200.2平方米的幼儿园。
下面我们一起来看看公示详情:
项目名称:新建新桥晨新幼儿园

项目现状卫星图(现状为停车场)
建设项目地址:松江新桥镇SJPO-0205单元16-12地块,东至16-04地块,南至六磊塘,西至16-03地块,北至新南街
建设基地范围:同上
建筑基地面积:7200.2平方米
规划用地性质:幼托用地
建筑工程性质:幼儿园
建筑面积:7200平方米
建筑容积率:1.0
绿化率:35%
建筑高度:12.75米
建设内容:教学楼主楼,设备用房,门卫
公示时间:2021年10月12日至2021年10月21日

公示图
另外,从2021 年松江区学前教育阶段小班学区范围公示获悉,目前松江区新桥镇现共有4所公办幼儿园,分别是新桥镇中心幼儿园、晨星幼儿园、白马幼儿园、新闵幼儿园和明华幼儿园。
资料:松江区政府网
编制:大松江房谈
往期精选(点击下方蓝色文字查阅)
松江佘山镇两区块控规调整,涉及面积达49.34公顷
「G60科技走廊建设」松江区车墩镇启动规划调整
好消息!松江又有两个小区加装电梯,快来看看是否与你有关
突发!上海第二批集中供地松江等7幅地块终止出让