今年第一季度,华硕为ROG玩家国度带来一个最新的型号,一个在外观、功能较顶级EXTREME主板都有全面升级,且还有两位“超级英雄”前来辅助的橙色传奇,它就是MAXIMUSⅧ EXTREME/ASSEMBLY。

从这款主板的型号上可以看出,该产品还是隶属于EXTREME系列,但增加的后缀“ASSEMBLY”则意味着它有所不同。最大的改变是该主板采用了完全不同的设计风格。它一改长时间以来ROG玩家国度主板采用的经典红黑配色,选择了橙黑配色的方案,在主板的散热模块、防尘装甲,以及包装盒上均使用了大量橙色元素来点缀,显示出它与MAXIMUS Ⅷ EXTREME主板的不同。
在内部结构上,由于这款主板其实就来自于MAXIMUSⅧ EXTREME,因此它的做工、用料没有多大变化。首先它配备了13相供电系统,由可降低内部损耗、提升电流通过量的粉末化超合金电感,以及在105℃环境温度下具备10000小时工作寿命的日系10K黑金固态电容组成。同时它还采用了英飞凌的OptiMOS MOSFET。这款MOSFET具备内阻低、可承载电流大的特性(最大可达50A),为玩家进行大幅超频创造了条件。此外供电电路还配备两颗PWM芯片,分别对CPU核心供电电路与CPU核芯显卡供电电路进行更为精准的电压调节,提升超频稳定性。

由粉末化超合金电感、日系10K黑金固态电容、OptiMOS MOSFET组成的13相供电系统。

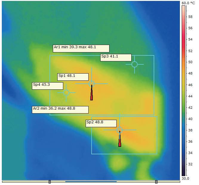
在风冷散热环境,Core i7 6700K以4.2GHz的频率满载运行20分钟Prime95 In-place large FFTs烤机测试时,最高温度仅48.8℃,供电区域平均温度只有45℃左右。
其次这款主板对最新存储技术提供了很好的支持,它配备了U.2SSD接口,可直接连接INTEL 750、OCZZ-Drive 6000等采用U.2板型的高端SSD。同时它还通过板载ASMedia与英特尔的USB 3.1主控,提供4个USB 3.1接口。

主板配备的U.2 SSD接口,可以轻松连接各类高性能消费级与企业级SSD。
影音方面,采用了由EMI屏蔽罩、ESS ES9023P DAC芯片、尼吉康音频电容、RC4580耳放、DE-POP防爆音电路等多种高品质元件构成的SupremeFX 2015信仰音效系统。

由EMI屏蔽罩、ESS ES9023P DAC芯片、尼吉康音频电容、RC4580耳放、DE-POP防爆音电路等多种高品质元件构成的SupremeFX 2015信仰音效系统。
总体来说,这款来自MAXIMUS Ⅷ EXTREME主板的产品在做工、用料上已经非常豪华,但华硕并不满足,还为它请来了两位“超级英雄”——SupremeFX Hi-Fi USB放大器以及PCIe 2.0 x4万兆网卡,其理论最大传输带宽可以达到10Gbps。那么它们能给我们带来怎样的体验呢?
让娱乐更加震撼 SupremeFX Hi-Fi USB放大器
MAXIMUS ⅧEXTREME/ASSEMBLY主板的一大新特色是配备了名为SupremeFX Hi-Fi的USB前置放大器。其内部所有芯片全部板载在一个5.25英寸大小的外置扩展盒里,因此用户在使用前,需将SupremeFX Hi-Fi放大器装入到机箱上方的5.25英寸扩展位中。同时,由于SupremeFX Hi-Fi内置了众多芯片,所以它采用了独立供电与独立数据通信设计。要想让其正常工作,需要为它连接原本用于显卡的12V、6pin辅助供电,然后再通过主板内附送的USB数据线,将放大器与主板上的USB 2.0前置接口连接,从而让放大器不仅可以得到正常的供电,还能与电脑进行数据通信。


SupremeFXHi-Fi放大器内部板载了ES9018K2M DAC、LM4562运放、TPA6120A2等众多专业芯片。
SupremeFX Hi-Fi放大器的内部也有一个精彩的“世界”,其内部的主角是目前在vivo、小米、魅族手机上广泛使用的ESS ES9018K2M DAC音频解码芯片。其信噪比达到127dB,THD+N即总谐波失真加噪音的数值仅-120dB,并支持最高384KHz/32bit采样率和DSD 128母带级的音源*放播**。而为了获得更好的*放播**效果,华硕还为每个声道配备了一颗最大可驱动600Ω负载,仅有0.00003% THD+N的国家半导体公司LM4562高性能音频专用运放。同时,它还专门为耳机配备了一颗德州仪器的TPA6120A2耳放芯片。该芯片具有高保真的特性,失真度仅为0.00014% THD+N,信噪比与动态范围达到120dB。而对耳机来说最为重要的是,TPA6120A2的驱动力很强大,最大输出电流达700mA,可以完美驱动32Ω~600Ω的耳机。此外,这款放大器提供了3.5mm、6.3mm两种耳机接口,以便用户连接各类专业耳机。那么,SupremeFX Hi-Fi究竟能带来怎样的听音感受呢?
我们特别将它与MAXIMUS Ⅷ EXTREME 主板办配备的SupremeFX 2015系统进行了对比体验,在使用SupremeFX Hi-Fi前,首先需要为其安装独立驱动,并启动驱动控制面板,待驱动检测出所插入耳机的阻抗后才能正常使用。

专业的SupremeFX Hi-Fi驱动面板,用户可以选择输出采样率,最大支持384KHz/32bit输出。同时还可以为这款放大器装载ASIO驱动,降低延迟,提升系统对音频信号的处理速度。
考虑到PC用户很少采用高阻抗的专业耳机与PC搭配,因此我们还采用了在PC用户中更为常见、更易推动的低阻抗耳机进行体验。体验中,无论是SupremeFX Hi-Fi还是SupremeFX 2015音频系统,在耳机插入时都能很快地识别出耳机的阻抗:它们均测量出耳机的阻抗值为33Ω,与其规格值32Ω非常接近,同时给予等级完全相同的放大等级——在SupremeFX Hi-Fi中的放大等级为LOW(低),在SupremeFX 2015中为“性能”,均为两款音频系统中的最低放大等级,这正是由于使用了低阻抗耳机缘故。
我们采用了ROCK摇滚、Brit pop英式流行两种普通人较常碰到的音乐风格作品进行了体验,而结果让人吃惊。尽管只使用了一款低阻抗耳机,放大等级完全相同,而且在音量均为55%的设置下,但最终效果却完全不同。
ROCK
《We'll Rock you》
我们选用了由英国FIVE乐队翻唱的摇滚乐《We'll Rock you》。虽然相对于没有运放芯片的普通音频系统来说,SupremeFX2015的效果已有很大改善,如音量更大、重低音效果更明显。但SupremeFX Hi-Fi则带来了更上一层楼的效果:首先歌曲开始的鼓点声可谓动力十足,甚至让人可以感觉到耳机两侧耳罩的震动,而这仅仅是在“低”放大等级、音量设置仅55%的前提下,再向上提升音量,听者的耳朵将难以承受。而在放大效果提升的同时,SupremeFXHi-Fi也呈现出了极高的保真度。而且SupremeFX Hi-Fi还很好地演绎出了翻唱版本清新、通透的特点——既能听到高亢、饱满的“We will Rock you“,也能享受到那干脆、清晰有力的RAP部分。总体来看,这首摇滚乐的磅礴气势得到了展现,仿佛将人带入了一场摇滚盛会。SupremeFX 2015对人声的表现则要稍显沉闷一些,层次感、通透感也没有SupremeFXHi-Fi那么明显,整体感觉较为平淡。
Brit pop
《She's in Fashion》
我们还体验了偏重人声的音乐《She's inFashion》。在这首歌曲的试听中,两个音频系统在音量、低音强度上我们难以察觉出明显差距,但对BrettAnderson这位妖娆的中性风格歌手的表现却略有不同——SupremeFX Hi-Fi再次体现出了它在人声表现上的优势,它能很好地演绎出这位歌手那既性感、颓废,同时又带有点飘逸空灵、非常独特的中性音色,其天鹅绒般丝滑、醇厚的嗓音让人品尝得意犹未尽。而SupremeFX 2015在*放播**这首歌曲时,则感觉在试听过程中似乎不能很好地将伴奏音乐与Brett Anderson人声分离开来,其中的精华好像被其他声音掩盖、压制了一般,得不到充分、完全的展现,整体声音缺乏那股飘逸、妖娆的感觉。
综合以上体验,可以得出结论,凭借其优良的元器件配置,只要使用普通的低阻抗耳机,无论是偏重低音的摇滚、游戏影音,还是偏人声的音乐,相对主板板载音频系统,SupremeFX Hi-Fi就能带来获得明显改善的听音效果,可以给用户提供更好的娱乐体验。当然,如果你能找到拜亚动力DT990这样阻抗达600Ω的耳机,相信SupremeFXHi-Fi内部的TPA6120A2耳放芯片还能带来更多的惊喜。
威力初显 PCIe 2.0 x4万兆网卡
MAXIMUS ⅧEXTREME/ASSEMBLY主板另一大非常夸张的设计则在于提供了基于PCIe 2.0 x4通道,采用独立插卡式设计的万兆网卡。最大传输速度可达到10Gbps,可向下兼容5Gbps、2.5Gbps、1Gbps网络。当然这么高的规格对大多数消费者来说暂时没有什么用,很可能将难以工作在理想的网络环境里,那么与其他板载网卡相比,在进行日常应用时,它是否能表现出特定的优势呢?
鉴于ROG玩家国度系列主板主要还是针对游戏玩家设计,因此我们对比了这款万兆网卡与主板板载的英特尔I219-V千兆网卡在运行网络游戏《坦克世界》时有何不同。为了能进行公平的对比,两款网卡的运行时间都在同一天的上午10点~11点,网络环境设置为常见的家庭4Mbps带宽。首先在单单仅运行《坦克世界》的普通环境下,它们没有明显区别,延迟均在10ms~30ms之间,能非常好地进行游戏。
接下来通过模拟恶劣的网络环境进行了体验——开启迅雷*载下**。首先在万兆网卡这边,网络延迟会经常上升到50ms~60ms之间徘徊,偶尔会串至75ms以上。根据记录,其延迟最高达到过80ms,因此有时会出现卡顿,但卡顿时间较短,不影响正常游戏。英特尔I219-V网卡的网络延迟也明显增加,经常会在50ms以上,并出现比较明显的卡顿,对瞄准精准度会有所影响。原因在于我们发现其在*载下**时网络游戏的最高延迟会增加到100ms以上,游戏中记录的最高延迟达到113ms,自然会对游戏性带来一点影响。

在同一时间段内,板载千兆网卡在开启*载下**的恶劣网络环境下,《坦克世界》中的最高延迟达到113ms,卡顿稍明显。

PCIe2.0×4万兆网卡在相同环境下的最高延迟在80ms,也会出现卡顿,不过卡顿时间很短,不影响正常游戏。

PCIe2.0 x4万兆网卡可搭配GAMEFIREST Ⅳ网络优化软件使用,软件将自动调整各程序的网络优先级,因此开启*载下**后网络游戏的运行流畅度不会受到任何影响。
因此在不依靠任何外部优化程序的情况下,这款万兆网卡在一边游戏一边*载下**时的恶劣网络环境下,基本仍能保持较好的游戏性,不会受到太大的影响。而且值得一提的是,华硕开发的GAMEFIREST Ⅳ网络优化软件也能同该网卡实现完美地无缝连接——开启GAMEFIRESTⅣ后,它可以马上侦测出通过万兆网卡运行的各类程序,它们的流量,并开启网络优先级自动调整功能。因此当我们再次一边开启*载下**、一边运行《坦克世界》时,在GAMEFIREST Ⅳ的帮助下,游戏的延迟虽然也会上升(游戏中记录的最高延迟为68ms),但没有出现过一次卡顿,游戏性与没有开启*载下**时没有任何区别。
总体来看,在游戏类的普通应用中,这款PCIe万兆网卡已表现出了较常见主板板载网卡更高的素质,相信当用户搭建其自己的万兆网络环境后,它还能发挥出更大的威力。
支持DDR4 3600 轻松超频到4.7GHz
对于购买高端主板的玩家来说,最为重要的还是主板自身的性能表现。在默认设置下,MAXIMUS Ⅷ EXTREME/ASSEMBLY对CPU的运行频率进行了优化——不论处理器是在运行多线程任务还是单线程任务时,其频率都保持在睿频的最大频率4.2GHz,这使得它在默认状态下的CPU性能上获得了增益,相当于华硕帮助用户进行了CPU官方超频。同时这款主板对高频内存有很好的支持能力,官方标称规格为最高支持DDR43866。实际体验中, DDR4 3600内存可在MAXIMUSⅧ EXTREME/ASSEMBLY上完全稳定地运行,其内存性能较频率仅仅运行在DDR4 2400的默认状态有了很大提升。如AIDA64的内存写入带宽从35714MB/s增加到53082MB/s,内存延迟则从54.2ns缩短到43ns。

默认设置下,内存频率仅运行在DDR4 2400,内存性能非常一般。

MAXIMUSⅧ EXTREME/ASSEMBLY主板对高频内存有很好的支持能力,打开BIOS中的XMP功能即可一键超频到DDR43600,并带来相当可观的内存性能。
不过这只是惊喜的开始,测试中MAXIMUS Ⅷ EXTREME/ASSEMBLY主板还可以在风冷超频状态下轻松地将Core i76700K超频到4.7GHz并稳定使用,不仅处理器性能可以得到明显的提升,在一些依赖处理器性能的游戏中也能受益匪浅。比如超频后,《神偷4》在全高清分辨率、最高画质下的平均运行帧速从94.4fps提升到了100.1fps。有所遗憾的是,由于这块主板配备了5.25英寸的SupremeFX Hi-Fi USB放大器,因此它就没有再配备OC PANELⅡ超频控制中心,无法提供更加简单、高效的超频方式。对于追求极限超频的玩家来说,还是应该选择MAXIMUS Ⅷ EXTREME。
全面向最高标准看齐的标杆
综合以上介绍、体验,可以看到MAXIMUS Ⅷ EXTREME/ASSEMBLY就是一款全面向最高标准看齐的标杆性产品。虽然要充分发挥出这块主板的最大性能、效果需要用户花重金投入配套设备,但可以看到即便使用相对普通的产品,在一般使用环境下,它也能带来较常见解决方案更好的体验。它存在的最大就是致力于帮助你打造一台在性能、听觉、游戏流畅度上均能获得最佳体验的PC。
MC官方福利体验微信群现已正式上线,群里将不定期发送各种红包,举行各种试用活动,送出各种意想不到的礼品。心动想进群了吗?请加微信号microcomputer2为好友,群主会第一时间带你入群哦!我们期待您的加入!