当代小户型占多数,洗手间面积也有限,装好就会呈现台面高空乱哄哄、发霉生锈、卫生死角难清算等问题。

这巴掌大的处所怎样装才好用? 结构、计划、分区都很紧张! 本日阿尚就带来几个计划计划,帮人人整得明明白白~
(此处已添加小程序,请到*今条头日**客户端查看)
3㎡ 4㎡ 5㎡洗手间怎样装?
同样大的面积,户型变幻无穷,应用人群分歧样,结构起来也有大分歧,上面几种户型计划,请对号入座:
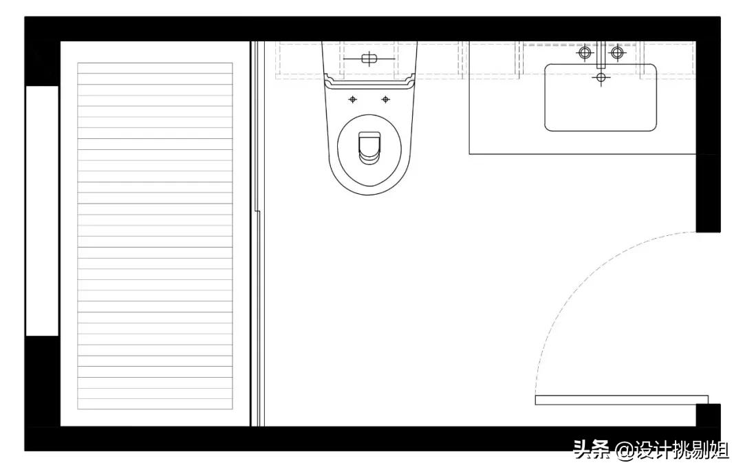
3㎡ (正方户型)

△ 正方形洗手间做 L型结构 ,应用转角做扇形淋浴区、洗漱区、 三角动线正当 ,生涯井井有条~

(效果图)
△ 新中式作风,红色门面配深色原木柜,空间富裕层次感 , 镜面柜门,增大视觉空间,强大的储物空间, 满意百口卫浴 功效 应用 。
(此处已添加小程序,请到*今条头日**客户端查看)

△ 应用转角空间安顿盥洗区,借用死角空间,增长台面面积。薄边墙上的柜体,空间更显轻巧。

△ 马桶上方增设卫浴柜, 定制组合转角柜, 进一步扩展收纳空间。
3㎡ (长方户型)

△ L型结构,能够容下洗衣机的多功效浴室,洗漱洗衣淋浴,有用干湿分别。

△ 全体的米红色基调,空间透亮有作风,马桶上方定制卫浴柜,扩展全体收纳空间。

△ 凋谢格吊柜 弥补收纳,下方 洗衣机组合柜 ,石英石防水台面, 高下台面 防止洗衣机受潮。
4㎡ (长方户型) 年青化 计划

△ U型结构,隔绝长方形淋浴区更大;

△ 靠墙定制 异形柜 ,加强空间延长感、为马桶预留地位,空间应用更机动。

△ 浅色彩搭配天然材质,共性花砖、玄色花洒及深台面装点,洗手间 颜值刹时晋升, 是得当年青人的卫浴计划。

(实拍图)
△ 马桶上方计划 凋谢格薄柜 ,起家也不会磕见面。
4㎡ (长方户型)老年化计划

△ 一字型结构,简化动线,是 得当家有老人 的卫浴计划。

△ 适老化定制组合 ,深色原木卫浴柜经典耐看。细节计划重视对老年人在湿润情况中的掩护,便利其收支洗手间。

△ 淋浴区的 上翻 折叠椅 , 马桶边的扶手 (淋浴或如厕起家更便利)都是适用于老年人的人性化计划,柜子 侧边的凋谢格 便利搁置手机等杂物。
5㎡ (长方形户型)

△ 5㎡有了更大的施展空间,一字型动线,洗漱区 双盆计划 ,一家四口,夙兴也不消抢洗漱台了!

△ 灰色面板 计划,时髦前卫,全部空间彰气质。卫浴柜和浴缸组合,延长地柜台面至窗台,增长台面收纳。
(此处已添加小程序,请到*今条头日**客户端查看)
(点击即可观看我的最新视频)

△ 双盆洗手柜洗漱不拥堵, 石英石台面 防水性佳,吊柜凋谢格计划,让空间全体不压制。

小到洗手间,大到全屋,好计划老是 适用而雅观 的,计划师会依据户型和应用人群的动身,打造最相符你家需要的计划。
(此处已添加小程序,请到*今条头日**客户端查看)
(点击即可观看我的最新视频)