
近日,金茂又一个住宅项目亮相了,该项目就是位于通州的台湖金茂悦。帮主拿到了项目官宣版的资料,第一时间和大家分享。综合项目现有信息及周边配套来看,台湖金茂悦对于关注通州市场的朋友是一个不错的选择。
原因之一在于,台湖金茂悦是一个临铁限竞房,挨着地铁17号线亦庄站前区南站。沿着地铁17号线往北看,是未来科学城的未来金茂府以及未来金茂悦。未来金茂府是北京今年的热销楼盘,而未来金茂悦虽然还未开盘,但从现有热度来看,是需要抢的节奏。而沿着地铁17号线往南,就是台湖金茂悦,该项目有着不输于前者的品质,而且到CBD的距离也不远,具备着“热销”楼盘应有的素质。
原因之二在于,台湖近年规划向好,配套也开始慢慢起步了,无论是“两站一街”的规划,还是各项基础设施的建设,都使得台湖的居住舒适度有了很大的提高,这个下面帮主会细聊。
推荐这个项目还有一个很重要的原因,就是金茂的品质加持。以产品力见长的金茂,入驻副中心的第一个产品就是台湖金茂悦,而且从目前项目公布的资料看,台湖金茂悦的建设标准很高,各方面都很值得期待。
Part.1
先说下台湖金茂悦最大的利好,地铁17号线。
众所周知,台湖一直以来的硬伤是轨道交通,这是制约台湖区域发展的最大因素,而建设中的地铁17号线正好弥补了这点不足。地铁17号线是一个网红线路,线路全长50公里,途径了北京几个最重要的经济发展高地,从未来科学城、望京、CBD等,南段直达亦庄新城,中途可实现与15号线、10号线、6号线、3号线、12号线的换乘,非常便捷。

该线路在台湖板块设了三站,分别是次渠北、次渠、亦庄站前区南站。以亦庄站前区南站为例,从该站到达CBD的永安里为8站地,大概20分钟;距离望京西站13站地,大概半个小时。该网红线路预计2021年开通,一旦开通,台湖的交通会再上一个新的台阶。而台湖金茂悦距离地铁17号线亦庄站前区南站仅几百米。
Part.2
看完了最大的利好,再看区域。
前段时间,帮主曾去台湖踩盘,发现台湖的居住氛围已经越来越浓了。周边基本的配套如超市、药房、餐饮等已经配齐,一路上,还看到了已经开业的肯德基、老城一锅、永辉超市、苏宁易购等商业。另外,就在台湖金茂悦项目附近,有一条万科自持的商业街,目前也处于营业状态。
除了现有配套逐渐成熟,台湖规划也值得期待。“两站一街”规划总用地面积1677公顷,除了亦庄火车站以及地铁亦庄线之外,区域内还规划有商业综合体、核心商务区、中学、小学一级公园等。其中已经明确的比较重要的配套有三个:
- 地铁17号线。前面已经详细介绍,这里就不再细聊。
- 景山学校通州分校、建华实验学校入驻,极大提升了区域教育水平。景山学校总建筑面积96836平方米,投资约7.5亿,设108个教学班,学生总数4410人,采取“五、四、三”学制,即小学五年、初中四年、高中三年,为小学初中“九年一贯制”学校。项目计划2020年2月建成投用。台湖金茂悦距离景山学校校址800米。
- 建华实验学校是一所全日制民办学校,该校分为两个地块,地块一建面约2.5万㎡,设置18个小学班;地块二建面8.8万㎡,十二年一贯制,设置42个小学班,21个初中班,18个高中班,预计今年9月开学。

- 环球影城主题公园,这是亚洲最大的主题公园,整个公园占地400公顷,总投资1000亿元,预计2021年初建成开园,项目距离环球影城大概6公里。
再加之,环渤海高端总部基地、光机电一体化产业基地、星湖科技园三大产业支撑,台湖未来的发展潜力不容小觑。
Part.3
作为金茂进驻通州的第一个住宅产品,台湖金茂悦一经发声就吸引了购房者的关注。买房大家帮的置业群里很多朋友都在热议该项目,希望能够解更多了项目信息。从聊天内容看,最受关注的有三点:户型、价格、是否精装。别着急,咱们一个个慢慢聊。
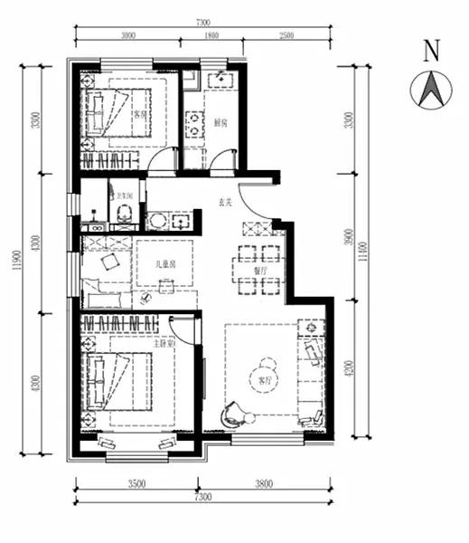
1、挑最受关注的户型说起。台湖金茂悦总建面为58108㎡,规划有8栋住宅楼,该项目共计三种户型,分别为80㎡两居共计72套;89㎡三居428套;130㎡四居104套。
- 80㎡两居全部为中间户,南向为客厅及主卧,整体面宽7.3米。作为一个80平米两居,这个尺度并不算小。另外,值得一赞的是,该户型为全明空间。
- 89㎡三居是该项目的主力户型,分为中间户及边户,区别在于中间户北向为两个卧室,而边户北向为一个卧室一个厨房。该户型也是全明格局,卫生间干湿分离,设计比较人性化。
- 130㎡四居户型比较方正,全明格局,三面朝南,面宽超过了11米。亮点是厨房一侧增加了一个独立的家政间,便于日常家居生活。

89㎡

130㎡
2、价格方面,该项目是限竞房,限定均价为51585元/㎡,最高限价为54164元/㎡。以项目80-130㎡的户型区间来算,大概会在410-700万之间。当然,最终价格还得以项目方给出的为准。从均价来看,台湖金茂悦的性价比还是很高的。
新房方面,台湖目前在售项目只有2017年入市的台湖银河湾,还是尾盘在售,均价7万/㎡,比金茂悦每平米贵了近2万块钱。
台湖二手房也很少,稍新一些的项目是12年建成的润枫领尚,链家挂牌价是44839元/㎡、阳光城·京兆府(二手房均价约55000元/㎡)、首开万科城市之光(二手房均价51264元/㎡)及泰禾拾景园(二手房均价约56904元/㎡)等,其他都是一些房龄较大的老小区。
3、帮主觉得对于购房者而言比较实惠的一点是,台湖金茂悦是精装交付。金茂的精装科技想必不用帮主赘言,新风系统、各种智能家居以及物业都是出了名的叫好又叫座。而从项目方的官宣版资料来看,台湖金茂悦在金茂传统的绿金科技基础上,做了迭代升级。
- 智能管家。台湖金茂悦是北京首个采用“智能管家”的住宅项目,通过一套中控系统,智能操控新风系统和中央空调系统,通过大数据环境信息采集和家庭生活行为习惯,智能操控新风和空调的运行,时刻保持户内空气的质量和温度的适宜,形成一套独有舒温舒氧的智慧系统。
- 品牌家具。从厨具到浴具,全部都是一线品牌,既实用又美观。
- 极致的收纳。台湖金茂悦从入户玄关到厨房、卫生间等,都有专业性收纳空间。
以上就是关于台湖金茂悦项目的基本信息,感兴趣的朋友可以多关注一下。另外,项目会在8月16日本周五举行产品发布会,届时会有更为详细的产品信息官宣。