人工挖孔桩 施工 方法
一、施工技术要求
1、开挖后的桩体断面尺寸不得小于桩身设计断面尺寸加护壁厚度,且桩体孔型符合设计要求。
2、桩体间距≤2.5米采用隔桩跳挖,分成两批次顺序施工,及时做好护壁和锁口,锁口为C30钢筋混凝土,锁口高出地面0.2m。桩体护壁必须严格按照设计图纸要求进行施工,护壁厚度及护壁钢筋数量、布置必须符合设计要求,护壁钢筋搭接必须符合规范要求;桩身混凝土必须连续浇筑,不得形成水平施工缝;
3、水泥、钢筋等主要原材料的各项指标必须满足设计规范要求,进场复试合格后才可用于本工程;严禁使用不合格材料;
4、桩身混凝土浇注、钢筋连接必须满足设计规范要求,钢筋混凝土强度必须达到设计强度;
5、人工挖孔桩总长及嵌入基岩深度应满足设计长度,嵌固长度为从强、中风化分界线以下3m至桩底的距离,桩底持力层应当符合设计要求,若不符合设计要求需请设计单位、地勘、监理单位等责任主体现场会商处理。
二、人工挖孔桩施工的工艺流程

三、施工方法
1、施工准备
项目部技术人员对现场情况进行实地踏勘,认真研究施工图设计的各项技术指标与设计意图,并结合挖孔桩施工工艺,合理进行施工组织和布置。
在桩孔开挖前需对边坡及台地的地表裂缝进行封闭处理,防止地表水下渗而影响孔壁稳固;然后对桩位区域的场地进行平整清理,平整高程以相应的桩顶标高为准,同时沿场内施工道路及抗滑桩的走向,靠近道路一侧平整出施工场地。
2、测量放样
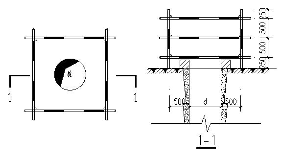
按照设计的桩位进行施工放样。依据设计坐标,用全站仪放出第一批桩孔的开挖线,定出桩位、设十字护桩,并引至挖孔范围以外,以备施工中校核桩位。
3、桩孔开挖
1.成孔施工方法
(1).根据施工部署,除相邻太近的桩跳挖外所有孔桩全面开挖,挖桩在粘土、强风化岩时采用铁锹、锄头施工,进入强风化岩时,需用风镐打凿施工。根据地质勘探报告,在有孤石的桩位,应用风镐打凿,穿过孤石后继续开挖至真正的基岩。
(2).桩孔出土使用3.7KW移动式提升机配0.1m3吊桶,每套设备配备1-2个工人。土石方出井口后装在灰盆里,再采用塔吊把渣土统一吊运至指定空地,在基础地梁施工完毕后,又重新采用塔吊吊运回现场回填。
(3).按一般情况,第一节挖深约1m,达到深度后用“+”字中吊准护壁模板,确保护壁厚度均匀及孔桩轴线对中,并按设计要求安好护壁钢筋,经验收合格后即浇捣护壁混凝土,往下施工时以每节作为一个施工循环,一般土层中每节高度为1m,如遇流砂区段每节高度小于500mm或木板支撑,必要时下钢护筒护壁,特殊地质下挖速度视护壁的安全情况而定。护壁模板采用定制成品钢模板,模板由2~4块组成。
(4).第一节护壁应高出地面200mm,每个桩孔口,都要设置二道水平
钢管防护栏,高1.20米,每500MM距离设一道小立杆防护,要求牢固可靠,安全有效,立杆支撑在砼垫层上。

(5).护壁应层层校核孔径,每二节护壁须校核桩中心位置及垂直层一次,发现歪斜及时修正。
(6).孔桩每下挖0.5m,须对孔下未挖的土质用Φ22钢钎作一次钎插检查,确认无异常情况后方可继续下挖。
(7).当开挖到持力层时,由于设计桩持力层为中风化泥岩,桩头入岩层的深度应满足设计要求。
2、水钻施工
桩孔到达中风化层时,人工及风镐凿打出来的岩石成小块粉尘状,施工进度相当缓慢,适时插入水钻施工。
取芯机: HZ15-A型,钻孔直径150,钻孔深500~600,功率为2.5KW。
水泵:Q(D)X1.5-25-0.55J,流量1.5m3/h,扬程25米,功率0.5KW。
卷扬机:Y132S-4,钢丝绳额定拉力10KN,功率5.5KW。
施工顺序:
(1)测量放样后钻机就位,固定钻机位置,保证套筒向孔桩侧壁外倾一定角度,这样在下循环才可以保证钻机就位后套筒起钻点能置于设计孔桩边线面不致造成缩孔,此措施将使桩孔呈节段倒合体,保证成孔截面尺寸。 扩底倾斜角度计算:水钻机高1500,钻芯直径为150;电机或支架超出钻芯前端80,正常钻孔时钻机倾斜角度即为(80+150/2)/1500=0.103,倾斜角度≥tan(0.103)-1=5.88,才能保证不缩孔。向外扩底时,钻机倾斜角度≥10度就不易固定钻机位置,tan10=0.176,向外扩底宽度0.176×1500-(80+150)/2=109mm,即每500可向外扩100宽。
(2)柱体岩芯与护壁内壁相切,将岩芯取完后桩基外围便形成一个环形临空面;再以二锤捶击钢楔分裂中部岩体,以水平冲击力使岩石沿锤面拉裂,底部发生水平剪切破裂,以电动卷扬机出渣。
(3)水钻施工安全操作要点: 采用提长架,架体及基座牢固稳定,孔口周边不能有任何堆土及杂物;电力线路、接头完好;钻机操作人员必须配戴绝缘靴、绝缘手套;卷扬机及钢丝绳性能完成,起吊破碎岩石时操作人员必须先出桩井;上下桩井必须采用钢爬梯(做法见图)并系好安全带(绳)。扩底桩应按扩底部位的尺寸、形状自上而下削土扩充成设计图纸的要求。复查每根桩扩大头的尺寸,确保其尺寸符合设计要求。终孔时,必须清理好护壁污泥和桩底的残渣、杂物等,清除积水,经检验同意验收,并办理好签证手续,应马上组织浇灌桩芯砼,以免泡水时间过长,使土层软化。
3.护壁的钢筋、模板
护壁上下节搭接100mm,护壁纵筋搭接300mm,竖筋为φ8@200(用于桩径d≤1000)或φ8@150(用于桩径d>1000或椭圆桩)均匀布置,环筋为φ8@200(用于桩径d≤1000)或φ8@150(用于桩径d>1000或椭圆桩),闭合处单面焊10d,双面焊5d,搭接300MM。护壁模板由2~4块钢模拼装而成,板间用U形卡固定,上下设两道钢圈顶紧,模板应在混凝土强度达到一定强度时方可拆除。每段开挖完成经检查无误后,绑扎护壁钢筋,支模施工护壁混凝土。护壁施工应严格按设计图纸要求施工,控制好其厚度、配筋、几何尺寸及支模的牢固。


4.护壁混凝土浇捣
护壁应当天成孔当天捣完混凝土。护壁C30混凝土采用现场搅拌,护壁混凝土选用10mm~30mm碎石,中砂及32.5级复合硅酸盐水泥,坍落度宜为4~6cm。现场搅拌时,应严格按检测部门提供的配合比下料。浇捣时,应认真细致地做好混凝土振捣工作,用插钎振插密实,严防蜂窝、孔洞出现。配筋的规格、型号及搭接长度应严格按设计要求施工。护壁混凝土应浇捣密实,不能有蜂窝、麻面、起壳、露筋等现象,并按规定留取试件。
5.桩成孔后应清底,清除浮渣及积水,验收合格后安装钢筋笼。桩孔质量应满足如下要求

6.桩芯混凝土浇捣
桩芯混凝土采用C30、C40泵送商品混凝土,采用臂架泵进行砼输送。砼根据桩内水量的多少,确定浇筑方式,当桩内有地下水时,砼采取水下浇筑方式,若桩内无地下水时,砼采用串通施工方式。
1、水下浇筑施工方案
导管安装:钢制导管采用内壁光滑、圆顺、内径一致,接口严密。导管直径应与桩径及混凝土浇筑速度相适应,可以为20~30cm,壁厚为4mm,导管管节长度,中间节宜为2m等长,底节可为4m,漏斗采用1m长导管。导管使用前,应先进行试拼和试压。选择平整的场地铺设垫木,在垫木上钉出一条直线使其达到水平要求。试拼后的按自上而下的顺序编号和标示尺度。导管组装后轴线偏差,不宜超过人工挖孔深度的0.5%并不宜大于10cm,连接时连接螺栓的螺帽宜在上,试压压力不低于孔底水压力的1.5倍。
导管拼装好后,利用汽车式吊车吊放,在浇筑混凝土前,应进行升降试验。导管位置居于孔中间,轴线顺直,稳步沉放,防止挂钢筋骨架和碰撞孔壁。导管底口距孔底为0.3~0.4m,利用灌注漏斗采用导管提升灌注桩身水下混凝土。
导管入孔后技术人员做好测量标记并测量孔深,在浇筑水下砼前,检查人工挖空桩和钢筋笼情况的“检验批质量验收记录”,及“砼浇灌许可证”。在浇筑水下砼过程中,安排专人填写“水下砼浇筑记录”记录,记录有关砼灌注情况、灌注时间,砼面的深度、导管埋深、导管拆除以及发生的异常情况。
灌注首批桩前,应由试验人员对砼进行现场试验,合格后方可进行灌注。水下砼塌落度宜为180mm~210mm。初灌漏斗底口必须设置严密,可靠的隔水装置。首批砼量必须保证导管埋深,导管埋深不得小于1.0m并不宜大于3m,当砼面升至到钢筋骨架下端时,为了防止钢筋骨架被砼顶托上浮,可以采取以下措施:尽量虽短砼灌注时间,防止顶层砼进入钢筋骨架时砼流动性过小。当砼面接近和初入钢筋骨架时(1m左右),应保持较深埋管,并徐徐灌入,以减少砼从导管底口出来后向上的冲击力。当孔内砼面进入钢筋骨架底口4m以上时,适当提高导管,减少导管埋置深度(不得小于1m),以增加骨架在导管底口以下的埋置深度,从而增加砼对钢筋骨架的握裹力。导管提升高于骨架底部2m以上时,即可恢复灌注速度。水下砼必须保持连续,中途不得停顿,砼在灌注过程中,现场技术人员要计算导管埋入砼的深度,保持导管埋深在1~3m范围。拔管时要慢,防止拔得过快导致断桩情况,每根桩浇筑时间不宜太长,宜控制8小时内浇筑完毕。并尽量缩短拆除导管时间。当砼浇筑面接近设计高程时,应用取样盒等容器直接取样确定砼顶面的位置。保证砼顶面浇筑到桩顶设计高程以上1m,封桩完成。
浇筑水下砼过程中,当孔内要溢出泥浆时应通过泥浆处理器处理后回收,以备再次配置使用。
2、串筒法砼浇筑
当采用串筒法浇筑砼时,筒下口距浇注面不得大于2m,浇捣前孔内积水应抽干,并检查孔底是否还存在沉碴,经质检组确认合格后方能开始浇混凝土,桩芯混凝土应连续灌注,不留施工缝,万一中途停工超过混凝土初凝时间,应先凿毛清除浮浆后,才能继续浇注,浇注过程应分层振捣,混凝土采用Ф50插入式高频振动棒振捣,井内混凝土振捣选派有经验的工人进行,混凝土应连续下料,连续振捣,振点应均匀,振动棒应快插慢拔,严防漏振和超振,每层约500~700mm,浇注高度为设计桩顶标高高出150~200mm,做为凿除桩芯混凝土浮浆及桩锚入承台部分。
四、钢筋笼 安装
1.钢筋进场和检验验收
钢筋考虑施工现场制作,由专业工长将材料规格、数量上报项目材料组。钢筋运至施工现场采用汽车式吊车吊放在钢筋材料堆场后,要严格分等级、牌号、直径、长度挂牌堆放,所有进场的钢筋都必须有出厂证明书和检验报告,每捆(盘)钢筋必须有标牌,进场时按炉罐及直径验收,验收的内容包括查对标牌,外观检查,并在监理公司监理工程师的监督下进行取样送检,经检验合格后方可使用,经检验合格的钢筋应立标识,钢筋设专人管理,建立严格的验收、保管与领取的管理制度。
2.钢筋的加工制作
所有钢筋的半成品加工均在现场统一进行,制作时先按料单放样,试制合格后才能进行生产,为确保加工的几何尺寸准确一致,下料人员在无特别情况下不得更换,所加工的半成品,应按规格、数量分类堆放,加工场设专人对加工完毕的半成品挂牌登记,统一发放,在下料前应对照料单合理编排,科学使用,严禁长材短用,钢筋半成品的质量检验标准应符合设计和施工规范要求。
3.钢筋调直
进场的盘圆钢筋需进行调直后方可进行配料,设备为切断式调直机。调直机应按钢筋的直径,选用适当的调直块及传动速度。调直块的孔径应比钢筋大2~5mm,传动速度应根据直径选用,直径大的宜选用慢速,经调合格,方可送料。
(1).调直速度不宜过快,一般可通过调整滑轮组进行控制。
(2).调直后的钢筋应放置一段时间2~3天后使用。
4.钢筋切断
将同规格钢筋根据不同长度长短搭配,统筹排料,先长后短,在切断过程中如发现有劈裂、缩头或严重的弯头者必须切除,如发现钢筋的硬度与该钢种有较大出入时,要及时向有关人员反映,查明情况,钢筋的切口不得有马蹄形或起弯等现象,长度应力求准确。
5.钢筋的连接方式
本工程桩基钢筋笼纵筋为φ12-16,加劲箍为φ14,螺旋箍筋为φ8,纵筋采用绑扎搭接,箍筋(加劲箍)采用双面搭接焊接头。纵筋接头应错开,35d,任意截面的钢筋接头应小于该截面纵筋总量的50%。
6.钢筋笼的制作和安装
(1).钢筋制作分二次进行,护壁钢筋在孔桩开挖期间随用随加工,直到桩孔护壁完成。钢筋笼箍筋、加劲筋及短主筋可事先制作,纵向长主筋待终孔或扩大头完成后开始制作。本工程钢筋制作均在现场进行,孔内安装钢筋应提前送检,统筹下料,按图施工。
(2).箍筋制作采用φ8@100-200螺旋箍筋,螺旋箍筋在主筋和加劲筋固定后在绑扎。
(3).加劲箍采用φ14@2000钢筋,直径按桩径-60,再减去纵向筋直径后确定。接头采用双面焊接5d。
(4).纵向主筋采用绑扎搭接,接头错开35d,井外作业。
(5).钢筋笼安装在终孔验收合格后进行。
7、钢筋笼采用25吨汽车式吊车跟班作业。钢筋笼安装完毕后,及时组织有关部门检查验收,进行隐蔽。防雷接地的钢筋 用红油漆作标志,所有桩基均按检测单位要求预埋检测钢管。
8、钢筋笼制作允许偏差见下表。

五、流砂及降水处理
(一)、流沙段处理方案
从该项目的地勘报告得知,本项目1#、2#、9#工程所处位置的地表下2m至12m区间存在流砂层或砂夹泥的不良地质情况。在流砂和涌水的地层开挖人工挖孔桩时极易造成塌孔,再加之孔内抽水,会导致水流砂涌,使井下孔壁造成坍塌,不但给挖孔桩施工带来难度,而且会危及挖孔桩工程质量和施工安全。因此,降水和堵砂将是施工中最突出的两大问题,在没有做好降水和堵砂措施时,应停止施工。
挖孔桩孔壁塌孔最重要的是减小对砂体的扰动,关键是要做好两项工作:一是正确的护壁方法,二是“快”字。
根据地勘报告粉质粘土和砂土约10m以上,卵石土约1m,填土为主,人工填土结构松散,均匀性差,透水性较强,卵石土均匀性较好,但透水性较强,场地内基坑坑底的标高低于场地内的常年水位,桩基础施工易发生塌孔现象。为此特针对该地质情况编制以下施工方法:(木方支护+钢筋混凝土护壁法)
1、充分地做好施工准备和应急准备工作。
2、用全站仪测设孔桩轴线的桩位砌筑240mm厚200高砖井圈,并作出明显标志及固定的复测标志,井圈直径为孔径+620mm。
3、在其施工区域上流区段24小时连续进行降水排水,让孔桩场地的地下水位形成一个整体下降的“水位漏斗”。
4、根据地勘报告确定地下水流向和流砂厚度,采用间隔交替循环施工,总的施工原则是按先易后难依次进行。
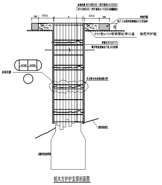
5、沿砖砌井圈内侧预留150mm再开挖首节土方,随开挖深度在护壁外侧支设木方支护,护壁外侧木方支护采用密排100*20mm木方(木方长度控制在1.2-1.3m为宜),内侧设φ16@500钢筋加劲内箍,加劲内箍直径为桩孔径+300mm,加劲内箍搭接采用单面搭接焊。每节开挖土方或流砂总深度控制在1m以内为宜,每节开挖至1m后采用锤击木方顶部将木方底部陷入下层土方或流砂层200-300mm。绑扎首节护壁钢筋支设护壁模板并浇筑首节护壁混凝土(每节护壁高度控制在1m以内)。开挖第二节护壁土方,随开挖深度在护壁外侧支设第二节木方支护,绑扎第二节护壁钢筋支设模板浇筑混凝土,循环施工直至穿越流砂层。做法可参见附图所示。


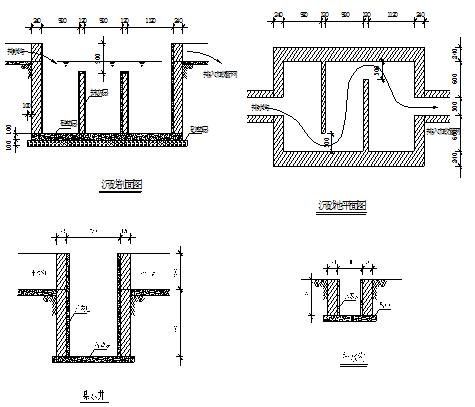
(二) 降水、排水及沉淀井施工措施
1、排水
根据工程地质情况,成孔整个过程都必须排水降水,应组织完整有效的排水系统,桩孔内水的排放采用两级排水系统,将孔桩内水先抽排至地面排水系统,经处理后排入市政管网。施工区域地面排水系统为沿场地四周布置的排水沟和集水井,除施工区域处,生活区域也要设排水沟,以排水雨水和生活污水。
2、降水
本工程采用井点降水,施工进程安排专人对周边的降水井进行降水,使地下水位保持在施工土层以下1.0M,保证下井作业时孔底岩土疏干,成孔安全、护壁顺利进行。在孔桩开挖过程中桩井内渗水可利用桩孔自身降水,方法是:
(1)、少量渗水可在桩孔内挖小集水坑,随挖土随用吊桶吊出。
(2)、渗水量稍大可在桩孔内挖一较深集水井,用小型潜水泵抽出,随土加深集水井。
(3)、渗水量较大时,可在每一区域内选一桩超前开挖,作为周围桩孔的降水井。
3、降水井施工质量及技术要求
(1)、严格按有关规范及设计图进行施工。钻孔安装要调正水平,应随钻孔延伸逐步加长粗径钻具,以保持钻孔垂直,使钢花管顺下到预定深度。
(2)、对地层情况将花管准确下置在富水井段,应下入井底8-12M,下管时不得左右旋轩式上下串动。
(3)、井管外围填入砾料为0.5cm石米,应均匀下入,避免“架桥现象”。
(4)、洗井要充分及时,一般为每口井2—3个台班。
(5)、下水泵时,所有泵管连接应拧紧,下置井深应预留井底泥砂段。
(6)、水泵下好后,应包扎好井口,以防异物掉进孔内,保证每口井正常抽水,并作好抽水记录。
4、降水井施工安全措施
严守操作规程,在岗人员要戴安全帽,起落钻具下不得站人,下入井管时使用自由钳手不能放在底部,用电应由专人负责安装,自动箱应放距地面1.2m以上,一定要接地线,电缆接头应用防水胶布包扎。
5、排水沟、集水井和沉淀池的做法,如简图所示。

六、成孔验收的处理及孔桩钢筋笼的支撑方法
桩孔挖至孔底设计标高或持力层时,应通知甲方会同勘察、设计、监理及有关质检人员共同鉴定,认为符合要求后迅速用清理孔底残碴,同时作为原始记录,留取岩样作为地质资料保存。
终孔完成后,应请有关单位对桩中心位置、入岩深度、尺寸进行验收,必须对井底拍照留实样,并在井底取岩样。经有关部门同意后,迅速清除护壁污泥,孔底残碴,浮土杂物和积水,随即浇灌封底混凝土。封底混凝土最小高度为200~300mm。

七、桩身施工常见问题的处理
1 塌孔
原因:
1.地下水渗流比较严重
2.混凝土护壁养护期内,孔底积水,抽水后,孔壁周围土层内产生较大水压差,从而易于使孔壁土体失稳
3.土层变化部位挖孔深度大于土体稳定极限高度
4.孔底偏位或超挖,孔壁原状土体结构受到扰动、破坏或松软土层挖孔,未及时支护
预防措施及处理方法:
实行井点降水降水,减少孔底积水,周围桩土体粘聚力增强,并保持稳定;尽可能避免桩孔内产生较大水压差;挖孔深度控制不大于稳定极限高度,并防止偏位或超挖;在松软土层挖孔,及时进行支护,对塌方严重孔壁,用砂、石子填塞,并在护壁的相应部位设泄水孔,用以排除孔洞内积水
2 井涌(流泥)
原因:
遇残积土、粉土、特别是均匀的粉细砂土层,当地下水位差很大时,使土颗粒悬浮在水中成流态泥土从井底上涌
预防措施及处理方法:
遇有局部或厚度大于1.5m的流动性淤泥和可能出现涌土、涌砂时,可采取将每节护壁高度减小到300~500mm并随挖随验,随浇筑护壁混凝土,或采用钢护筒作护壁,或采用有效的降水措施以减轻动水压力
3 护壁水平裂缝
原因:
1.护壁过厚,其自重大于土体的极限摩阻力,因而导致下滑,引起裂缝
2.过度抽水后,在桩孔周围造成地下水位大幅度下降,在护壁外产生负摩擦力
3.由于塌方使护壁失去部分支撑的土体下滑,使护壁某一部分受拉而产生环向水平裂缝,同时由于下滑不均匀和护壁四周压力不均,造成较大的弯矩和剪力作用,而导致垂直和斜向裂缝
预防措施及处理方法:
护壁厚度不宜太大,尽量减轻自重,在护壁内适当配φ10@200mm竖向钢筋,上下节竖钢筋要连接牢靠,以减少环向拉力;桩孔口的护壁导槽要有良好的土体支撑,以保证其强度和稳固;裂缝一般可不处理,但要加强施工监视、观测,发现问题,及时处理;如出现竖向裂缝应停止作业,加强监测,并及时通知监理、设计和业主
4 截面大小不一或扭曲
原因:
1.挖孔时未按照各边的中线控制护壁模板尺寸,造成桩径偏差。
2.土质松软或遇粉细砂层难以控制半径
3.模板安装不牢固,造成跑模。
预防措施及处理方法
挖孔时应按每节量测各边的位置,控制好孔壁的垂直度;加固好模板,确保模板的稳固性。
八、检查验收
1、质量检验、试验
项目部设置标准养护室,设置一名专职试验员在施工过程中对现场钢筋、水泥、砂石等原材料按进场批次进行物理、力学性能试验,原材试验合格后方可使用。钢筋检测频率为每批钢筋不超过60T做一次复检;螺栓套筒链接200个接头为l批;对砼施工中的混凝土试块进行抗压强度试验,每l00m3砼取l组试件,不足l00m3亦制取1组试件。桩身砼浇筑完成后委托有检测资质的单位对桩身的完整性及砼强度进行检测。
2、质量检验标准
1)主控项目
A钢筋笼主筋间距用钢尺量允许偏差为:±10mm
B钢筋笼长度用钢尺量允许偏差为:±100mm
C人工挖孔桩(混凝土护壁)桩位允许偏差为:50mm
D人工挖孔桩(混凝土护壁)孔深允许偏差为:+300mm
E桩体质量检查必须符合基桩检测技术规范的规定
F混凝土强度必须符合设计要求和施工规范的规定
G桩体承载力必须符合基桩检测技术规范的规定
2)一般项目
A钢筋笼钢筋材质检验必须符合设计要求
B钢筋笼箍筋间距用钢尺量允许偏差为:±20mm
C钢筋笼直径用钢尺量允许偏差为:±10mm
D人工挖孔桩(混凝土护壁)垂直度允许偏差为:<0.5%桩长
E人工挖孔桩(混凝土护壁)桩径允许偏差为:+50mm
F人工挖孔桩(混凝土护壁)孔底沉渣厚度允许偏差为:≤50mm
G混凝土坍落度(干施工)允许值为:70-100mm
H钢筋笼安装深度用钢尺量允许偏差为:±100mm
I混凝土充盈系数检查每根桩的实际灌注量应大于1
J桩顶标高用水准仪检查允许偏差为:+30、-50mm
3、桩底质量检验
A桩底质量检验主要由工程地质勘察人员完成。
B复验孔底持力层土(岩)性,确定进入强风化层入岩深度。
4、安全检验验收
(1)、对进场的安全劳保用品及安全使用材料必须检查其合格证及质量保证资料。是否满足施工安全需要。
(2)、检查钢管防护架搭设是否牢固,围挡是否可靠
(3)、检测有关机械设备是否满足施工需要,其机械性能是否安全可靠
(4)、对施工现场电气设备全数检查验收,是否灵敏可靠。
(5)经建设单位及监理单位对安全所属材料及机械、电气设备检查验收合格后,方可使用。