


门店视频欣赏
亚细亚瓷砖上海·汶水路店
通过以瓷砖为载体
将自然与艺术完美融合空间设计中
营造的不仅是一种时尚空间理念
更是一种趋向未来的生活态度!

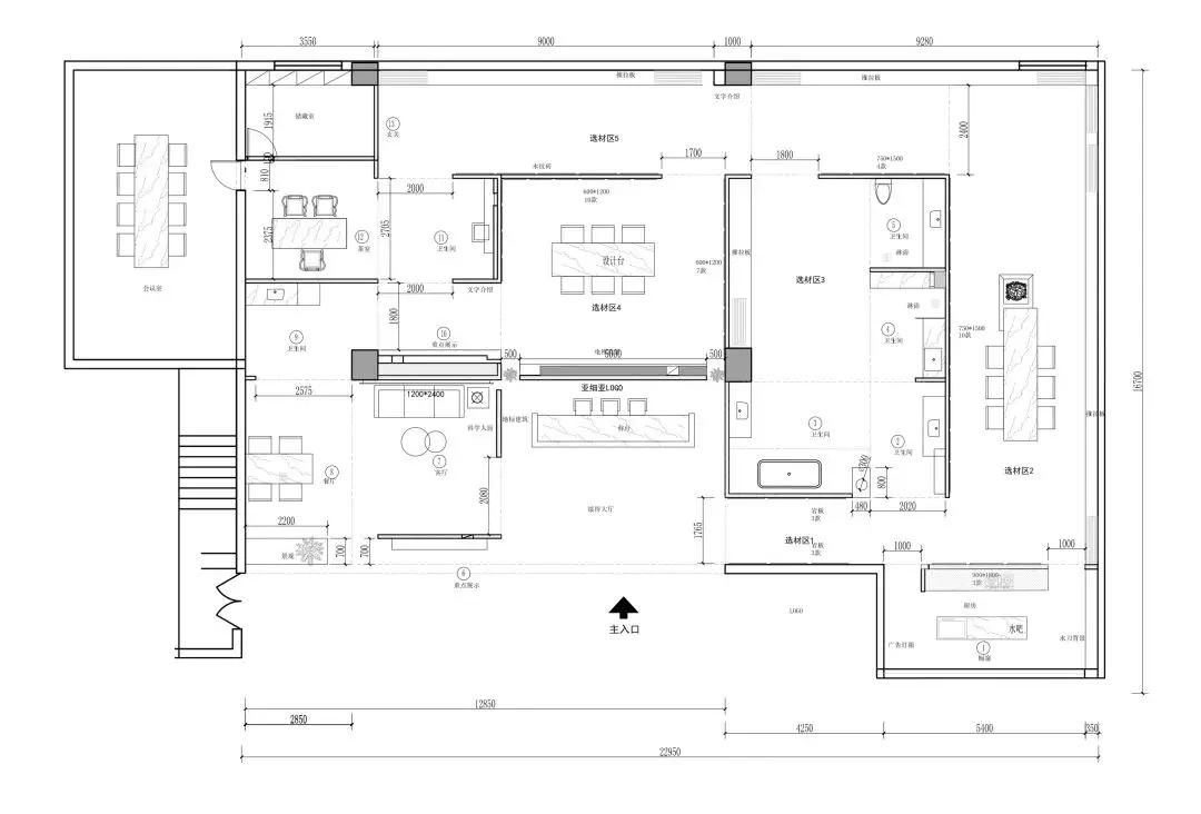
亚细亚瓷砖上海汶水路店平面设计图
集生活与美学于一体 的高品质体验店— 亚细亚瓷砖上海·汶水路店 ,以独特的生活理念,特色的产品以及舒适的格调,诠释高端瓷砖在现代空间中的设计魅力。
在设计中,设计师秉承 “科学人居·健康生活” 的产品理念,领先·服务·艺术相融合,满足多元化的消费者需求,为城市的美好生活增添人文之美!
设计鉴赏
DETAIL
设计师通过打造主入口透明玻璃半围合使空间形成边界,有效的 创造领域感 。
利用空间内退, 强化视觉重点 ,增强空间趣味性的同时,穿插透景,建立起一步一景的 期待性 。全景利用延升手法,在视觉上为客户建立 引导和指向性 。

1973

前台及大堂设计,采用了现代简约的风格设计布局,首先映入眼帘的就是由大面积白色艺术纹理墙面衬托而出的亚细亚瓷砖LOGO。
在灯光配合下,其简洁明快的色彩与干净利落的结构,既增强客户空间体验感,又充分彰显亚细亚瓷砖的雅奢格调与别具一格的空间设计感。

选材区域的设计上,在展现品牌调性的同时,通过与灯光的和谐搭配,最大限度突出每一款瓷砖的质感、色感、肌理感,使其完美呈现于品鉴者面前。

一目了然的设计效果,不同色系的产品搭配,契合了不同消费者的独特个性,方便消费者依据喜好选择不同的搭配。

产品与空间相融打造出温馨和静谧的沉浸式产品体验区。令消费者身临其境的感知,亚细亚瓷砖打造出的 从容自如的世界, 用每一寸设计唤醒消费者对空间的归属感。

专卖店内为客户设置了洽谈休闲区,为来店客户提供一个休息品茶的区域。
在这里,产品色彩与纹理的和谐碰撞,加上软装的色彩搭配,形成了一个个令人赏心悦目的美学空间。
在舒适与惬意之间,用一壶茶的时间,一个个关于美好之家的装修计划便悄然落地……

完美融入时尚潮流元素与最新空间创意,亚细亚瓷砖·上海·汶水路店,构筑触手可及的雅致生活,给您带来无限的家居设计灵感!



亚细亚瓷砖部分软装鉴赏
