
淘哥获悉,南山又有一个新盘已取得预售证,这次是南山大学城的深铁阅山境花园。
有很多朋友向淘哥咨询对这个楼盘的看法。淘哥认为,南山大学城拥有一系列利好,未来将是深圳下一个都市核心区,深圳湾——科技园——大学城的走向非常清晰,拥有巨大的潜力。
深铁阅山境花园则是南山大学城的代表性项目,淘哥最看好的是这个楼盘具备丰富的学校配套:小学是南科大实验一小、南科大第二实验学校、深圳大学附属实验小学,中学是深大外国语中学。
淘哥认为,在大湾区和先行示范区背景下,深圳将建设成一座国际化的大都市,也越来越重视教育,必然会催生与深圳城市地位匹配的一流大学,深圳大学、南方科技大学未来的空间还很大,就相当于深圳版的“清华北大”。
南山大学城未来的想象力不容小觑,这里的资产价值还有很大的成长空间。
01. 南山大学城将是下一个城市核心
深圳湾——南山科技园——大学城
未来潜力巨大
南山的崛起是何时开始?《深圳市城市总体规划(2010-2020)》获国务院正式批复。首次提出了将后海、前海、宝中规划为深圳一个新的城市主中心:前海中心。这是南山作为城市核心的起点,2013年深圳湾1号面世、其后悦府、恒二相继问世,让南山深圳湾迎来了历史上最辉煌的时刻。
那么,深圳湾之后,类似的最大机会在哪里呢?
2018年,深圳公布十三五总规,在2010年版本上进行了小幅修编。

深圳市城市布局结构规划指引
淘哥研究发现,对比2010年版本,主要变化在于:南山全域都纳入了城市主中心——所以南山科技园、大学城这几年开始爆发。
南山核心居住区的演变路径就是深圳湾——南山科技园——大学城,一路向北,背后深层次原因就是因为这次的总规。
展望未来,深圳市城市总体规划(2016-2035年)目前正在修编,深圳将进入以科创为核心的粤港澳大湾区都市圈。
作为最关键的科创区域,包括南山大学城在内的南山全域,都被纳入了整个深圳大都市的“都市核心区”,这里将成为整个粤港澳大湾区的都市核心区和中央智核。

深圳市城市总体规划
0 2.
西丽综合交通枢纽
西丽湖国际科教城
留仙洞总部基地
南山区三大引擎齐聚
南山区三大核心引擎都在南山大学城附近,分别是:西丽综合交通枢纽、西丽湖国际科教城、留仙洞总部基地。最近,这三大引擎又有了新进展。
1、 西丽综合交通枢纽纳入深圳市重点区域,成为“国际一流,全国范例”。
2020年6月8日,深圳市规划和自然资源局公示了西丽综合交通枢纽选址规划设计条件的通告。
最新通告显示,西丽综合交通枢纽总规模由之前的11站台22条线变为13台25条线,比深圳北站多出2个站台5条线路,计划今年开工。也就是说,未来的西丽综合交通枢纽将超过深圳北站,成为深圳规模最大的交通枢纽。

深圳市规划和自然资源局
西丽综合交通枢纽还将引入赣深客专、深茂铁路、深汕客专3条国家铁路,深惠(深珠)、深莞增、深珠(规划方案)3条城际铁路,以及13号线、15号线、27号线、29号线4条城市轨道。其承担赣深、深茂、沿海等多条高铁始发终到功能 。
淘哥认为,西丽综合交通枢纽的位置极其重要,它位于广深港澳科创走廊的轴线上,将成为整个大湾区的科创核心枢纽之一。未来会改变很多深圳人的出行方式,比如说很多地方不需要去广州转车了。住在南山大学城,去哪里都很方便。
目前,深圳市工业和信息化局拟将西丽综合交通枢纽纳入深圳市重点区域进行开发。深圳市政府也高度重视西丽综合交通枢纽建设,要将西丽枢纽建设成为“国际一流,全国范例”,打造成“品而不奢”“好用又好看”的枢纽。

西丽综合交通枢纽规划效果图
2、《深圳经济特区科技创新条例》发布,西丽湖国际科教城定位高大上。
《深圳经济特区科技创新条例》通过,很重要的一点,是要加快国家级重大科技创新平台建设,其中有三大平台:光明科学城、深港科技创新合作区、西丽湖国际科教城。可以看到,西丽湖国际科教城的科创地位非常重要;西丽湖国际科教城还被写入深圳地方条例,有了法律地位,不得不说定位很高。

《深圳经济特区科技创新条例》
深圳印发的《粤港澳大湾区建设深圳指引》提到南山区的定位时,有且只有一个项目——西丽湖国际科教城:
西丽湖国际科教城是推进源头创新的空间载体,发展定位为世界一流大学城、国家基础科学和应用基础研究中心,创新资源集聚辐射枢纽功能的中央智力区,粤港澳大湾区创新“智核”。

西丽湖国际科教城效果图
西丽国际科教城已汇聚18所塔尖学府、7所诺贝尔奖实验室,663家国家高新技术企业,是全市科研密度最高,科研基础最成熟的区域,名副其实的湾区智核所在。其中南山大学城片区,是目前高校资源最为密集的科教集群。
3、留仙洞总部基地,名企扎堆。
留仙洞总部基地是深圳六大总部基地和17个重点开发建设区域之一。 未来产值将达到3000亿以上, 实现18万人就业,约5万人居住生活。
目前入驻的有:大疆无人机总部天空之城、中兴通讯工业园、TCL全球研发中心、航天科工、乐普医疗、传音、天珑(手机生产商)、万科、特建发等企业总部。

大疆天空之城效果图
淘哥觉得,从以上规划可知,西丽是原关内区域极少的,潜力巨大,未来将发生重大变化的新兴片区。从核心资产配置角度,放眼前海、南山、福田,未来具备远大前景,现在价位又很合适,还处于一个被低估状态的黑马区域,看来看去,觉得最佳还是西丽。
0 3.
南山大学城=深圳的“海淀区”
深圳的“清华北大”附校在这里
淘哥认为,买房首先要考虑的因素是学校,南山大学城未来的想象力很大,可以说,南山大学城就是深圳的“海淀区”,深大+南科大的附属学校就是深圳的“清华北大”附校。深铁阅山境花园旁边就是深圳大学附属教育集团外国语中学。 (以下简称“深大外国语中学”)
1、我们先来谈一谈大学城的深圳大学、南方科技大学附属的学校。
2020年9月2日,泰晤士世界大学排名网发布最新“2021泰晤士高等教育世界大学排名”,深圳大学居中国内地高校第16名,南方科技大学居第8位。这个排名已经是很好了。

来源:深圳卫视
前不久公布的《深圳市建设中国特色社会主义先行示范区的行动方案(2019-2025年)》,已经
明确提出:“争取深圳大学、南方科技大学等高校进入国家‘双一流’大学名单。”
双一流是目前国内大学的最高荣誉之一,全国目前只有42所,都是赫赫有名的大学,除了北京有清华、北大、人大等8所、上海4所之外,其它各省市一般都只有1-2所,广东目前是中山大学和华南理工。四大一线城市,目前也只有深圳没有“双一流”大学。“双一流”大学的附属中小学,也往往是全国性的名校,如人大附中。

《深圳市建设中国特色社会主义先行示范区的行动方案(2019-2025年)》
淘哥认为,在大湾区和先行示范区背景下,深圳将建设成一座国际化的大都市,也越来越重视教育,必然会催生与深圳城市地位匹配的一流大学,深圳大学、南方科技大学未来的空间还很大,就相当于深圳版的“清华北大”。
今年5月15日,落户南山大学城的深大外国语中学学区正式划定,计划办学规模24个班,已于今秋正式开学。这个学校由深圳地铁集团代建,就在深铁阅山境旁边。
此外,周边还有南科大实验一小、南科大第二实验学校、深圳大学附属实验小学等,深铁阅山境属于学区范围内。
南山大学城内,和深铁阅山镜花园学区类似的是宝能城,目前二手房挂牌价在14-16万,一套89平米户型要1350万左右。

来源:贝壳
2、再看基础教育,2016年之前,西丽的基础教育资源比较薄弱,基本上没有名校。2016年后,南山教育局推动名校集团化,“育才、南外、南实验、南二外、深大附属、南科大、南文理”七大教育集团纷纷进驻西丽。
3、南山大学城更令人瞩目的还有高等教育, 这里人文氛围浓郁,潜移默化的提升区域内居民素质,其实也是未来高水平基础教育的生源基础。
目前,南山大学城片囊括了全市最密集的高校资源:深圳大学、南方科技大学、哈尔滨工业大学(深圳)、清华大学深圳国际研究生院、北京大学深圳研究生院等高校纷纷落户于此。

片区已有两院院士78人,全职院士28人,占全市的68%。大学城内目前拥有4.54万高校学子,1.4万科教人员,未来 将有8万高知高智分子进驻,区域内可能会汇集2.5万博士及以上人才。南山大学城将荟聚大量“高智高知高位”人士,这里有望成为深圳居住人口学历最高的区域之一。
淘哥提醒大家,在深圳城市中心的大学城,唯有南山大学城。类似的区域,如英国的牛津大学所在地牛津大学城,剑桥大学所在地剑桥大学城,还有美国哈佛大学和麻省理工学院的所在地,波士顿的剑桥区(也称剑桥市)。
南山北部大学城的未来,有没有可能走上剑桥、牛津、哈佛、麻省理工同样的道路?淘哥认为很有可能,南山
大学城高学历高素质的居民是一个优质学区的基础,高学历家长+优质生源+名校分校相结合,南山大学城的中小学教育水平有望持续提升!
想象一下,如果你在北京有一套房,清华北大以及清华北大的附属学校就在附近,这是怎样的一个书香门第啊?深铁阅山境花园坐拥深圳版“清华北大”附校环绕,未来就是这样的人文学府氛围,非常值得期待。某种程度上,这比南山传统的南外、南二外学区还稀缺。
错过深圳湾、错过南山科技园、千万不要错过南山大学城,不要错过深铁阅山境!
04. 深铁阅山境花园
南山大学城潜力股
毗邻地铁口,伴山人文府
深铁阅山境是一个均好性很强的楼盘,各个方面都是可圈可点。
项目位于南山区留仙大道与九号路交汇处,总占地约4.3万㎡,建筑面积约17.8万㎡,配建6班幼儿园及24班初中——深大外国语中学,是集住宅、学校和配套商业于一体的精英品质住区。

深铁阅山境效果图
项目亮点如下:
1、配建深大外国语中学,周边名校云集。
深大外国语中学今年 秋季已正式开学,新校区将于2021年上半年建成,并拟于2021年9月前迁入。
由南山区政府聚力打造,深圳大学学术团队引领,拥有教育人才高地的智力支持,将引进双一流大学本科、硕士学位名师资源,是深大附属教育集团成员学校协同发展的高起点学校。

深大外国语中学效果图
此外,项目周边汇聚南科大实验一小、南科大第二实验学校、深圳大学附属实验小学,家门口享受全龄教育。
2、项目毗邻地铁5号线塘朗站,向西2站到西丽综合交通枢纽、直达前海,向东2站到深圳北站CBD,向南6站连通市民中心;接驳高铁站、机场等重要城市交通。

深铁阅山境项目位置图
3、稀缺的生态资源,背靠塘朗山,纵览三山一湖。
南山大学城作为深圳原关内生态的最后一块保留地,绿湖绿化覆盖率深圳第一。
项目背靠约1000万㎡塘朗山臻稀景观,相当于36个莲花山公园;还有约4000万m³深圳生命之源·西丽湖、约13.7公里深圳版“塞纳河”·大沙河生态长廊景观、享誉世界的深圳国宾山·麒麟山、深圳八景之一·阳台山等城市大型符合生态环伺。

西丽湖实景(来源:创新南山)
4、商圈成熟,约30万㎡商业集群。
自带约3000㎡社区商业,周边拥有约30万㎡商业聚集,塘朗城广场、宝能环球汇、益田假日里等商业中心已开业,这里未来将是片区内最大的商业核心区。

塘朗城广场,来源:深业集团官微
5、新中式园林,结合山景资源打造人文雅邸。
深铁阅山境以新中式匠呈“一心、两廊、三境、四苑”景观园林,打造全龄配套;
南侧便是塘朗山脉,社区建筑单排布局,每户都开窗见景,前后无遮挡,通风采光佳;
外立面采用石材+铝板,这种材质造价是一般立面材质的三倍,保持美感又历久弥新;
采用高性能的系统门窗、中空LOW-E玻璃的材质,隔音降噪; 还有阔景飘窗的设计,使室内阳光充足,能尽情享受清风。
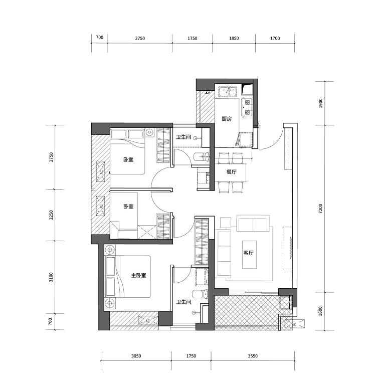
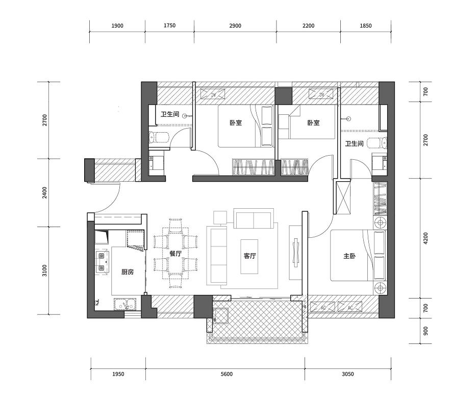
6、最后看下户型,项目共864套产品取得预售许可证,主力户型为建筑面积约78-81㎡2房1卫、约97-103㎡3房2卫。
78-81㎡的两房两厅一卫,户型方正、餐客一体尺度空间、全明飘窗配置、主卧可配置多重衣柜:

97-100㎡的三房两厅两卫,户型方正、全卧飘窗、景观厨房、动静分区、主卧套房:

100-103㎡的三房两厅两卫,横厅设计、U型厨房、入户玄关、主卧套房:

103㎡的三房两厅两卫,全屋东南朝向、客厅阔景阳台、全明飘窗配置:

淘哥认为,读懂了南山大学城,你就会非常喜欢深铁阅山境花园,“区域规划+名校学区+毗邻地铁口+超30万平商业环绕+生态资源”,自住和投资兼顾,项目已取得预售证,即已启动诚意登记,感兴趣的朋友可以联系项目置业顾问。

(本文仅代表《文杰淘楼》及淘哥个人观点,不构成具体投资买房建议,楼市有风险,投资须谨慎。)