
项目概况
项目名称:萍乡龙行国际养生会所
建筑面积:共两层,约3000m²
设计风格:新中式
主案设计师:七公子(覃乃鹏)
设计单位:观喜•定制整装
施工单位:萍乡•大诚至盛

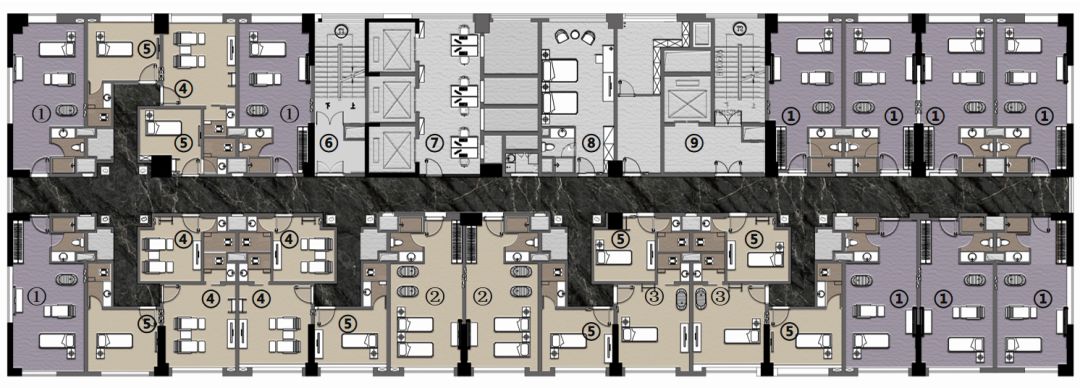
一、二层原始平面图
龙行国际养生会所位于萍乡市当地最有名的酒店-梅园国际大酒店的5楼和6楼,周边座拥60万平方米的高端社区,以及配套商业面积33万平方米,其中梅园国际酒店按国际星级标准打造,*会集**议、商住、餐饮、娱乐、休闲、购物为一体的多功能性酒店,拥有近300间客房,全智能化客控系统引领行业新时尚。

龙行国际养生会所位于梅园国际酒店5楼和6楼
龙行国际养生会所就此锦上添花,与酒店客房的中式元素相呼应,携手观喜•定制整装和大诚至盛打造了一个3000m²轻奢新中式风格集沐足、按摩等休闲活动的顶级养生会所,为酒店旅客、周边小区居民以及商务人士提供舒适的休闲体验。

梅园国际酒店客房
平面设计
一层、二层的原始平面是一样的,经过多次和客户沟通,沐足会所主要分为大堂区、VIP4人沐足包房、普通4人沐足包房、VIP按摩包房、普通按摩包房、员工餐厅、技师房、办公区等功能区域,详情如下:

一层平面图(点击看大图更清楚哦)
①大堂(前台、品茗区、等候区)
②VIP4人沐足包房(4间)
③VIP3人沐足包房(4间)
④楼梯间(步梯)
⑤员工餐厅
⑥电梯间及楼梯间
⑦普通4人沐足包房(6间)
⑧技师房
⑨普通2人沐足包房(3间)

二层平面图(点击看大图更清楚哦)
①VIP单人按摩+沐足包房(10间)
②普通双人按摩+沐足包房(2间)
③普通单人按摩+沐足房(2间)
④普通双人按摩房(5间)
⑤普通单人按摩房(8间)
⑥楼梯间(步梯)
⑦办公室
⑧休息间
⑨电梯间及楼梯间
色彩理念

一层大堂

大堂平面图
“盒子”是建筑里最简单的围合空间,一天一地,四面相洽,项目室内结构的简洁和均衡如出一辙,简单克制的线条,温润质朴的色泽材质,构建了一方寂静。

大堂前厅效果图
一层大堂前厅是环境与建筑关系的延伸。左右两边玻璃,看似坦然地将空间通透地展“露”,而实际上,玻璃的透明、空间内建筑材质的延续,将整个空间显得和谐融洽,“藏”于环境之中。
在空间中行进,可以感受空间由光线构成的序列,随着时刻的变化,光线的兴致与角度也在不停的变化着,室内空间随着外部环境的变化产生丰富的表情。

大堂前台、等待区、品茗区效果图
步入大堂内部,一眼便可以看到那浑然天成的木饰面,深得东方文化所强调的包容性与简洁美学的关系,与穿插的光影一道,丰富了结构与层次,赋予空间关于自然的臆想。远远望去,仿若两个半开的“盒子”组成几何造型。


等待区及水吧效果图
左边的等候区略带不羁,深咖色落地松软坐感舒适的尺度及皮质面料,和木饰面的温润感,金属光泽穿插点亮。大幅艺术装饰画不规则分割后拼接起来,更显气质风范。

品茗区(独立设计:岩板茶桌1)效果图

品茗区(独立设计:岩板茶桌2)效果图
右边的品茗区延续项目整体平静的色调和氛围,半枯的植物,器具的摆放,营造新中式的诧寂安静之感。

从大堂前台看入口效果图
从大堂前台往后看入口,在品茗区和等候区两边都设立了独立吧台,营造舒适的洽谈、等候、栖息氛围。
一层VIP沐足包房

一层VIP包房平面图

VIP3人沐足包房效果图
带温度的灰褐色VIP3人包间,不但有棕色系的沉稳,而且还拥有着色系的高级感。不对称的格栅造型背景,律动性十足。

VIP4人沐足包房效果图
木饰面材质在VIP4人包间得以延伸。灰褐色沉静浓郁的气质充满大地气息,中国红端庄秀美,与之相得益彰。超大幅的艺术挂画,简洁得体。
一层普通沐足包房

普通双人沐足包房效果图
和VIP包房的沉稳、雅致相比下,普通包房则采用高级灰与中国红的跳跃搭配,是色彩新贵与传统色彩的优雅演绎。搭配一起,可时尚可古典,缔造着现代东方的传承与包容。
一层技师房

技师房效果图
技师房是技师们休息、更衣的空间,则采用大面积的白墙、原木储物柜,用简单艺术画做装饰,整个空间营造宁静舒适的气氛。

一层楼梯间前厅效果图
走进步梯前厅,一抹红色艺术抽象挂画映入眼帘,铺陈在白色石纹砖墙面,随着进行和光的映射,颜色由浅至深变化着。与之相呼应的是红色座椅,艺术美人儿在那凝望着远方。

二层平面图(点击看大图更清楚哦)
①VIP单人按摩+沐足包房(10间)
②普通双人按摩+沐足包房(2间)
③普通单人按摩+沐足房(2间)
④普通双人按摩房(5间)
⑤普通单人按摩房(8间)
⑥楼梯间(步梯)
⑦办公室
⑧休息间
⑨电梯间及楼梯间
公共空间

一层、二层走廊效果图

一层、二层走廊效果图
从楼梯转出来,光被收藏,魔法一般从光明到黑暗的切换。走廊的幽暗,只留下两边壁灯的点点亮光支撑,交织模糊的明暗,催发出散漫、幽静的氛围。天花顶上的灯带宛若指路般,一直往前延伸到尽头。

一层、二层电梯间及楼梯间效果图

一层、二层电梯间及楼梯间效果图
如不喜欢走楼梯的,可以从另一则乘坐电梯直达二层,与上面单个步梯空间比较下,其是电梯和消防步梯相结合,均采用白色花纹大理石作为墙面,深灰色的地砖和消防门,整个空间显得更大气开阔。
二层VIP单人按摩+沐足包房


VIP单人按摩+沐足包房效果图
一进门便看到一席水墨画卷徐徐铺展开来,延续新中式的端庄雅致,延续水墨中的意境,跳跃了一抹花青,无再多余赘,极尽清雅之美。
二层普通包房

普通双人按摩+沐足包房效果图
双人按摩包房延续了与VIP单人包房相仿的视觉感受,沉稳而不孤冷。以浅唱低吟的方式,缓缓道出在此空间中的灵性与自然。

普通单人按摩+沐足包房效果图

普通单人按摩包房效果图
普通单人包房与一层普通双人包房相呼应,主要采用中国红作为主色,加上典雅的挂画做点缀,空间大有闹中取静的感觉。
卫生间

VIP包房卫生间效果图

普通包房卫生间效果图

公共卫生间效果图
整个会所主要采用大开大合的手法界定出符合东方特色的建构格局,饰面材质,形态婉转流畅,演绎着传统匠心。传统屏风、装饰画、现代灯光等灵活运用,藏与露,光与影,在空间之中制造出让人彻底放松的氛围之余多一份艺术气息,大众消费中得到不一样的艺术舒适之旅。