智东西(公众号:zhidxcom)
文 | 极果体验师
5.9寸的大屏幕,单手操作基本是不太可能的,不过在导航栏向左右滑动就会进入单手模式,其实就是缩小屏幕而已,但在这个手机屏幕往大屏发展的方向下,华为也算是绞尽脑汁去令用户能够单手操作。

最赏心悦目的,就是大屏+窄边框了。

边框真的已经很窄了。

大屏下玩王者荣耀,再也不坑队友。不过这里有一个小小的Bug,就是把导航栏隐藏,游戏就会出现触摸断触现象,解决方法是把导航栏给显示出来才可以。

双摄像头是凸出来的。

而随机附送的保护套能够很好地解决了因为摄像头凸起而造成磨损的问题。

打电话时,通话质量属于上乘,就算现场环境比较嘈杂,对方永远只会听见我清晰的声音。

拿在手也不觉得重,但也不轻,属于那种,有质量但不轻浮,哈哈。

190g,和官方数据惊人一样。

在*放播**30分钟视频后,手机正面最高温度集中在右上角,在38°左右。图中35.27°为中心温度。

而背面最高温度在34.5°左右,同样是集中在相同位置。33.57°为中心温度。

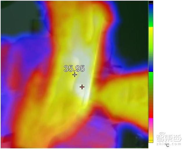
玩王者荣耀10分钟后,手机出现温热,最高温度在40.44°左右。

背面最高温度也在38°左右。35.95°为中心温度。

录入指纹的速度也是挺快的,大概按6-7下就完成了。

EMUI5.0是基于Android 7.0下深度定制的。预装的软件大部分都可以自行删除,并且多了一个负一屏,在桌面主页状态下向右滑动桌面,就会进入。

通知栏也完全重新设计了图标,对比上一个版本,放下了更多快捷开关。

现在微信太流行了,有时候需要两个微信,一个公用一个私用,而EMUI5.0延续EMUI4.0的优点,继续加入应用分身功能。

加入支付保护中心,把微信、支付宝和华为钱包等等这些需要保护的程序添加进去,就能够得到芯片级的保护,详情请继续往下观看。
拍照体验:

第一次打开相机,就会出现相关教程,其实就是向左滑动就是模式选择,向右滑动就是设置。

最特别的是专业模式,界面和Leica T与Leica S界面相似,字体也是徕卡单反相机的内置字体,快门声简直就是徕卡的声音了。

有各种各样的模式,摄影,本来就这么简单。开启专业模式后,就能够选择是否保存RAW格式,这对于摄影爱好者简直就是一大喜讯。

更新了最新固件(MHA-AL00C00B115),就会新增6X变焦功能。

开启大光圈模式,就会有类似单反那种远景深,大虚化的效果,并且能够自由切换对焦点。

当然,这种靠算法得出的相片,也存在失败,大家尽可能找主次分明的物体拍摄即可。

这个是我在足球场上连拍的,可以看到每一张都十分清晰。
不得不佩服华为Mate 9的拍摄实力,在这种逆光环境下,拍摄出来居然没有紫边,抗眩光能力极其优秀。

这张我随便拍的,也是没有紫边。

夜拍,没有太多的涂抹感,而且远处楼房的细节还是能辨认到。

华为Mate 9夜拍能力如何?你能数数左边的LED广告牌有几颗LED灯坏了吗?

我想大家看的不是右边被强光照射的树叶,而是左下角的树叶,放大的话,叶脉依然可以辨认。

前摄像头是800W像素,F1.9光圈。左边两张是在固件MHA-AL00C00B106下拍摄的,当时觉得开启美颜效果会令到噪点变多,但在提交体验报告时,却提示有新固件升级,所以立刻升级并且拍摄体验,发觉噪点变少了。




以上是我使用过称中所拍摄的部分照片,大家可以看看华为Mate 9的双摄魅力。
测试:

Geekbench下跑分。

GFXBench下高水平测试。

屏幕尺寸为5.9英寸,分辨率为FHD 1920 x 1080,负向液晶TFT,373PPI,对比度1500:1,色彩饱和度:96%NTSC。可视角度已经可以用优秀来形容了。

充电速度。
华为黑科技详解:

芯片市场现在被高通和联发科所长期占据,难道我们就不能自主创新?所以华为便自己研发芯片。
研发过程中的辛酸就不详细说了,真正有起色的是麒麟950 SoC芯片,对,是SoC!但低性能的GPU一直都被诟病,而麒麟960不但继承麒麟950的所有优点,并且GPU采用ARM Mail-G71MP8,不知道这个GPU干什么不要紧,你只需要知道它是为了VR市场而面世的产物就可以了。
把总线更换为CCI-550,从前麒麟950因为总线的限制,不能使用USF2.1,而现在麒麟960使用最新的总线,提高内存性能,直接上USF2.1。而CPU呢,四个大核换成A73 2.4GHz,还有安全方案、音频芯片和基带等等,在性能比前代进步的同时,能耗比有大幅度的提升,这下,麒麟960真的无所畏惧了。

HUAWEI SuperCharge
华为手机一直在续航上做得不错,我用过的华为机器,都能保持一天一充甚至一天半一充,但是在目前电池技术没有太大突破的年代,快充就是解决手机耗电快的一种“曲线救国”的方法了。
HUAWEI SuperCharge估计华为也已经憋了很久了,这次终于在华为Mate 9上下方这技术。现在快充有两种,一种是高压快充,就是平时我们所听到的QC2.0之类的,就属于高压快充。另外一种是低压快充,就是HUAWEI SuperCharge这种了。
这两种究竟哪种好呢?我直接给出结论,是低压快充。对比高压快充,低压快充无需手机端降压,充电转化率达到97%。高压快充发热量大,转换率较低,对电路的可靠性也有要求,如果手机降压电路出现故障,那就,Boom,之前某手机因为电池爆炸频繁登陆各个新闻,嗯,你懂的。
低压充电既然这么好,究竟还是推广不起来?那是因为成本高,线材、充电器、电池、接头等等全部都要重新定制,就像HUAWEI SuperCharge,采用了15层保护网,分别是安全电压、安全电流和温度监控各五个保护网。配合4000mAh电池,已经不单单是“充电五分钟,通话两小时”了。详细的充电速度请看上面的充电记录图。HUAWEI SuperCharge能做到5分钟充电10%,10分钟充电20%,20分钟充电40%,30分钟充电58%。

EMUI 5.0
基于Android 7.0系统深度定制。假如说EMUI 4.0只是不丑的话,那么EMUI5.0只能用惊艳来形容了。正题风格上更加趋向原生,并且新增“抽屉模式”。独创的Machine Learning智能感知学习系统从底层全面优化Android系统,深度结合其自身硬件特点,解决安卓越用越卡顿的问题,而且还加入各种本地化比较实用的功能。能不能像余承东所说的用18个月不卡顿还真的未知,但在我体验华为Mate 9这段时间来看,确实完全没有卡顿的现象。

芯片级保护
得益于麒麟960,集成了金融级安全芯片,除了防伪基站,还能够独创一个系统来运行关键软件,报告前面有提及。

徕卡认证双摄像头
Mate 9采用了与徕卡联合设计的1200万像素彩色和2000万像素黑白双镜头组合。在拍照的过程中,双摄像头同时工作,彩色摄像头捕捉颜色并进行还原,黑白摄像头则用于画面细节的捕捉。支持OIS光学防抖,并且支持四种对焦方式:相位对焦、激光对焦、深度对焦和对比对焦,华为Mate 9会自动根据所拍摄的对象和环境,选择出最快最适合的对焦方式。华为Mate 9上所搭载的是第二代徕卡技术,对比第一代对焦速度提升30%。支持4K视频录制。
总结:

体验华为Mate9有几天,当是主力机使用,一天下来还剩下一半电,而我不停拍照听歌和聊微信,能有这种续航也是十分满足,回家插上电源,就能立刻快速充电。玩游戏、拍摄和使用常用APP等,都没有卡顿的现象,就连用淘宝都不卡顿,你就应该知道华为Mate 9的“软硬结合”是有多厉害。真正的科技,是让人感觉不到科技的存在,而华为Mate 9做到了。
