今天这个话题很特别
样板房设计师跨界家装设计?
家装圈和样板房设计圈有个很诡异的鄙视链
家装设计师看不起样板房设计师
样板房设计师看不起家装设计师
以前聊过这个话题
样板房设计师设计技巧上大多强过家装设计师
但是缺乏深入的生活体验
作品大多显得空洞、浮夸
不适合居住、中看不中用
家装设计师在设计技巧上总显得不够专业
美感上总有缺失
今天通过这套项目的分享
感受下美感和生活怎样有机结合?

1500M2西郊明苑别墅
七大亮点读懂别墅生活
一层平面图




【亮点一】
“仪式感”门厅设计
独立玄关+对景内置中庭园林
这种配置可能是对入户仪式感最大尊重
视觉通透,同时又保证各自功能的独立
(个人很喜欢这个中庭)

【亮点二】
庭院跟室内功能的情景交融
别墅比较平层最大优势是什么?
可以将室内的生活场景无缝延伸到庭院
一直觉得有院子的生活才算豪宅
两个棋牌室+茶室+户外BBQ
看似夸张,却是生活真实的样子

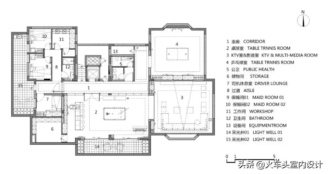
地下一层平面图






【亮点三】
“有故事”的地下层娱乐空间
为什么很多平层设计师做不好别墅?
很多设计师不知道如何去串联休闲功能
经常看到那种别墅地下层设计
各项功能都是相互独立
全部被隔墙分隔的满满当当
感觉每个功能都计划对外试营业了
红酒吧+桌球+影音室
影音室相互关联,又能独立分隔
这才是对空间的最大利用

【亮点四】
两个佣人+一个老司机
这才是别墅
看到这样的配置
感觉才符合1500M2别墅业主的身份
(壹品已经准备好“老司机职位”的简历投递)
生活中经常看到一类开发商开发的“刚需别墅”
配置一个佣人房
车库只能停一辆车
这是逼着业主必须买两栋做合拼吗?

【亮点五】
两间VIP化妆间配置才是地下室标配
看似小小的举动
却是真实体贴的举动
邀请一帮朋友过来聚会
喝点小酒上个卫生间还要排队
会不会很尴尬?
两间就解决了
多简单


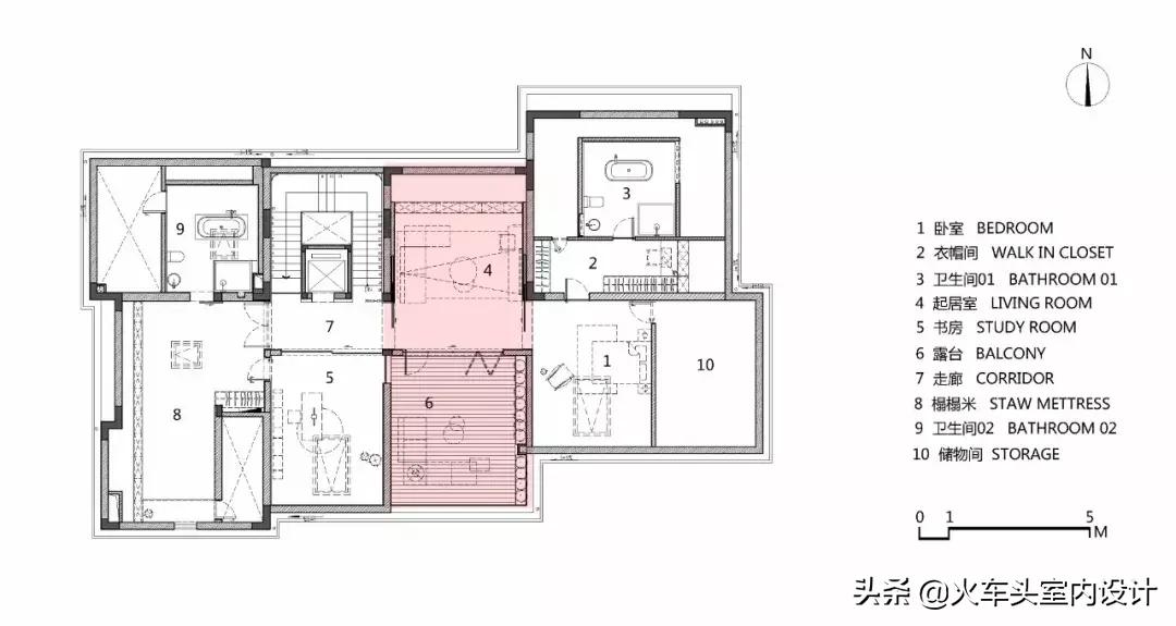
二层平面图

主卧套房





次主卧2



次主卧1






【亮点六】
别墅豪宅,标配至少一间豪华大主卧套房
如果一间不够,那就三间
主卧套房标准三件套配置
大卫生间+大衣帽间+起居室
这才是巅峰生活

阁楼平面图(三层)




【亮点七】
能够摘星星的阁楼才是人生
大多别墅将阁楼都当成了杂物间
暴殄天物

以上介绍的这套别墅
设计公司
壹舍设计(方磊)
"壹舍设计/方磊"的作品还有很多
作品基本占据了“上海豪宅的半壁江山”
上海嘉天汇 15万/M2
上海苏河湾 15万/M2
上海华润外滩九里 12万/M2
上海中鹰黑森林 12万/M2
上海嘉御庭 11万/M2
。。。。
(以上都有方磊的作品)