当人居进阶到一定高度
建筑更多的是象征居者的身份和层次
继池州中梁壹号院之后
中梁印江南再次为改善城市人居而来
墅质空间 理想家园
约98—168平米低密洋房
全城抢筹 即将盛大开盘
中梁印江南
因品位、内涵、品质
受到池州名人雅士的追捧
运动社区 收藏一家人的幸福时光
中梁印江南深谙运动和健康的关系,打造全龄段"运动主题社区"。把运动元素融入生活每一刻,承载三代人的居住梦想,让每个家庭成员都能在社区中找到属于自己的专属活动空间。

大型塑胶全龄儿童活动区,巧趣细节,为孩子们造一座乐园。羽毛球场,乒乓球场,挥洒运动的汗水。环形跑道轻松享受慢跑律动,为您生活增色添彩。
智慧智能社区 让科技改变生活
当科技成为生活的一部分,你是否也渴望有一个智能居所,可以满足你对智能生活的追求,可以为你的生活带来更多便捷,可以给你提供安全、安心的家。

而中梁印江南刚好满足,引入智慧生活理念,开启智慧生活时代,智能车牌识别系统、闭路监控系统,电子巡更等多重安防,倡导便捷安全的科技生活,致力于引领未来人居风尚,让那些梦想中的生活不再局限于想象而已,让未来生活现在就来。
新中式风格 传统匠心蝶变人居
王府中式,国宅范本。天地之间,有宅有院,对悠然与惬意自得境界的向往一直存植于每个中国人的骨子里,从未走远。

中梁印江南,遵循古典中式的典雅与灵秀演绎灵性东方美学,谱写现代诗意与王府威仪的新中式府邸,承袭御系建筑精髓,以显赫的"王府中式"建筑形制,为池州定制极具东方气度的专属华宅,敬献池州圈层人仕!
低密洋房 享受一方悠然生活
随着城市土地资源的日益稀缺,洋房也难觅踪影。相较于高层的迭起,洋房更为臻稀。纵观洋房建筑的发展,低密、舒适、自然都是他的独特所在。

对中梁印江南而言,低密不仅仅是个单薄的名词,它体现着筑造者珍视土地与生活的敬意。1.6的容积率,38%的绿地率,绿色空间肆意延展,在城市混凝土的森林里,让建筑与自然共呼吸,对低密居所的追求,已然成为一种逐心而居的生活态度 。
精研户型 每一平米都是美好生活享受
空间是建筑的灵魂,是人与生活的连接,中梁印江南以每一寸的设计,筑就生活点滴圆满。定制"教科书"式精品户型精诚匠著,每一户皆经典赋予居者更舒适的居住体验。

不看中梁不买房!中梁印江南认筹之后即将迎来盛大开盘,建筑面积约98-168㎡低密洋房,臻藏席位分秒递减中,竞速争藏不容错失,争抢首开红利分秒必争!

建筑面积约99㎡,
三室两厅一厨一卫
☞三开间朝南
客厅、卧室连南向大阳台,采光优渥
☞主卧与儿童房分而不离
便捷照顾孩子生活
☞主卧配带衣帽间
自带飘窗,采光性强
☞客厅超大背景墙,舒适居家视觉

本户型图仅作为室内家居效果示意图,所标尺寸仅供参考,交房尺寸以最终签署的《商品房买卖合同》的约定为准;相同户型单位因楼栋、楼层、单元等差别,局部结构、面积等可能不同。
建筑面积约110㎡,
三室两厅一厨两卫
☞动静分区
尽享安逸生活
☞双开间超宽阳台
揽风景入目、拥阳光入怀
☞南北通透
空间利用率高,拒绝浪费面积
☞U型厨房
与餐厅相连,料理美味便利自如

本户型图仅作为室内家居效果示意图,所标尺寸仅供参考,交房尺寸以最终签署的《商品房买卖合同》的约定为准;相同户型单位因楼栋、楼层、单元等差别,局部结构、面积等可能不同。
建筑面积约120㎡户型,
三室两厅一厨两卫
☞动静分明空间
舒适格局,各自安好
☞主、次卧、客厅三开间朝南
采光观景浪漫盈然
☞南北通透
约7米阔景阳台,把阳光和风引入居室
☞主卧带衣帽间
方便收纳,保证私密

本户型图仅作为室内家居效果示意图,所标尺寸仅供参考,交房尺寸以最终签署的《商品房买卖合同》的约定为准;相同户型单位因楼栋、楼层、单元等差别,局部结构、面积等可能不同。
建筑面积约127㎡,
四室两厅一厨两卫
☞三开间朝南
约7.3米观景大阳台,尽纳阳光入室
☞户型方正
无浪费空间,得房率高
☞U型厨房
餐厨一体,便捷享受饕餮美食
☞动静分离
厨房、洗手间均配置明窗,光线充足

本户型图仅作为室内家居效果示意图,所标尺寸仅供参考,交房尺寸以最终签署的《商品房买卖合同》的约定为准;相同户型单位因楼栋、楼层、单元等差别,局部结构、面积等可能不同。
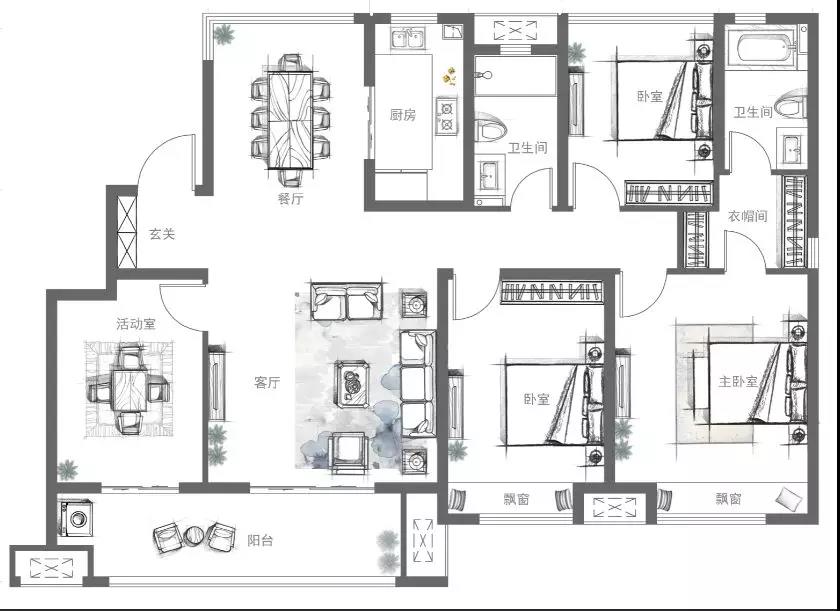
建筑面积约140㎡户型,
四室两厅一厨两卫
☞四开间朝南,南北通透,全明极致四房
☞约7.5米双景观阳台
迎清风入室,拥阳光满屋
☞朝南主次卧配观景大飘窗
套房式主卧私密尽享
☞厨房餐厅紧密相连
远离卧室,交通动线分布合理
本户型图仅作为室内家居效果示意图,所标尺寸仅供参考,交房尺寸以最终签署的《商品房买卖合同》的约定为准;相同户型单位因楼栋、楼层、单元等差别,局部结构、面积等可能不同。

本户型图仅作为室内家居效果示意图,所标尺寸仅供参考,交房尺寸以最终签署的《商品房买卖合同》的约定为准;相同户型单位因楼栋、楼层、单元等差别,局部结构、面积等可能不同。
项目地址:池州市贵池区九华大道与沿江路交汇处
项目电话:0566—8911111