
户型:四室两厅两卫一阳台面积:120平方米风格:法式轻奢费用:20万

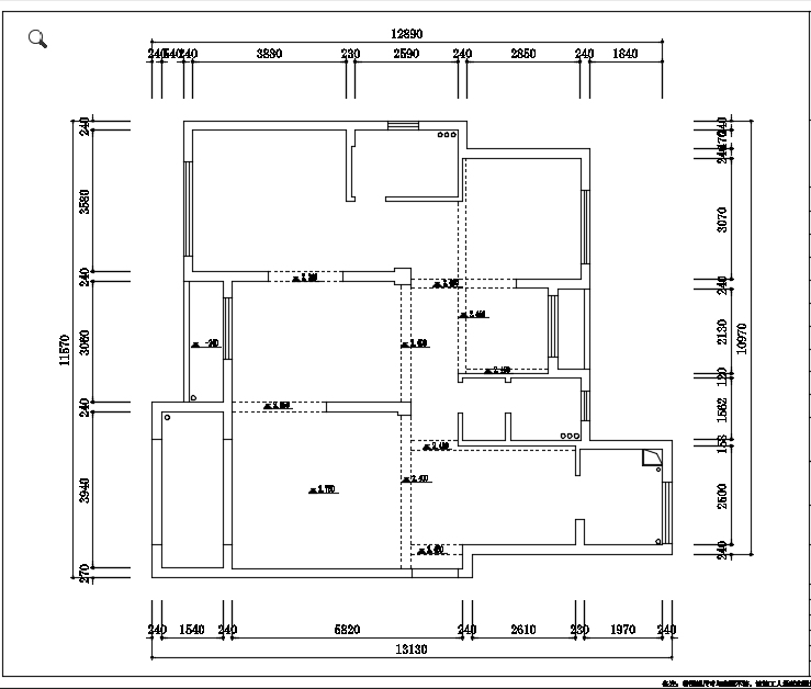
原始户型图
业主需求: 户主一家三口,儿子刚刚出生年轻妈妈喜欢法式风格希望有吧台、衣帽间储物空间大,整体空间通透

平面设计方案
户型优化: 把原先狭长的餐厅打开,做吧台餐厅连接阳台,整体空间通透大气主卧空间调整做出衣帽间设计玄关以及储物空间,满足户主要求 最终效果图:






今天的分享就到这里了,喜欢的小伙伴可以收藏呀,需要装修设计的小伙伴可以点击左下方的“了解更多”,免费领取全屋平面设计方案哦!

户型:四室两厅两卫一阳台面积:120平方米风格:法式轻奢费用:20万

原始户型图
业主需求: 户主一家三口,儿子刚刚出生年轻妈妈喜欢法式风格希望有吧台、衣帽间储物空间大,整体空间通透

平面设计方案
户型优化: 把原先狭长的餐厅打开,做吧台餐厅连接阳台,整体空间通透大气主卧空间调整做出衣帽间设计玄关以及储物空间,满足户主要求 最终效果图:






今天的分享就到这里了,喜欢的小伙伴可以收藏呀,需要装修设计的小伙伴可以点击左下方的“了解更多”,免费领取全屋平面设计方案哦!