成功人士的首选—沈阳方林装修
在众多设计中,一种一直被大户型业主热衷的就是这种风格了—简欧风格,他几乎成为35岁以上业主的成功标配了,下面给大家介绍一个这个风格的案例装修,有喜欢这个风格的业主可以看看,提供赏析!

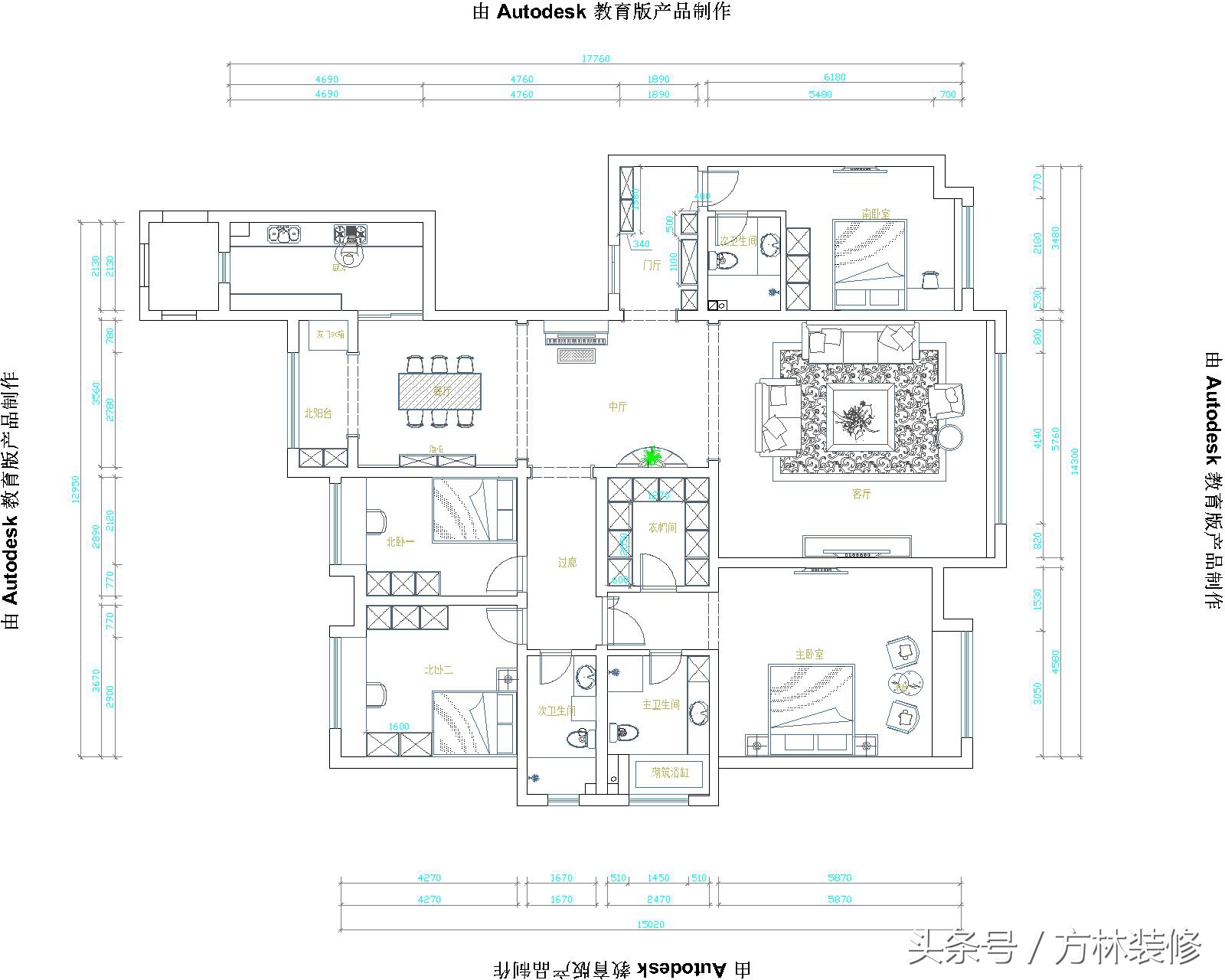
平面格局的设计是最重要的

过廊地心的设计

餐厅的地面拼花设计

欧式垭口

墙面的装饰造型

客厅与过廊的空间感

餐厅的摆放
更多资讯关注15904076868微信同步!
成功人士的首选—沈阳方林装修
在众多设计中,一种一直被大户型业主热衷的就是这种风格了—简欧风格,他几乎成为35岁以上业主的成功标配了,下面给大家介绍一个这个风格的案例装修,有喜欢这个风格的业主可以看看,提供赏析!

平面格局的设计是最重要的

过廊地心的设计

餐厅的地面拼花设计

欧式垭口

墙面的装饰造型

客厅与过廊的空间感

餐厅的摆放
更多资讯关注15904076868微信同步!