这是一套经典的农村自建房户型,面宽12米,进深9米,符合大部分农村宅基地要求。这套自建房户型可能在大江南北已经建造了几千套,而且还在不断增加中。外观造型简单大气,颜色搭配合理,内部平面布局也非常好,值得珍藏。
前效果图

后效果图

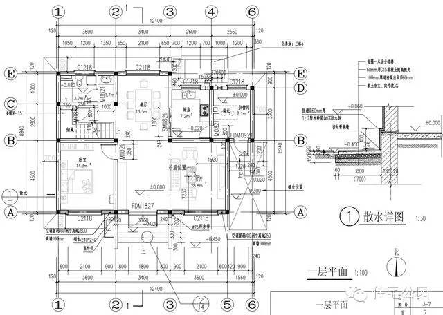
一层平面图:如果需要,进门可以增加隔墙,改为堂屋,摆放神位等。老人房,客厅朝南;餐厅厨房在北边;杂物间可以从房内进,也可以从外边进;三段化粪池在东北侧。

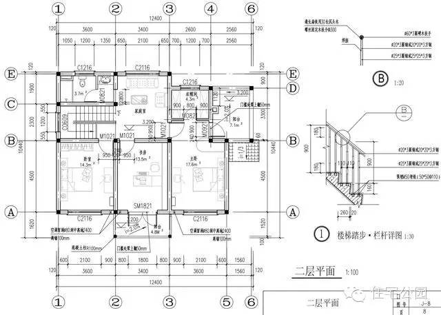
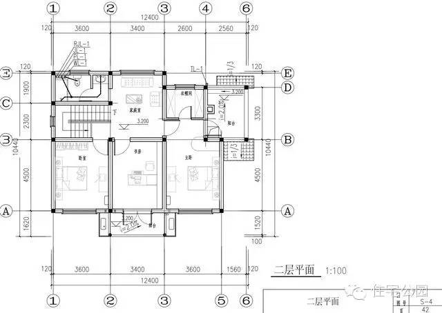
二层平面图:3个房间朝南,基本够住了,主卧自带衣帽间和阳台。

屋顶平面图:

南立面图:

北立面图:

东立面图:

西立面图:

剖面图:

楼梯详图:

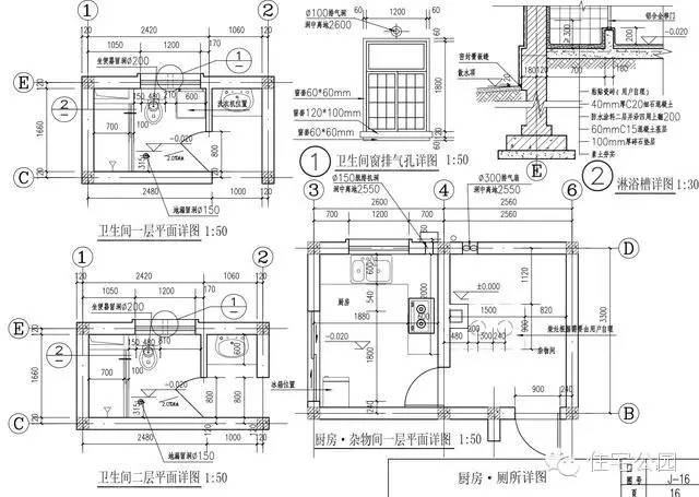
厨房厕所详图

墙身大样图:

门窗表图:

给排水图:


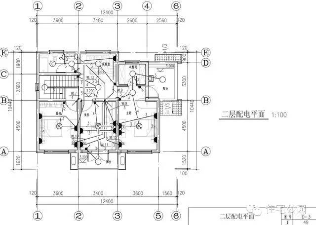
配电图:


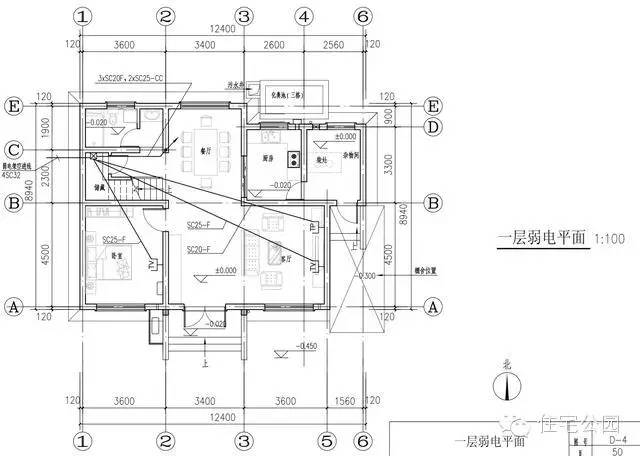
弱电平面图:


屋顶防雷平面图:

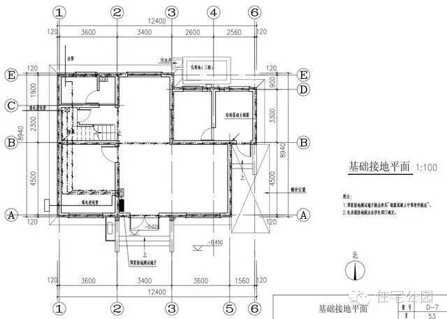
基础接地平面图:

微信公众号:住宅公园,自建房图纸免费*载下**300套,装修庭院设计分享,抗震保温新型房屋。