钢筋结构识图和钢筋下料翻样专栏分享:
1. 剪力墙中包含哪些构件?
【答】剪力墙不是一个独立的构件。它是由墙身、墙柱、墙梁共同组成。
2. 怎样识别剪力墙的暗柱?
【答】暗柱一般和墙身相平,隐藏在墙身中。

3. 怎样识别剪力墙的端柱?
【答】端柱一般都突出墙身。

4. 怎样识别剪力墙的暗梁?
【答】

5. 怎样识别剪力墙的边框梁?
【答】

6. 怎样识别剪力墙的连梁?
【答】连梁的梁顶面和梁底面都是剪力墙洞口。

7. 剪力墙墙身在图纸上是怎么表示的?
【答】剪力墙墙身最常用的是列表注写方式。

【依据】《11G101-1》P21(文章内容均依据11G101图集。而现行图集为16G101-1,如果你能参照这些节点在16G图集中将数据查找替换出来,那么,你就算真正拥有这些知识了,从这一点上看,这篇文章很有参考意义!)
8. 剪力墙身由哪几种钢筋组成?
【答】剪力墙身一般由墙身垂直筋、墙身水平筋、拉筋组成。

9. 墙体垂直筋"2C12@200"表示什么意思?
【答】

【依据】《11G101-1》P21
10. 剪力墙垂直筋在基础中怎么锚固?
【答】(1)当基础高度>LaE,且基础保护层厚度>5d时,剪力墙垂直筋在基础内采用弯锚,弯折长度6d。这种情况最常见于筏形平板基础内。

(2)其他情况下,剪力墙垂直筋在基础内采用弯锚,弯折长度15d。

【依据】《11G101-3》P58
11. 剪力墙垂直筋有几种连接方式?
【答】有三种连接方式:绑扎连接、机械连接、焊接连接。
12. 剪力墙垂直筋怎么绑扎搭接?
【答】当采用绑扎搭接时,搭接长度=1.2×抗震绑扎长度LlE。错开长度500mm。

如果是采用一级光圆钢筋,两端要加180°弯钩。

【依据】《11G101-1》P70
13. 剪力墙垂直筋怎么机械连接?
【答】当采用机械连接时:墙身垂直筋伸出顶面≥500mm;错开长度35d。

【依据】《11G101-1》P70
14. 剪力墙垂直筋怎么焊接连接?
【答】当采用焊接连接时:墙身垂直筋伸出顶面≥500mm;错开长度35d,且≥500mm。

【依据】《11G101-1》P70
15. 剪力墙垂直筋遇到洞口怎么处理?

【答】伸到洞口顶面弯折10d。

16. 剪力墙在垂直方向变截面,垂直筋怎么处理?

【答】(1)下层墙垂直筋伸至本层板顶弯折12d;上层墙垂直筋直插至剪力墙中1.2LaE。

(2)还有一种斜弯连续不断开的做法;即当变截面厚度差Δ≤30mm时,斜弯段垂直距离≥6Δ。但是因为不便施工,实际中用的很少。

【依据】《11G101-1》P70
17. 剪力墙垂直筋在屋面层顶怎么处理?
【答】伸至屋面层顶再弯折12d。

【依据】《11G101-1》P70
18. 剪力墙垂直筋遇到框架梁怎么处理?
【答】锚入边框梁内LaE。

【依据】《11G101-1》P70
19. 剪力墙垂直筋遇到连梁怎么处理?

【答】锚入连梁内LaE。
【依据】《11G101-1》P70
20. 剪力墙垂直筋的起步距离是多少?
【答】剪力墙垂直筋起步距离=墙身垂直筋间距。

【依据】《06G901-1》P3-2
21. 剪力墙水平筋的长度怎么计算?
【答】剪力墙水平筋的长度=净长+锚入长度

22. 剪力墙水平筋遇转角墙暗柱,锚入长度怎么计算?
【答】(1)剪力墙内侧水平筋在暗柱里伸至对边弯锚15d。

(2)墙外侧水平筋连续通过转弯,在暗柱范围外,与转角两侧水平筋搭接。

墙外侧上下相邻两排水平筋交错绑扎搭接,搭接长度1.2LaE。

墙外侧水平筋在暗柱处还有一种连接方式:伸至暗柱对边一个绑扎长度LlE。

绑扎长度LlE重叠之处就是绑扎搭接区域。

【依据】《11G101-1》P68
23. 墙身水平筋遇到T形翼墙怎么处理?

【答】伸到墙外侧弯折15d。

【依据】《11G101-1》P69
24. 一字型暗柱在剪力墙端时,水平筋怎么处理?
【答】伸至暗柱对边弯锚10d。

【依据】《11G101-1》P68
25. L型暗柱在剪力墙端时,水平筋怎么处理?
【答】(1)内侧水平筋伸至对边弯折15d。

(2)外侧水平筋伸至对边弯折0.8LaE。

【依据】《06G901-1》P3-7
26. 剪力墙水平筋在暗柱里可以直锚吗?
【答】不可以。剪力墙水平筋在暗柱里无直锚构造。
27. 剪力墙端部无暗柱时,水平筋怎么处理?
【答】伸至端部弯折10d。

【依据】《06G901-1》P3-7
28. 剪力墙水平筋遇到洞口被切断时怎么处理?
【答】(1)当剪力墙厚度>10d,剪力墙水平筋到洞口弯折10d。

(2)当剪力墙厚度≤10d,剪力墙水平筋在墙端部连续通过,在侧壁与水平筋绑扎搭接LlE。【43】

【依据】《11G101-1》P68
29. 墙身水平筋在端柱内怎么锚固?
【答】(1)当端柱截面宽度≥LaE时,墙身水平筋伸至端柱对边直锚。

(2)当端柱截面宽度≥LaE时,墙身水平筋伸至端柱对边弯锚15d。

【依据】《11G101-1》P69
30. 剪力墙在水平方向上变截面,水平筋怎么处理?

【答】较薄墙的水平筋直插进较厚墙内1.2LaE。

较厚墙的水平筋伸至端部弯折15d。

【依据】《11G101-1》P69
31. 剪力墙身水平筋怎么确定?
【答】墙身水平筋的根数确定,要分基础内和楼层中。
32. 基础内墙身水平筋的根数怎么确定?
【答】取决于基础侧壁保护层厚度。
(1)当基础内剪力墙插筋保护层厚度>5d(d为插筋最小直径)时,非加密布置,即剪力墙基础内水平筋间距≤500mm且不少于两道水平分布筋和拉筋。

(2)当基础内剪力墙插筋保护层厚度≤5d(d为插筋最小直径)时,加密布置,即剪力墙基础内水平筋间距≤10d(插筋最小直径)且≤100mm。

特别注意下图的情况:剪力墙外侧基础插筋保护层厚度≤5d,内侧基础插筋保护层厚度>5d,此时,内侧和外侧的水平筋间距是不一样的。

【依据】《11G101-3》P58
33. 基础内墙身水平筋的起步距离是多少?
【答】从基础顶面开始,往下起步距离100mm,往上起步距离50mm。

【依据】《11G101-3》P58
34. 楼层中墙身水平筋的根数怎么确定?
【答】楼层中墙身水平筋的根数按图纸标注的正常间距连续布置。在楼面位置起步距离50mm。
35. 当墙身水平筋遇到连梁或暗梁怎么办?
【答】当墙身水平筋遇到连梁或暗梁,不受影响,在梁箍筋外侧连续布置。

【依据】《11G101-1》P74
36. 当墙身水平筋遇到楼板、屋面板怎么办?
【答】在楼板、屋面板内连续布置。

37. 剪力墙墙身拉筋有哪些布置形式?
【答】一般分为梅花形布置和平行布置。如设计未明确注明,一般用梅花形布置。


【依据】《11G101-3》P16
38. 墙身拉筋在楼层中竖向布置范围怎么确定?
【答】在楼层中竖向范围内,从楼面往上第二排墙身水平筋开始,至顶板往下第一排墙身水平筋结束。

39. 在墙身宽度水平方向范围内,拉筋怎么布置?
【答】从端部的墙柱边第一排墙身垂直筋开始布置。

40. 剪力墙墙身拉筋的间距是多少?
【答】一般情况下,墙拉筋间距是墙水平筋或垂直筋间距的2倍。也就是通常所说的"隔一拉一"。
41. 在连梁、暗梁范围内,需要布置拉筋么?
【答】需要。在连梁和暗梁范围内,拉筋连续布置。

42. 什么是连梁?
【答】连接墙肢与墙肢 ,墙肢与框架柱的梁称为连梁。连梁一般具有跨度小、截面大 ,与连梁相连的墙体刚度大等特点。
43. 连梁集中标注"4C16(2/2);4C16(2/2)"表示什么意思?
【答】

【依据】《11G101-3》P21
44. 连梁里有哪些类型的钢筋?
【答】连梁也是梁,所以框架梁有的,连梁也有,包括:纵筋、箍筋和拉筋。

45. 连梁位于中间洞口时,纵筋长度如何计算?

【答】连梁纵筋的长度=洞口宽+两端锚固长度max(LaE,600)

46. 连梁位于端部洞口时,纵筋长度如何计算?

【答】(1)当墙端部够长时,直锚。即墙端部长度>max(LaE,600)时,可以直锚,直锚长度为max(LaE,600)。

(2)当墙端部不够长时,弯锚。即墙端部长度≤max(LaE,600)时,伸至墙端部对边弯折15d。

【依据】《11G101-1》P74
47. 连梁箍筋是怎么布置的?
【答】(1)中间层连梁:箍筋在洞口范围内布置。

(2)顶层连梁:箍筋在连梁纵筋水平长度范围内布置。洞口范围外箍筋间距150mm。

【依据】《11G101-1》P74
48. 如果遇到双洞口连梁,洞口间范围是否要设置连梁箍筋?
【答】洞口间范围要设置连梁箍筋,且连续通过。

【依据】《11G101-1》P75
49. 连梁拉筋怎么布置?
【答】连梁拉筋间距为箍筋间距2倍。竖向沿侧面水平筋隔一拉一。
【依据】《11G101-1》P74
50. 暗梁的纵筋是如何布置的?
【答】暗梁的纵筋在剪力墙内连续通过。
51. 暗梁的纵筋在端支座处是如何锚固的?
【答】(1)中间层暗梁端支座锚固:伸至对边弯折15d。

(2)顶层暗梁端支座锚固:上部钢筋伸至端部弯折LlE;下部钢筋伸至对边弯折15d。

【依据】《06G901-1》P3-15
52. 暗梁与连梁重叠时,纵筋如何布置?
【答】(1)若暗梁纵筋与连梁纵筋位置相同、规格相同,可连续贯通。

(2)若暗梁纵筋与连梁纵筋位置相同、规格不同,可将它们相互搭接,搭接长度=max(LlE,600)。

(3)若暗梁纵筋与连梁纵筋位置不同,就各自计算,互不影响。
【依据】《11G101-1》P75
53. 边框梁与连梁重叠时,纵筋如何布置?

【答】纵筋布置方式同暗梁与边框梁重叠时布置方式一样。
即暗梁与边框梁的纵筋:
(1)位置相同,规格一致,连续通过;
(2)位置相同,规格不同,相互搭接;
(3)位置不同,各自计算,互不影响。
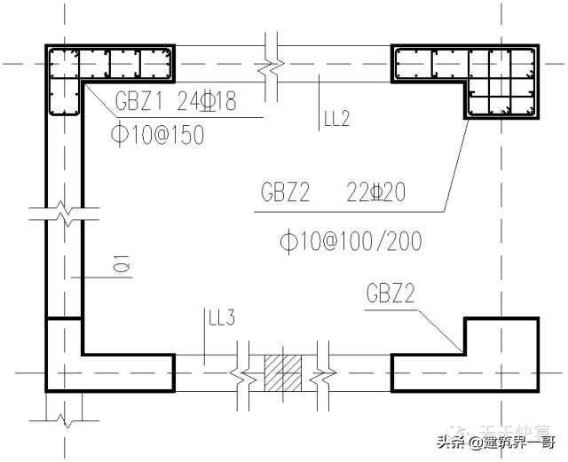
54. 剪力墙柱一般在图纸上是怎么表示的?
【答】(1)可以采用列表注写方式表示,即将所有柱的大样图都排列成表。

(2)也可采取截面注写方式。

【依据】《11G101-1》P22、23
55. 剪力墙暗柱纵筋是怎么连接的?
【答】剪力墙暗柱纵筋连接方式同墙身垂直筋。
(1)当采用绑扎搭接时:搭接长度=1.2*抗震绑扎长度LlE。错开长度500mm。

(2)当采用机械连接时:剪力墙暗柱纵筋伸出顶面≥500mm;
错开长度35d。

(3)当采用焊接连接时:墙身垂直筋伸出顶面≥500mm;错开长度35d,且≥500mm。

56. 剪力墙暗柱纵筋的根数怎么确定?
【答】直接在柱截面图上数。
57. 剪力墙暗柱纵筋在基础内怎么锚固?
【答】同框架柱。以基础高度是否大于LaE为分界线。
(1)当基础高度Hj>抗震锚固长度LaE时:弯折长度a=max(6d,150),即取6d和150mm中的较大值。

(2)当基础高度Hj≤抗震锚固长度LaE时:弯折长度a=15d(d为插筋直径)。

58. 什么是剪力墙的边缘构件?
【答】边缘构件一般布置在剪力墙两端和洞口两侧。像暗柱、端柱、翼墙、转角墙都属于边缘构件。边缘构件又分约束边缘和构造边缘。
59. 怎么从编号上区分约束边缘和构造边缘?
【答】构造边缘构件在编号时以字母G打头,如:构造边缘暗柱GAZ、构造边缘端柱GDZ、构造边缘翼墙GYZ、构造边缘转角墙GJZ等。
约束边缘构件以Y打头,如:约束边缘暗YAZ、约束边缘端柱YDZ、约束边缘翼墙YYZ、约束边缘转角墙YJZ等。
60. 怎么从构造上区分约束边缘和构造边缘?
【答】(1)约束边缘构件除端部或角部有一个核心区域外,在核心区域和墙身之间还有一个扩展区域,该区域的特点是加密拉筋或同时加密竖向分布筋。

(2)构造边缘构件无扩展区域。

从上面的例子可以看出:约束边缘构件比构造边缘构件要"强"一些。所以,约束边缘构件应用在抗震等级较高(如一级)的建筑,构造边缘构件应用在抗震等级较低的建筑。
【依据】《11G101-1》P13、14
来源:网络。来源:天天快算