一杯清茶,几抹书香
阳光院落,几缕闲情
一个荡漾心灵的地方
一座陶冶情趣的雅居
处境通幽,宁静致远
一直以来,中国人对居住环境都有相当高雅的品味,素雅宁静之美,令人心驰神往;以虚而有节疏疏淡淡,不慕荣华、不争艳丽、不媚不谄的品格,与古代贤哲“非淡泊无以明志、非宁静无以致远”的情操相契合。
本案是给一个充满书香气息、儒雅的家庭设计的。业主非常喜欢喝茶,看书,享受安静闲暇时光,一杯茶,一本书就可以坐一个下午,然后写下自己的一些心得体会,在这个喧闹快节奏的城市里是非常难得的。
本案的整体设计风格为新中式,黑白灰搭配原木色,以银杏元素作为空间的点睛之笔。银杏强大的生命力能作为家庭的一个正能量象征,寓意家庭一直保持顽强的生命力,积极向上。


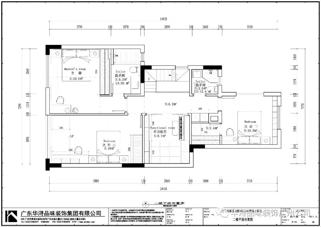
▲平面图
【项目地址】龙湖天宸原著
【项目面积】220㎡
【装修风格】新中式
【设计师】刘神榕
缓缓步入屋内,玄关的设计简洁大气,注重功能性,独立的鞋帽间让家里整洁干净。

清茶现饮
寄情杯盏沉浮之中
超脱红尘琐事之外
即使没有雕梁画栋,镶金描银
也足可以带来不一样的视觉享受

本案设计摈弃“不必要的设计”从心灵出发,以书籍、茶香、音乐、银杏来丰富生活的情调。家庭成员在这里可以一起阅读交流,孩子从小培养阅读写作的习惯,保持一颗纯净的心灵去看待这个世界。

餐厅的设计采用了中西厨的方式,加大了厨房的空间,更加注重功能的使用。让烹饪变成一种享受。

*坐静**书房,消闲无事,淡泊以自乐,
无论外界如何喧嚣,进入这个小小空间
宛如到了一片净土。

主卧设计简洁大气而稳重;木质温润的触感、淡雅素净的配色及艺术品的点缀为主卧进行了全新的定位。

男孩房以美国英雄为主题,从小有个英雄梦,将来必将成为国家栋梁。

女儿房为温馨公主房,少女心满满的。阳台设计了一个榻榻米形式,小孩子在这上面玩耍也是一大乐趣。

前庭后院,看万物生长,区域划分明确,打造当代仪式感的庭院生活。


设计师

2018
刘神榕
资深设计师
国家注册高级室内设计师
高级软装设计师
广工贸客座讲师
荣获2014年“岭南杯”会展设计技能大赛“三等奖”。
设计理念:以人为本,少即是多,摈弃“不必要”的设计,看不到的设计比看得到的设计更重要,做有温度的设计,相信设计会让生活变得更美好。