美式简约的装修风格,以简单的实用性为主,这种设计风格深受人们的喜欢,一个简单干净的空间更让人感到舒适,复杂的外部设计反而容易让人疲惫。这套案例的业主就选里简约美式,因为简约美式的难点就在控制预算上,而设计师在控制预算上把控的十分完美,一起看一下简约美式的家是如何打造完成的,来听听业主本人是怎么说的。
设计阶段

收到了设计师的第一版效果图,第一眼看上去的效果真的像在看别人的家。仔细看了看,很熟悉的味道。貌似很像设计师以前设计的风格,然后感觉整体造型偏简单了。当然,我承认我预算有限,但是我还是想要好效果。
于是跟设计师提了一下我的想法,那么如何在好的效果与低预算找到最佳平衡点,就是考验设计师功力的时候。我主要有几点要求:
1、地板要暗茶色
2、电视背景墙要出点效果的
3、那个门洞不知道会不会显得突兀,设计师说大户型才能这么弄,应该很好,所以就相信专业人士的眼光吧。

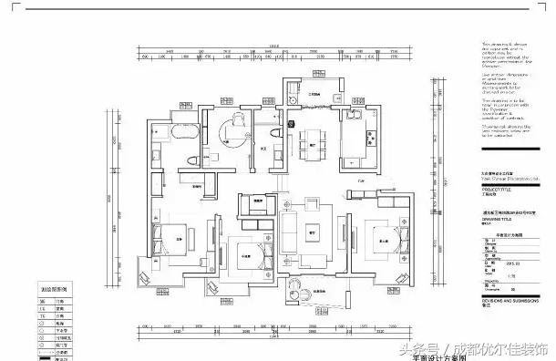
进门的储藏间过于狭长,实际使用意义不大。所以准备让给老人房,进门希望有一个大大鞋柜以及挂衣服的地方,台阶上的走廊面积大,过于浪费,准备做个储藏间。如果把儿童房的门移到靠西的位置,腾出的地方可以做储藏间。但是不确定那面墙是否可以开门洞。如果2.1m不行,只好把书房的门开在卫生间干区,将现在书房的门堵起来做储藏间。
开工阶段

在没有与我们确认打洞方案的情况下,电工师傅按照他的经验设计的水管走向果然与我们原设计不一致。电工师傅认为水管要尽量走在吊顶里面隐藏起来。而我的需求很简单,热水一定要走最近的线路。所以原有的几个洞要封掉,还需要重新打了2个洞。

老人房原计划放六尺的床。当时跟设计师讲过了,以为就没问题了。哪知道图纸上竟然是五尺的床。所以电工师傅还是按照图纸的设计开的槽。这样,现在的开关插座位置都需要改正。向左右两边各移15cm。

这里,要提醒各位业主,开工之前,一定要仔细检查好每一张图纸的每一个细节,因为师傅都是按照图纸施工的,他不会细致的与你确认每一个细节,他也没这个义务。也不要指望设计师能帮你细致的审核每一张图纸,如果设计师能够事无巨细的帮你考虑好每一个小细节,那么你要先想好,你打算支付多少设计费呢?水管走向考虑的问题比较多,首先要满足便捷热水的生活需求,其次要省钱,也就是水管要按照最短要求布局。

最初师傅没有按照图纸布局,而是按照经验,水管布局尽量绕开书房,全部走吊顶区域。这样美观性会好一点,但是两个卫生间淋浴房、洗脸盆的热水管距离明显加长,这样以后每次用热水都要先放好多凉水出来,浪费还绕远

经开始砌墙了,高队让院儿下班过去看一下。果然还是要常沟通的。新砌的储藏间原计划用1/2砖,留900mm的门洞。后来改为1/4墙了,师傅按照图纸内墙尺寸挂垂直线,现在门洞就成1000mm了。因为走廊比较窄,我们打算做对开门而不是移门,因此门洞还是要控制在900的。另外,现在两边的深度只有52cm,做柜子标准进深应该是60cm。所以必须至少把门洞其中一面加长。

为了做个大鞋柜,放弃了宽敞的门厅,到底值不值呢?仔细量了尺寸,新砌墙到进户门只有40cm。去掉门套,粉平,背板,门板,感觉完全达不到我要求的鞋柜净深30cm啊。跟施工队长联系,施工队长说保证没问题。那就放心了。等泥木工结束后,离新家完工的脚步又近了。现在基本都完成了,就差安装了。
完工入住
对于一个从设计到施工,从硬装到软装都一路负责的设计师来说,案例的最终效果是否让业主满意固然是第一位的,是否让自己满意也是一个工作内动力。每次无论是去商场挑选家具,还是在网上进行淘宝,都是按照这个效果图的搭配来选择的。尤其设计师选择的风格和产品也不是稀奇古怪的,除了费点事,倒是一路都把产品配齐了。

在家具的搭配与选择上,简单质朴的原木色就足以将整体空间映衬的足够完美,经典的上下铺设计,在符合整体风格搭配的同时,也是对于空间最大限度的利用,足够大的衣柜,提供了足够多的储物空间,在展现风格又注重外表美感的同时,也非常的实用。

虽然客厅给人的整体感情基调是比较沉稳而大气,但通过周工对于细节之处的软装搭配把控,又赋予了整体空间的活泼感,美式情怀对自由向往的态度也跃然闪现。深色美式皮沙发上的俏皮布艺抱枕,抱枕有些民族风,为家里增添着温馨与活泼的元素,中和了深色主基调的高冷。客厅吊顶的设计也非常独特,线条设计加上小装饰灯的辅助,使整体空间视觉延伸效果非常好。

餐厅吊灯选的是跟客厅一样的吊灯,与黑色流动线条的餐桌、餐椅相呼应。厨房采用透明玻璃移门的封闭设计,在保持了良好的视觉与空间通透感的同时,又很好的阻止了厨房油烟的外溢,并保证了厨房空间的隐秘度。说起厨房,刚贴好瓷砖的时候,院儿对厨房各种不满,墙砖太深,地砖太花,但是等橱柜、灶具安装完毕后,院儿越看越喜欢。

无论从空间布局、色彩运用上,还是在材质的选择上,设计师都力求完美,出处遵从着简而不凡美式简约风格。餐厅的镜面处理深受很多家庭喜爱,这一大面的反光材质在视觉上做了暗化处理,将灯光效果全部交给吊顶,显得这小小餐厅温馨十足。

客厅餐厅宽度不一样,在这里两面墙不在一条直线上,这个公主殿起到了很好的过渡作用。而且把我后面盖起来的储藏间也藏于无形之中。而且每天上下台阶经过这个小廊,还是颇有感觉的。有的时候累了,就坐在台阶上,倚靠着门殿,也很惬意。

除了厨卫的瓷砖,门厅地面的、干区地面和墙面,以及阳台的地面瓷砖都是设计师建议我在淘宝上购买的,价钱非常实惠,就拿门厅这个一平米左右的面积来说,这么漂亮的花纹才花了400块。一开始我不敢在网上买建材类的,怕质量不过关,设计师就和她说其实瓷砖在网上买现在也蛮常见的,加上又不是大面积使用,完全没问题。有了专业意见的支持,我就放心了。

我家这次装修选择的是简约美式风格,但其实花的钱可以说都花在了刀刃上。所有的加起来大概在45万左右,还包括了大金的中央空调。设计师在装修期间,还会去我家都会询问每一件商品的价格。能够省下这些钱,都要谢谢设计师。设计师还会不辞辛苦带我们去各大展会,很多时候品牌都会在展会上打折,可是面对一些优惠的价格我就不是能够立马定主意,于是设计师凭着他对市场上产品的敏感度,给我了决心,可谓下手快狠准。

衣帽间和餐厅边柜都是索菲亚的,价格也蛮优惠的,是在展会上定下来的。客厅阳台移门和餐厅灯都是在恒大建材市场淘来的,光是卖场就跑了好多趟。
编辑留言:
这次装修的要求就是功能齐全,储物充足。风格经典,不能很快过时。最最重要的就是环保。所有材料都要环保。是呀,很多读者们装修首要条件都要材料环保,装修前逛逛展会也能淘到不少相对便宜的东西。