中国社会自古以来就是人情社会,人脉在很大程度上决定了一个人及其下一代的圈层升迁;尤其是后天人脉的结交与培养。因此,人们选择高端改善居住只是置业需求的一部分,结交高端邻里建立圈层人脉资源更是置业投资极为重要的一环。

现在,有一种圈层就被称为“云翼圈层”。它本身是起源于华润置地悠山悅景在贵阳打造的首个5.8米客厅挑高“空中跃墅”产品的业主圈子。围绕这个高端居住产品,建立起一套高尚圈层生活体系——“云翼圈层CLUB”
实际上正是为高净值邻里彼此之间建立起一个自然而然的社交场景,让兴趣相投的人在这里找到彼此,成为彼此。

“云翼圈层CLUB”意味着一种稀缺资源的占有。长坡岭的万顷林海是大自然赐予城市的珍贵礼物,是悠山悅景引以为豪的身份“绿”卡。
华润置地悠山悅景可谓“得天独厚”。在长坡岭东麓的绿意深处,悠山悅景沿着山脚线打造起森林公园住区,主推建面约113㎡-131㎡瞰山高层,以及建面约137-210㎡觅山洋房两大高端住宅产品线。

洋房建筑立面采用新中式建筑风格,庄重的对称式设计,彰显建筑的尊贵感与东方礼仪,摒弃繁琐,拒绝堆砌,以简约传承真正的品质。将东方建筑精粹与现代审美糅合,呈现出东方文化中内敛和涵养的气质神韵。

高层建筑立面为现代风格,建筑形态轻盈、通透又极富时代感。超大面积落地玻璃门窗的设计,使窗外景观尽收眼底。从国际美学角度出发,将建筑美学、功能、结构与节能等因素有机统一,让城市现代感和品质感最大化体现。

作为万亿央企华润置地入驻贵阳7年的重磅力作, 悠山悅景不仅享有1075公顷长坡岭绿意,更是沿着山麓景观优势打造出独一无二的“山水和鸣”美学园林。

将项目外维的森林公园绿意,引渡到内部园林,交织出“林”、“泉”、“溪”、“花”、“草”、“径”等层级丰富的视觉系园林盛宴。
配套“亲山学堂”幼儿园和优质小学,以及“山间润街”高品质体验式商业街区,为城市高净值人群量身打造乌托邦理想般的“城市山居”。山为邻,城亦静。

让喜爱跑步的业主拥享无蚊荧光跑道,让喜爱群体运动的业主拥享户外运动领地,让有宠物的业主拥享狗*专狗**属户外活动区,让亲子家庭拥享室内与室外双重的童趣乐园,让年轻业主拥享仪式感十足的精致休闲区,让老年业主拥享符合他们生活习惯的养生活动区。每一个人都能在这里找到趣味相投的生活与社交方式。

悠山悦景位踞观山东会展金融城、双高铁站、数博大道夹合形成的黄金三角腹地,近接贵阳北站、东站双高铁站,成渝贵环线开通后,将大幅度提升悠山悦景出行及经济利好。未来贵阳森林体验教育中心建成,悠山悦景接壤长坡岭国家森林公园的地理区位,也将成为悠山悦景优享资源的筹码。

华润置地,26载匠心砥砺,足迹遍布74城,经典项目超280座;经验积淀助力观山东翼。以建面约113-131㎡瞰山高层及137-210㎡觅山洋房,致献城市理想生活。
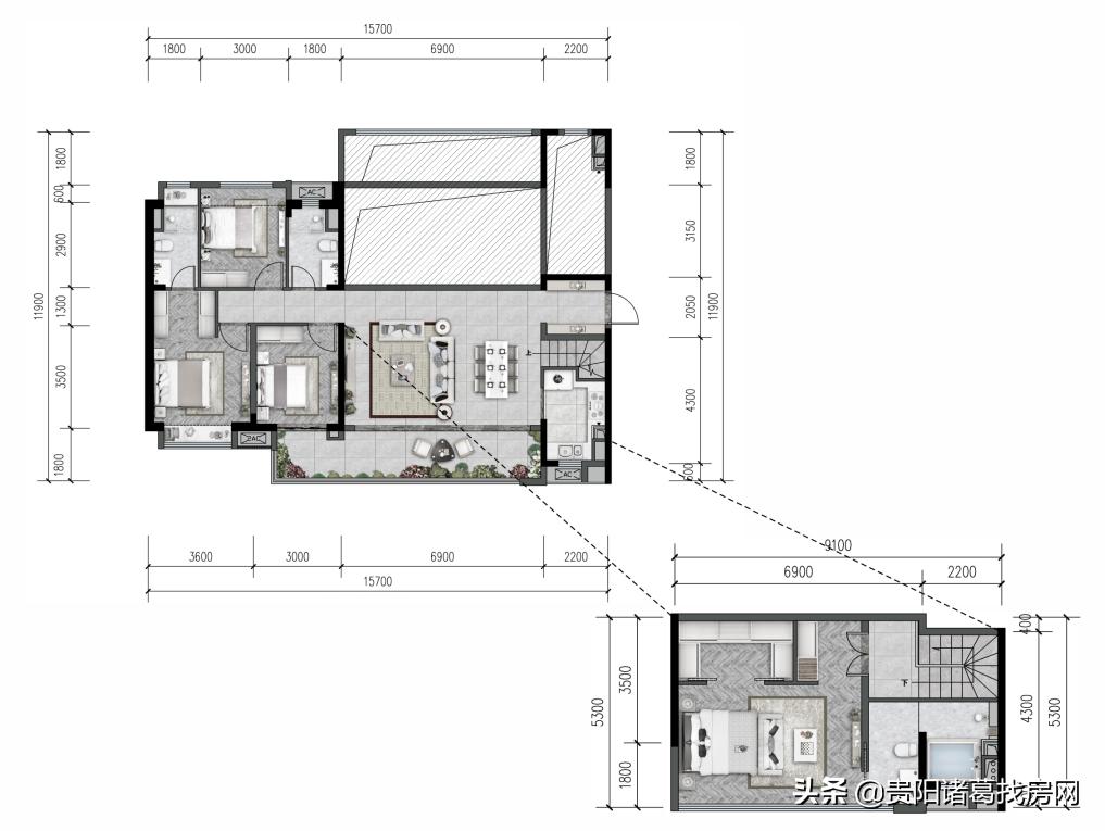
其中建面约131㎡产品,为华润置地首映贵阳的“空中跃墅”,纵观全国,只此悠山悦景所有。

约5.8米客厅挑高,可拓变多一层生活想象;约6.9米开间横厅,传统沙发区外可拥享更多功能空间,可以是孩子的钢琴区,也可以是私家品酒吧台区等;约9米豪奢景观阳台,悦享IMAX观景视线;对接长坡岭无垠绿景的场景设置,赋予美好生活以悠然诗意。