原创 布布 布说天下 今天
温馨提示
前沿的长沙楼市资讯,专业的学区房分析,必看“布说天下”!请点击上方“蓝字”关注!
长沙教育资源全国出名,家长为了孩子的教育煞费苦心,所以学区房也成了市场上的香饽饽。

网络示意图,仅供参考
学区房怎么买更稳妥?首选楼盘自建、业主可配套入学的项目。只配小学不放心,最好是小学+初中双配套。

(长沙小升初配套入学实施细则,仅供参考)
但长沙配套初中的盘仅45个左右,小学+初中双配套加起来也就十来个,仅占总数的1%不到。
因为学校稳、数量少,双配套对房价有巨大拉升作用,贵的盘基本都是这种。
目前长沙不少配套楼盘单价已破2万,总价随便两三百万,不是人人买得起。

(链家APP截图,仅供参考)
根据最新消息,洋湖片区有个明星盘配套了公立幼儿园+九年一贯制博才·建工学校,它就是建工•象山国际!
这个楼盘,将成为洋湖新的爆点,而且各方面优势都很大!

(项目规划效果图,仅供参考)
一、双配套的威力大
建工•象山国际将自建博才建工学校,包含小学+初中,不仅双配套,而且小学初中属同一品牌,优势大!

(项目规划效果图,仅供参考)
博才建工小学部由河西领先的博才教育集团全面接管和办学,采用先进教学理念和教育思维。
博才旗下有小学名校博才寄宿、博才梅溪湖等,博才建工将与这些名校共享资源。

(图片:博才梅溪湖小学,网络)
博才办初中的经验也很丰富,其与师大附中合作的师大博才本部也是长沙top公办初中。
博才建工学校初中部将由师大博才南校区统一托管。
有了博才的全面管理,各项资源对接,小学+初中“无缝衔接”,博才建工学校令人期待。

(项目规划效果图,仅供参考)
项目有公办幼儿园,门口有24小时自助图书馆,12年教育在家门口,文化氛围浓厚。
另外,项目还会组织四点半课堂等社区活动,孩子放学也有学习的地方,很赞!
有如此优越的教育配套,建工•象山国际怎能让人不爱?

(长沙图书馆象山国际分馆实景,仅供参考)
二、价格倒挂,区位真牛
建工•象山国际由中国企业500强、获113项鲁班奖、省长质量奖的大型国企:湖南建工集团开发。
建工•象山国际位于洋湖西侧,距离洋湖公园仅1公里,是洋湖西版块C位。

(项目位置示意图,仅供参考)
项目北有岳麓山+桃花岭,西有象鼻窝+观音山,南有大王山,被公园包围。
洋湖最高毛坯限价13800元/㎡,而建工•象山国际精装才10700元/㎡,倒挂5000元一平!

(洋湖限价13800地块挂牌信息,仅供参考)
项目交通方便,附近有在建的麓景路南延线,去梅溪湖很方便,预计2021年通车。
还有正在施工的梅浦联络线,可开车直通梅溪湖CBD,成为河西南北主动脉。

(图片:麓景路南延线规划效果图,仅供参考)
根据新规划,地铁11号线、13号线都将经过洋湖西,将在下一轮上报审批。
其中11号线、13号线经过建工•象山国际附近,未来有望坐拥双地铁口。

(图片:长沙地铁规划编修推荐方案,仅供参考)
项目周边学校超多,有师大博才南校、雅礼洋湖、长郡双语洋湖、南雅湘江等十几所学校,还有本科一批的湖南中医药大学。

(湖南中医药大学实景,网络)
项目东边有湖南第一家宜家,吃喝玩乐购俱全,还有洋湖水街、龙湖天街等,总体量超100万方。

(长沙宜家综合体实景,仅供参考)
想出去玩,洋湖公园、李自健美术馆、谢子龙影像艺术馆就在附近,大王山有湘江欢乐城,夏天也可以滑雪!

(长沙大王山欢乐雪域,网络)
项目附近有湖南妇女儿童医院,国际水准三甲医院,已经开诊。周边还有湖南中医药大学附属医院,即将启动建设。

(图片:湖南妇女儿童医院,网络)
三、山景新中式,档次高
建工•象山国际总建面约80万方,一期是8栋高层住宅+1.4万方商业,约1004套住宅。
项目是洋湖独有的山地,三面环山,高出象嘴路20米左右,可俯瞰洋湖湿地公园和靳江河。
据悉,象山国际已被湖南建工集团列入争创鲁班奖项目(鲁班奖是中国建筑行业工程质量的最高荣誉奖),后续还将争创广厦奖(房地产综合开发行业的最高荣誉奖)。

(项目规划效果图,仅供参考)
项目是用城市规划的理念做房地产,先有规划,做地块详细分析,再做配套。项目是组团布局,有了景观规划,再考虑建筑。
项目住宅是现代和古典的相结合风格,品质感强,让人耳目一新。商业部分与住宅立面也有呼应,不同于普通楼盘。

(项目规划效果图,仅供参考)
项目园林是新中式风格、“两轴一心一环四重入户四进院落”,以中央山体公园为中心,打造环形跑道、山水美景。
项目模拟纽约中央公园,用了大量的水景,开发商不惜成本打造舒适度高、观赏度高的景观,也是精工品质细节的体现。

(项目规划效果图,仅供参考)
建工•象山国际在售建面约119平、145平两个户型。
建面约119平户型是标准3房2厅2卫,3开间朝南,阳台大且连次卧,主卧为独立卫浴套件设计。
总的来看,这个户型很周正,有赠送面积,适合刚需家庭购买。

(户型效果图,仅供参考,以实际交付为准)
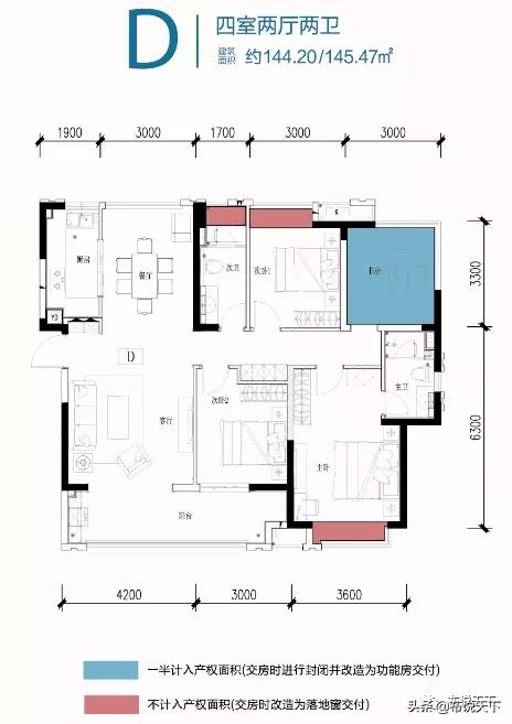
建面约145平户型是标准4房2厅2卫,南北通透,阳台长7米,通风采光不错,各方面尺度奢华。
这个户型住一大家子都不觉得挤,适合改善或二孩家庭购买。

(户型效果图,仅供参考,以实际交付为准)
一期带1.4万平米的风情block街区,有文创中心、特色餐饮、时尚休闲、精品生鲜、亲子娱乐等业态,还规划了泳池。
项目物业是国家一级资质的湖南建工七星物业,经验丰富,将带来全能呵护式的360度管家式服务。
项目为精装交付,装修标准不错,大家可以去现场看看,感受不一样。

项目样板间效果图,仅供参考,非交付标准
怎么样,建工•象山国际的教育资源、周边配套、规划品质都不错吧?
据悉,项目已完成选房,剩20余套房源,倒挂这么明显的项目,大家不要错过!