绿城人始终以品质地产自居;绿城始终是豪宅的标杆,是地产人膜拜的对象!
绿城是如何在质量方面傲视群雄的呢?今天就给大家分享绿城品质精髓:《绿城全套精装工艺、工法标准》

一.绿城实地放样工法













二.绿城屋面工艺工法


































03
三.绿城防水工程工艺工法
















04
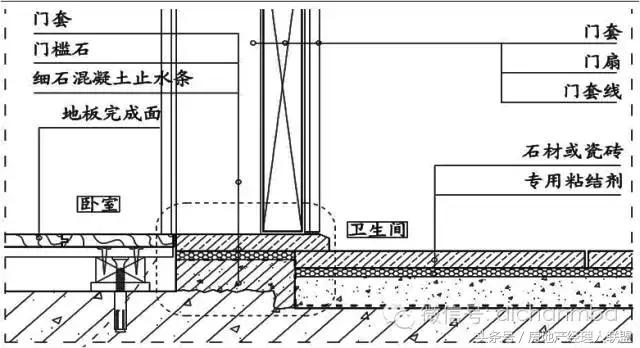
四. 绿城湿作业工程工艺工法


































05
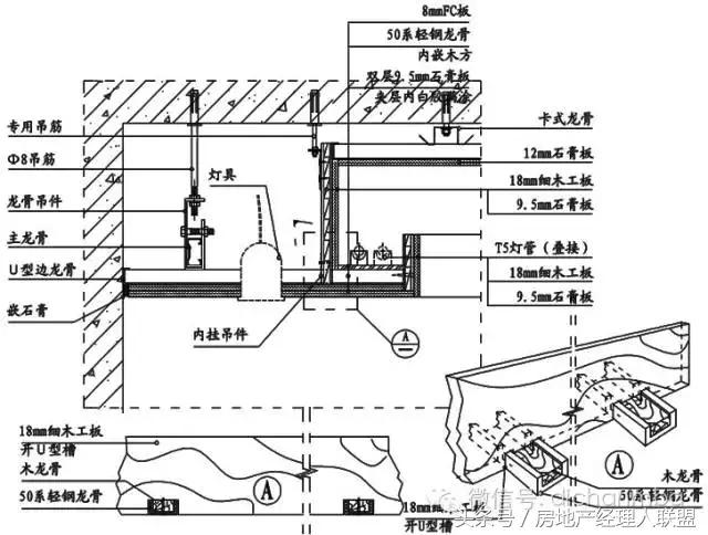
五.绿城木作业工程工艺工法


























06
六.绿城地板工程工艺工法














07
七.绿城安装工程工艺工法











08
八.抹灰工程












09
九.绿城精装经验&教训案例



















起因:
台下盆龙头选形不合理
处理方法:
台下盆龙头选形应考虑出水的角度。


处理方法:
不同颜色石材应用与石材相同颜色的胶填缝。



处理方法:
圆弧石材应工厂异形加工。






起因:
安装定位不准确。
处理方法:
须调整地漏位置至石材围边内角。


处理方法:
减小柱帽尺寸,让柱帽跟线条平齐。


1.插座应降低至踢脚线和线条中间

2.插座应抬高至踢脚线和线条中间

本期绿城精装修工艺、工法解析专题分享完毕,感谢来自绿城的网友提供原版PPT文件,也欢迎其他标杆企业投稿,地产精英学堂会给您的企业海量的正向展示机会......