在武汉,有这样一个神奇的盘,项目从拿地开始,就争议不断。拿地十年,开发商换了又换,万达、华润、华侨城这些知名房地产企业相继退出,最后由武汉本土开发商接盘。
这个楼盘我们几个月前写过,当时项目开发商与承建方出现了纠纷,处于停工停售状态(高调拿地、晒地近10年!这个盘精装改毛坯争论不断,停工数月要烂尾?)。
如今,这个项目已经重新动工,并于11月6日取得了加推的预售证,15日正式加推。它就是位于汉阳核心地段的恒韵府。
有不少粉丝也向我们咨询过汉阳的楼盘,小编便来到了项目现场,为大家打探恒韵府的实际情况。
最新动态:恒韵府10、11号楼已于11月15日开盘,目前在售约99平三房、136平四房毛坯房源,备案均价20401元/平,置业顾问透露实际均价约19500元/平。
实探情况
● 1、项目地段极其优越,户型设计却是一言难尽
● 2、项目价格在区域内有明显优势;加推楼栋一半都被抵押
● 3、开发商拿地后晒地十年,一波三折开盘后又遇停工危机
01
项目地段极其优越,户型设计却是一言难尽
恒韵府位于汉阳大道与江城大道交汇处,小编从地铁4号线五里墩站D出口出来,就到了恒韵府的营销中心和项目所在地。

(恒韵府营销中心,图片来自实拍)
营销中心内,置业顾问都坐在前台玩手机,正在看房的顾客特别少,显得特别的冷清。

(恒韵府营销中心,图片来自实拍)
一位置业顾问走上前来,向小编介绍起了项目的基本情况:
恒韵府在二环线以内,属于汉阳的核心地段。
交通方面,自驾上,项目的东面是江城大道,南面是汉阳大道,这两条都是汉阳的主干道,走江城大道向南约500m可上二环线,向北可上月湖桥,到达汉口,非常的便利。
公共交通上,项目门口就是地铁四号线的入口,还有着汉阳大道五里墩站公交站,公共出行也十分的方便。

(项目周边的主干道,图片来自实拍)

(项目门口的公交站,图片来自实拍)
商业上,项目在售楼部的位置规划了约16万方的商业综合体,项目东边隔了一条江城大道便是万科未来中心,距离项目3站地铁的范围内便是王家湾商圈和钟家湾商圈,商业配套十分齐全。

(项目规划的商业,图片来自实拍)

(万科未来中心,图片来自实拍)
教育方面,距离项目约300m有着五里墩小学,约700m有着武汉市翠微中学。不过五里墩小学的教学质量比较一般,因此项目的教育配套不算好。

(五里墩小学,图片来自实拍)
医疗方面,距离项目约1km的位置有着武汉市汉阳医院,约200m有着武汉康健妇幼医院。

(武汉市汉阳医院,图片来自实拍)

(武汉市康健妇幼医院,图片来自实拍)
据规划显示,恒韵府的住宅占地面积约4.3万方,建面约26.8万方,共11栋34-54层高层、超高层住宅,容积率为6.12,公摊约25%,绿化率约30%。目前在售的11号楼位于项目的最东边,正南北朝向。
11号楼与10号楼是连在一起的,采用的是非连廊结构,这种结构的楼栋中间户型的采光性会比较差一点。

(正在建设的10、11号楼,图片来自实拍)
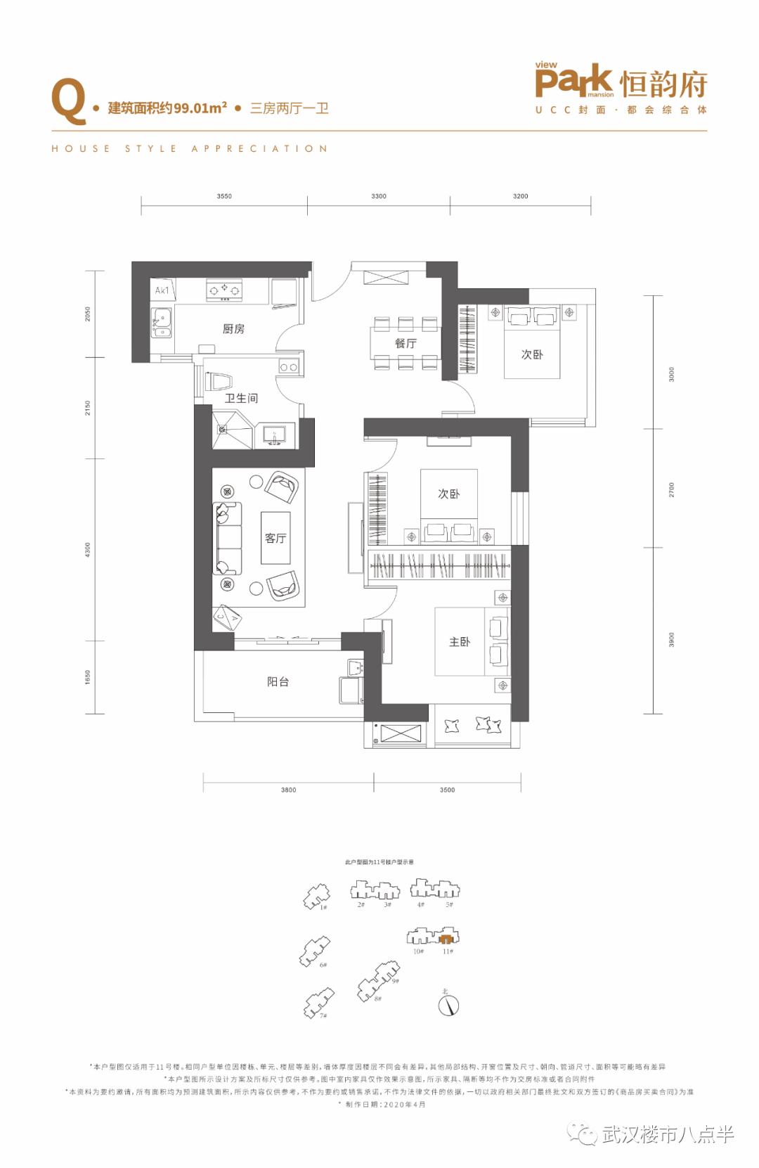
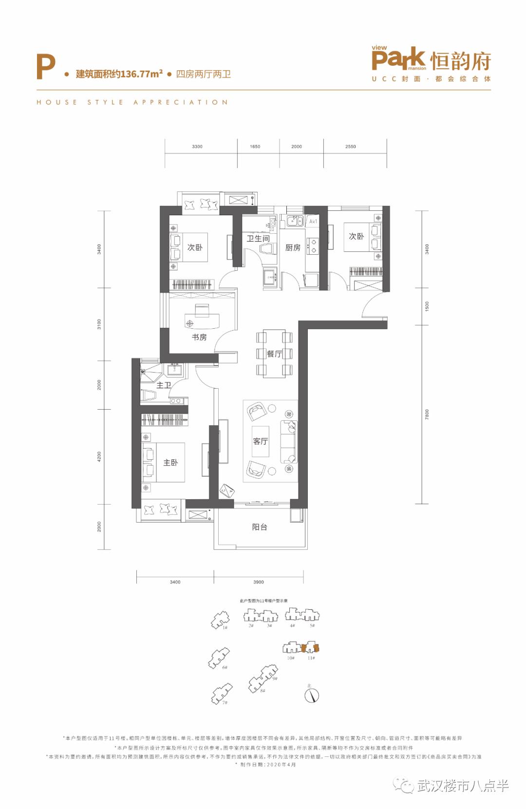
目前在售只有99平三房和136平四房两个户型。99平的三房户型作为11号楼的中间户,采光不太好,但做到了三面朝南。136平的四房户型为11号楼的边户,南北通透,采光好,但只有两面朝南。


(项目99平三房、136平四房户型图)
小编对置业顾问提出了一些疑问,为何恒韵府的房源从户型图上一眼看去全是承重墙?超高层住宅为什么没有设置避难层?东边的江城大道高架会不会有噪音影响。
置业顾问解释道,11号楼是54层超高层住宅,因此它的承重墙会多而厚;噪音影响是肯定会有的,不过高楼层会影响较小。
关于避难层的问题,置业顾问并没有给出明确的解释。

(江城大道高架与项目位置,图片来自实拍)
02
项目价格在区域内有明显优势;加推楼栋一半都被抵押
恒韵府,目前在售11号楼建面约99平三室和136平四室毛坯房源,备案均价20401元/平,置业顾问透露实际均价约19500元/平。
项目东侧的万科金域国际,带装修均价约22404元/平,万科目前是尾盘了,只剩下少量的140平户型的房源了。
项目西侧约300m的中铁金桥璟园,目前在售的83—126平的房源,毛坯均价约20300元/平。
项目北侧大约1公里的融创武汉1890,主推的建面约117、141平米房源,带装修均价约24514元/平,折后均价约22000元/平。

(项目周边的新盘情况,图片来自贝壳网)
区域内有着价格优势的恒韵府,销售情况却是十分惨淡。11月15日加推的10、11号楼,置业顾问给小编说的是10号楼已经卖完了,目前只剩下11号楼,但从房管局备案情况来看,这两栋楼有一半的房源都是抵押状态(这类房源是暂时签不了合同的),网签了的房源仅有几套,因此项目的真实销售情况有待查证。


(恒韵府抵押、网签情况,图片来自房管局)
03
开发商拿地后晒地十年,一波三折开盘后又遇停工危机
最后,再给大家简单的回顾下项目一波三折的遭遇。
2010年—2013年,中恒集团三年里共在五里墩区域拿下了四宗地块,建面超过200万方,称将打造武汉国际文化商业中心(武汉UCC)。

(中恒在五里墩的地块,图片来自网络)
结果在拿完地后的第二年,中恒集团就因资金等问题陷入困境,政府开始寻找接盘侠。

(项目进入困局,图片来自楚天金报)
2016年,中恒集团与万科集团就B地块进行签约(也就是现在的万科金域国际项目)。随后,中恒集团与华润置地签约A地块,准备建设华润万象汇项目。

(华润签约五里墩A地块,图片来自汉阳区政府网站)
可没曾想到的是,华润因集团战略发展,退出了万象汇润府的住宅开发,案名因此改为恒韵府。

(万象汇润府改名恒韵府,图片来自实拍)
恒韵府在2019年艰难开盘之后,又出了不少幺蛾子。项目首开是卖精装,均价约22000元/平,2020年1月加推又改成了卖毛坯,均价约19430元/平。
这一举动招致了前期购房业主的不满,在售楼部门口拉起了横幅,直到今年9月都还有业主在武汉城市留言板进行投诉。

(前期购房业主不满,图片来自网络)

(前期业主在武汉城市留言板上的投诉)
项目原本预计今年6月就加推10、11号楼,却因停工停售风波一直往后推迟。今年8月,项目更换了工程承包商,才得以重新动工。

(恒韵府更换工程承包商,图片来自项目公告)
综合点评: 优
1、恒韵府所在的五里墩是武汉核心区域,东西分别连接王家湾和钟家村商圈,环线位置、区域地段都非常好 2、项目周边有规划的大体量商业,周边配套很成熟,居住氛围和环境较好 3、项目位于正地铁口,周边是快速路和主干道,交通条件好 4、项目的价格在区域内有着较大优势 劣 1、教育资源一般,周边学校少,且教学质量不尽人意2、户型设计差,楼栋中间房源采光不好,承重墙多,毛坯改造空间小 3、超高层住宅未设置避难层,可能有消防隐患;临近高架,有噪音污染
4、项目名声是一大劣势,前期还遭遇停工停售风波,有购买风险