
马克·布伯说:“凡真实的人生皆是相遇。”我也期待我们的每一套作品在适合的时间与你们相遇。自然,必感恩在茫茫人海中选择我们的冯小姐和李先生,有情必能相遇。我常常把设计比为写作,两者有异曲同工之妙,都要倾听、创作、融合、贯通……SKH作为一个作品的撰写者,首先要做的就是倾听。倾听这对80后小夫妻的相遇,生活喜好,工作经历以及赤手空拳在这个城市打拼的不易等等。感谢你们让我们走进你们的生活及精神领域,让这套作品拉开了美好的序幕,没有过多的干涉,让我们尽情的书写和创作!
做这套方案的时候一直在徘徊和犹豫,因为要把原本的硬装缺陷弥补并不容易,很多很多的不合理并且我们无法去改变,这就是精装修收房后的遗憾。怎样在有限的资金链里合理的让他更出彩,着实让我们费了一番功夫……

原始照片

一层平面图

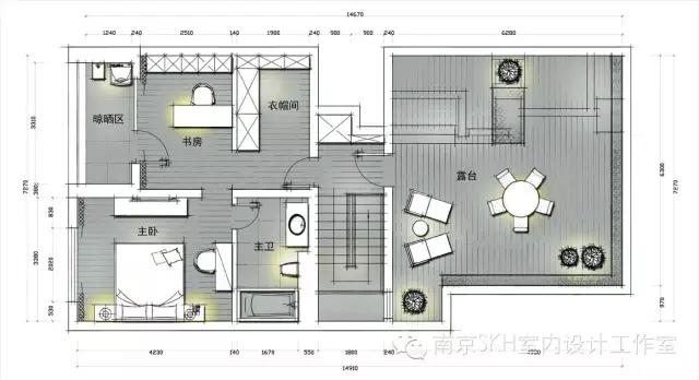
二层平面图
骋望骊都的作品,现代感强,并晕染了丝丝的中式文化……















项目地址:骋望骊都
设计公司:南京SKH室内设计工作室
整体软装:南京SKH室内设计工作室
摄影师: 裴宁
建筑面积:222平方米 (四房两厅两卫)
合作方式:全程托管
赠:在路上的每一个设计人(改编自丁雄泉先生1970年家书)
我假想明天就要死去,
今天我把一切我所喜爱的事情,
欢喜吃的,欢喜爱的,都真诚去吃,去爱,去画心中想出来的图画,
果然明天死掉了,也没有什么遗恨难过,
明天不死,再来一次,
这样你更能发挥出你的潜意识的能力及生命灿烂更似艳阳天。
「 观享际SKH 简介 」

南京观享际 SKH室内设计 成立于2008年,是一家拥有资深背景、年轻、前卫的设计师团队,引进了国际流行设计的室内设计管理新理念,其专注于别墅、私人宅院、办公空间、展厅等。设计和施工及全程整体托管模式,拥有优质设计施工团队及配套高端材料资源,包括前期概念、施工图深化、效果图、现场施工负责、软装配饰等。从事装饰行业17年期间,累计全国近二十个城市500套装修设计案例,一直坚持个性化的装饰设计,追求时代化的创新意识,工作室正以适合自身、适应时代的前所未有的持续发展态势在装饰业界不断发展。在特色观念的鼓舞下,工作室力争在装饰设计作出自身个性,与其他企业形成差异化。独特的构思和强大的设计后盾创建了鲜明的品牌形象及良好口碑。

ANTECHAMBER|前厅▲

WAITING|等待区▲

INTERNATIONAL|VIP室▲


CONFERENCE|会议室▲


OFFICE|办公区▲

RELAX|健身区▲
南京观享际 SKH设计团队主要致力于,针对不同客户对空间审美诉求给予最准确的量身定制式设计服务,每完成一整套设计,凸显它价值的最大衡量标准就是它的唯一性和不可替代性;当客户觉得“非你不可”的时候,你的设计的可贵才由此体现,不论是“小小蜗居”还是“豪华别墅”。由客户需求出发进行设计细节到家中每一个成员的生活习惯及方式,才能造就独一无二的、获得客户肯定的设计,通过作品展现的是SKH设计团队对设计创意的执着追求,每个设计作品的命名都代表一段与人文有关的故事