美式风格有着欧罗巴的奢侈与贵气,但又结合了美洲大陆这块水土的不羁,这样结合的结果是剔除了许多羁绊,但又能找寻文化根基的新的怀旧、贵气加大气而又不失自在与随意的风格。美式家居风格的这些元素也正好迎合了时下的文化资产者对生活方式的需求,即:有文化感、有贵气感,还不能缺乏自在感与情调感。
今天小编给大家带来一套为石家庄易水龙脉业主254平户型做的新美式风格设计,希望大家喜欢!
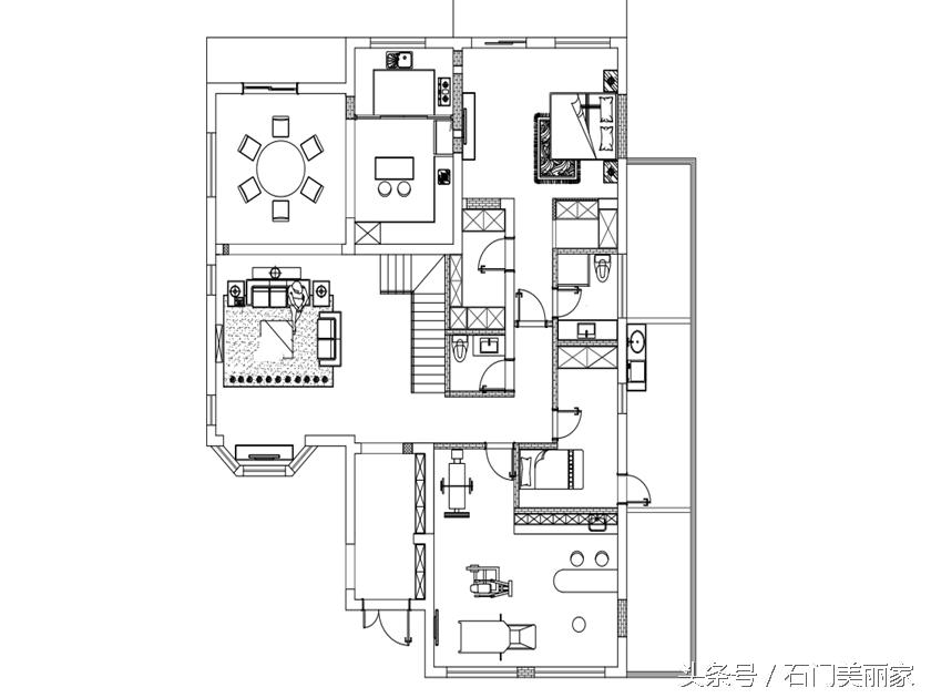
国际惯例平面图奉上:易水龙脉254平户型案例平面布置图
设计理念:美式风格多引用在别墅,会所和酒店的工程项目中。一般这类工程通过美式风格来体现一种高贵,奢华,大气等感觉。
客厅设计效果-易水龙脉254平户型-别墅装修设计-美式风格效果
设计理念:
金黄色和棕色的配饰衬托出古典家具的高贵与优雅,赋予古典美感的窗帘和地毯、造型古朴的吊灯使整个空间看起来赋予韵律感且大方典雅。
客厅设计效果-易水龙脉254平户型-别墅装修设计-美式风格效果
设计理念:
整个空间给人以开放、宽容的非凡气度,让人丝毫不显局促。
客厅设计效果-易水龙脉254平户型-别墅装修设计-美式风格效果
设计理念:
在造型上极其讲究,给人的感觉端庄典雅、高贵华丽,具有浓厚的文化气息。

餐厅设计效果-易水龙脉254平户型-别墅装修设计-美式风格效果
设计理念:壁炉作为居室中心,美式吊扇呼应,突出整体风格特点。
餐厅设计效果-易水龙脉254平户型-别墅装修设计-美式风格效果
设计理念:
在材质上,一般采用樱桃木,胡桃木等高档实木,表现出高贵典雅的贵族气质。
厨房设计效果-易水龙脉254平户型-别墅装修设计-美式风格效果
设计理念:
厨房清爽简单,与整体保持一致。
今日案例展示完毕,喜欢小编的作品就多多支持哦,有不足的地方多多交流,欢迎大家积极评论^--^ 小主们有想看自己小区户型的效果案例也可以多多留言或者加小编微信15354414230(长按可复制),添加微信可提供免费量房、验房、出平面方案希望能给小主们带来帮助!