

iColor设计名家新案例
你想要什么样的家?
精致都市丽人想要莫兰迪系高级精致的空间;
勤快有条理的生活达人想要实用有格调的厨房;
钢铁宅男想要充满科技感的影音室;
迪士尼在逃公主想要粉粉嫩嫩的小天地;
文艺青年想要时光可以静静流淌的书房……
......
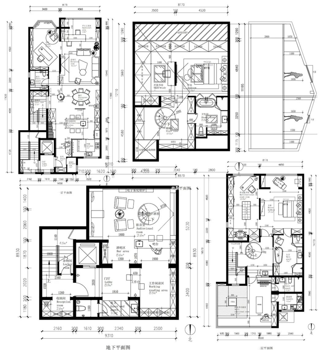
设计师孙谱淳的华贸城铂金墅项目,460平别墅空间,漫溯逐光,你想要的全都有。


▲一层门厅

▲一层客厅
客厅是一个室内空间的主要空间。
顶面采用法式与现代的结合,简单的法式雕花加上时尚感很强的黑色凹槽灯条,让古典与时尚相结合,搭配中融入少量Art deco元素,形成一种混搭又不混乱的状态。
拱形元素也是强调以古典为主的设计风格。

▲一层餐厅
好的设计首先要满足其基本的功能需求,装饰材料是空间设计实现的物质基础,灯光是空间的灵魂,软装配饰则是美丽的衣裳。
本案提倡人性化设计和实用性,在有限空间内达到可行的利用力,拥有洁净舒适的日常环境。

▲一层厨房
世间万物,唯有美食与爱不可辜负。
厨房设计是以简约为主的,在简单宽敞的空间中我们可以尽情享受制作美食的过程,同时在顶面采用少量法式雕花作为装饰,使空间更有古典风味,不那么单调。
中厨隔断形成一个空间划分,透明门折射窗外光线,让空间显得更加明亮宽敞。

▲一层书房
书房空间70%都是以法式古典为主的,从硬装到软装,设计师更偏向以美为主,达到视觉上的满足。
雕花、拱形门等元素更是体现出浓烈的古典精致感,但并不是完全倾向于古典美,在空间中也融入了现代风格经典的点线面元素。
初进空间被浓浓的法式风情吸引,体会片刻又会为精致的现代设计而惊喜。

▲一楼楼梯间
整个楼梯间以珊瑚粉为主色调,饱和度低,颜色不鲜亮,却自带高级感;
珊瑚粉降低空间鲜艳度,仿佛蒙了一层灰调,再搭配黑白装饰画,整个空间画面感很强,相互制约,互相抵消,让视觉达到完美平衡,带给人平和自持、舒缓雅致又略显冷静的感觉。
楼梯边的凹槽灯带使空间更有层次感,时尚感。

▲二层楼梯间
不同于一层楼梯间,二层楼梯间需要起到过渡效果。
黑白拼花的地砖表现出现代与古典相结合的美感,墙上的黑白装饰画与地面相呼应,形成空间感,旋转楼梯的延伸感使空间拉长。
像一场梦境,打开一扇门便是另一幅美景。

▲二层主卧
简单的线条、美的倾诉,刻画一幅幅精彩的作品,让休憩的片刻也有着动人的故事与对话。
卧室,是忙碌一天最想念的地方,用简单的石膏线和少许雕花形成背景墙装饰,在表现风格的同时,有着筑起浪漫与温馨的可能,无处不在表达一种庄重与别致,让思想与精神寻找一种寄托。
软装方面选用以舒适感艺术美感相结合,让空间每一处角落每一个单品都是艺术。

▲二层衣帽间

▲二层主卫

▲二层和室
简单线条,让居室整体看起来干净利落,没有什么家具,可以席地而坐,在小空间里如鱼得水。
运用大量天然材料,既给人回归自然的感觉,又不会有对人体有害的物质,有一侧通面玻璃,更好地采光。风格完整,一室多用,搭配一些软装配饰,可以更好地体现空间氛围和文化。

▲阁楼楼梯间
阁楼楼梯间用熟悉的珊瑚粉为主色调,搭配抽象艺术画,显得格外活泼。
玻璃护栏是现在比较流行的烟灰色,让空间提升现代感,尤其因为空间多用浅色调,也可以通过烟灰色将空间整体下压,体现空间感。
收纳衣柜用同一材质造型一体化,将通往卫生间的门融入其中,是空间一体化,也可以隐藏隐私衣物。

▲阁楼卧室
“想整个周末都在这个房间里,想窝在被窝里看书,想坐在地踏上看电影…”
卧室整体透着一股慵懒的气息,从松软的床榻到细节的配饰,无一不彰显着休闲舒适,在空间中多用“线”以及“金属”元素,一方面有现代时尚感,另一方面可以让空间有层次感。

▲三层卧室及书房

▲三层卫生间

▲地下室收纳间

▲地下室门厅

▲地下影音室
将现代元素中运用Art deco风格,柜子颜色用砖红色亮光漆,使用内嵌式冰箱,空间整体化,
墙面幕布采用透声幕布,让幕布以固定形式存在,提升观影体验。沙发后的墙面采用迭木造型,更为时尚。
人们总是向着有光的方向奔跑可能因为光代表了幸福,而家是我们心中的光,不断追求关于空间美的探索是一个没有终点的风景,因为光从来没有变,她一直在等你……
——iColor设计名家孙谱淳
追逐梦想的思绪,体验空间的融合。
从经典到未来,愿时光停驻,迷离黄昏逐光浪漫。
