
该住宅位于乌克兰基辅一栋建筑的机房内。今天和大家一起来到乌克兰参观一下这套最近完成顶层公寓的改建,高高的天花板和金属窗框贯穿整个公寓,具有现代工业主题风格,备受现代年轻人的喜欢,简约粗暴的设计手法,展现处工业风格的独特美丽的同时又不失美感。话不多说一起来来看看这套工业风格的新房装修设计效果吧!

我们可以很直观的看到室内用料都有那些?诸如木材,混凝土,玻璃和不锈钢之类的材料已被用于创造出彰显工业设计的内饰,同时也创造出舒适的内饰。大面积的落地开窗设计给整个空间带来了足够的采光度,使得室内的更加的通透明亮起来。

新房的主要的活动社交圈都是被设计成了开放式的,甚至还设有DJ娱乐区。这样不拘俗的空间布局,把原本较小的独立空间的重厨房、餐厅的区域有了更多的活动空间出来。

DJ架子旁是带不锈钢橱柜的厨房,该橱柜与钢制天花板相得益彰。厨房的布局一贯采用的是开放式设计,一字型的厨房灶台和厨房岛屿平行设计,上面安排了水槽和洗菜槽,增大了灶台上的操作空间。

餐桌设有木顶和钢制底座,与整个顶层公寓的地板和其他钢制元素紧密结合。钢制加上木质元素的的搭配,刚柔并进的动线完美的展现了出来了。

主卧与钢制玻璃墙隔开,与公寓的社交区隔开。钢镶板覆盖了床对面的墙壁,而倾斜的天花板则被玻璃框所突出。卧室的主色调与客厅上的装修主色调保持了一致,黑灰色的低调内敛是工业分的常用基色。整个的卧室的环境也别营造出一种安静舒适的感觉。使我们一觉睡到自然醒!

浴室套间高高地落在平台上,落地窗和玻璃淋浴环尽收眼底。不必担浴室的个人隐私问题,但需要时,也可以拉开窗帘,确保自身的隐私得到了保护。

还有一间客卧,位于新房的对面。它配有两张床,这间卧室主要是给来家里做客的亲朋好友提供的住所。空间虽然不失很大但是四面都是采用的玻璃框架做为隔断,可完美的欣赏城市美景。

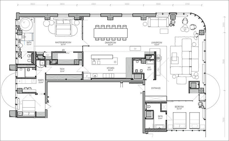
最后附上新房布局的平面图,希望能够帮助到大家。

笔者觉得工业风外表没那么华丽高贵但是简约实用而且还散发着独特的自然气息和简约朴实的原始美感!这样的工业风格的新房装修设计大家觉得怎么样呢?希望能够在这篇文章中学习到更多的装修设计灵感。最后谢谢大家看完!