今天分享一套“刀把型”小户型的改造案例,房屋使用面积46平米,厨房很小,怎么放下女主的烘焙小厨电是个问题;卧室需要释放一部分的空间,为女主人练瑜伽提供场地。

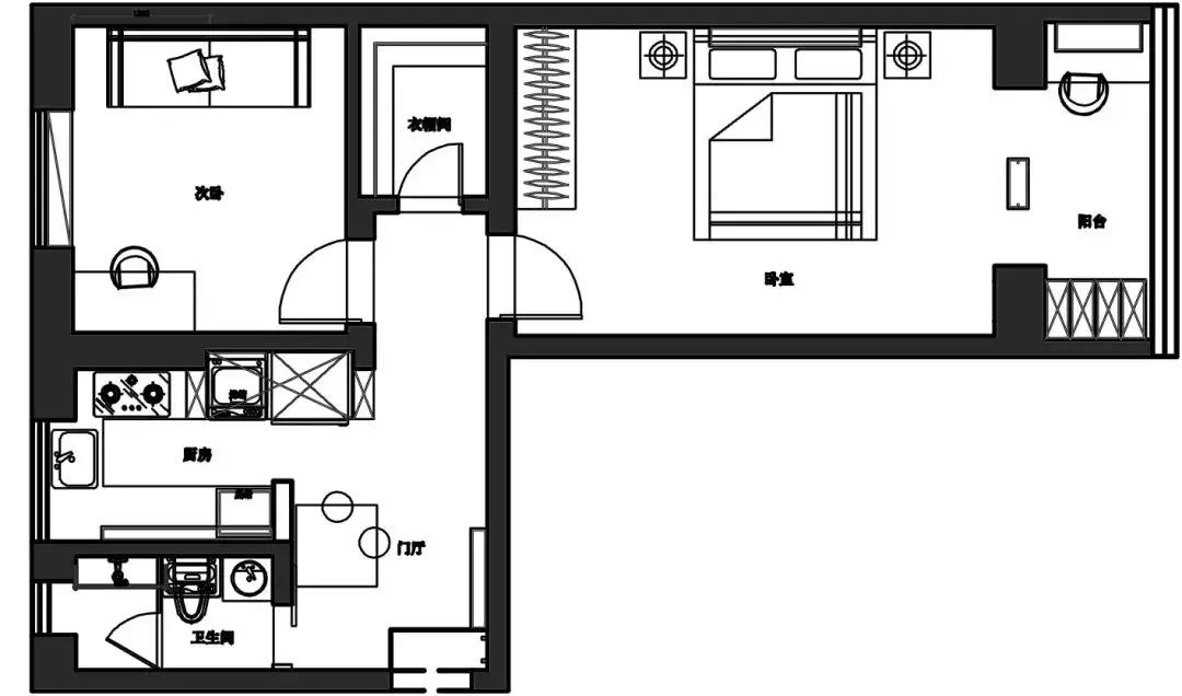
▲ 原始户型图
所以这次重点改造的几个地方:
1. 厨房墙体打薄,设计U型布局,将厨电嵌入。
2. 卫生间隔出一个淋浴间。
3. 原次卧也是一个小型的“刀把”结构,将其中的一部分分隔出来,改造成衣帽间。

▲ 平面布局图
入 户

宜家的这个超薄鞋柜很适合又小又窄的玄关,满足基本的鞋物收纳需求。鞋柜旁还藏了个镜柜,整理衣物、收纳、遮挡电表箱的功能一齐承包了!

餐 厅

餐厅设置在靠厨房门一侧的墙面,一进家,就可以看到打着温暖灯光的餐桌。过道另一侧用白色与蓝色漆来丰富墙面,几何形状的花器不规则地装饰在墙上,随心又浪漫。


厨 房

这个U型厨房算是精打细算“抠”出来的,墙体改造后,大件的冰箱、洗衣机,小到烤箱、微波炉,都能严丝合缝嵌入其中。




烤箱两边的高拉篮将各种干粮与调料有序排列,任何食材在需要的时候都可以在最快的时间内找到。

▲ 洞洞板、置物架都可以帮助厨房用品有序上墙
卧 室


与入户的清新感相比,卧室的配色更趋于温柔、安静。

次 卧

户型中原本的次卧,改造成小客厅,承包家里会客+休闲的功能。原本被用来放置暖气的地方用定制柜子补齐,因此又GET到了一个隐形储物区。



▲ 原次卧部分改造的小型衣帽间
卫 生 间

卫生间原来的暖气拆除了,释放出一个独立的淋浴空间,装上推拉门,相当于做了简单的干湿分离。

原来的柱式洗手台,也换成了带浴室柜收纳的一体设计。