在北京能有套自己的房子,是很多人的梦想。房子不需要很大,重要的是能和家人在一起。下班回到家,有孩子的欢声笑语,有父母的唠叨,这就是家的感觉吧。这次分享的是一套小户型装修,套内不到50㎡的面积,需要满足六口人居住需求,装修结果会是如何呢?一起看看完工效果吧!(主案设计:北京七巧天工设计)

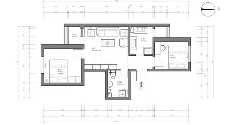
原始平面图,户型分析:
1、入户正对厨房门,没有多余的空间摆放鞋柜;
2、厨房紧凑空间利用率不高,洗切炒动线不流畅,使用非常不方便;
3、卧室空间都很紧凑,摆放成品家具会显得很拥挤;
4、卫生间布局不合理,花洒正对洗衣机,没有防护措施存在安全隐患。

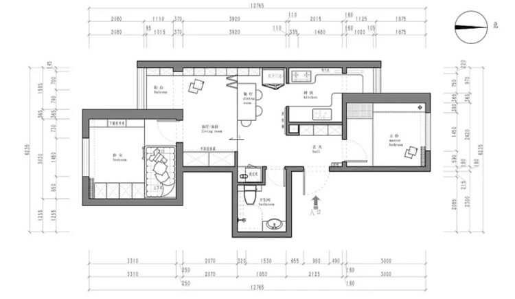
装修布置图,改造分析:
1、改变厨房进门方向,在玄关新增一组嵌入式玄关鞋柜提升收纳;
2、厨房改变进门方向后,重新布局空间设计U型橱柜,提升收纳与动线流畅;
3、卧室考虑到面积太小,采用榻榻米定制提高空间利用率;
4、卫生间重新布局,拆改加固墙体。同时将洗衣机外移,扩大空间减少安全隐患;
5、客厅重新分割空间,做了12cm高的地台,满足席地而坐的学习需求。另一半则铺地砖,当作餐厅使用。

入户进门,一改之前正对厨房门的尴尬局面,新增一组嵌入式玄关鞋柜,白色与木色结合简约舒适,隐藏照明设计,暖色的灯光居家增添温馨气息。鞋柜采用不落地式,提高日常实用性,局部开放式设计,用于摆放随身小物件,又避免视觉呆板。

地面小花砖一直延伸到餐厅、厨房,日常清洁更加便利。进门通道尽头,利用两幅装饰画简单装饰墙面,增添一些文艺范,空间又不会过于单调。

客厅变成了多功能区,兼具互动、书房和用餐等功能。客厅局部做了12cm高的实木地台,无形当中分割了空间,又不影响空间宽敞与通透。地台为小朋友提供了舒适的活动空间,地台外的空间则用小花砖通铺,水渍污渍都比较好清理。

屋主夫妻喜好阅读,孩子也受到熏陶非常喜爱阅读,于是客厅设计了通高储物柜变成书墙。柜子半开放式设计,利用白色、明黄和湖蓝撞色,整体显得比较明快有活力。柜子每一层高度不同,用于摆放不同规格的书籍。


简易造型的餐桌,白色混搭原木清新简约。可伸缩式设计满足不同的需求,可从1.2m伸长到1.6m,使用起来很方便。

客厅视角,整体以白色为主,提高视觉明亮缓解小户型带来的压抑,辅佐木色增加温度与舒适感,让家变得明亮又温馨。照明上除了餐厅外,均采用无主灯设计,高度统一整体更美观。餐厅组合式吊灯设计,用来照亮餐桌上的食物,让它变得更加诱人。

书墙的对立面,设计了一组进深55cm的衣柜,提高居家收纳能力。无门把手设计,大面积白色辅佐木色线条感,让衣柜变得平整美观。衣柜右上角预留了投影幕布的电源,为日后安装投影仪做准备。


改造后卫生间门右侧设计一组嵌入式高柜,用于收纳和摆放洗衣机。洗衣机采用隐藏布置,提高美观与安全性。内部右侧木板包住卫生间马桶下水主管道,整体抬高铺地砖,改善下水提升洗衣机稳定性。


厨房改变原有布局,设计U型橱柜,靠灶台一侧橱柜一直延伸到窗台,扩宽操作台提升收纳空间。没有过门石隔断空间,小花砖由入户进门一直延伸到厨房,整体效果更加统一。


北侧主卧室,空间比较小舍弃了成品家具,改成了榻榻米床的形式,长宽规格为2m*2.1m提高空间利用率。床头做了25cm厚的靠背,中空设计可以收纳,设置了三扇推拉门方便日常使用。榻榻米床侧面做了三个大抽屉,用于收纳生活用品。利用剩余空间定制通高衣柜,弥补主卧收纳不足。


南边卧室较大规划成儿童房和长辈房。给两个小朋友做的是上下床形式,宽度1.2m刚好布置在角落位置。女方父母居住空间则以榻榻米形式实现,长宽规格为2.4*2.1m,高度与上下床下铺一致,方便小孩与大人互动。既能照顾到小孩,又有各自独立的空间。


调整布局后的卫生间,干净整洁安全。马桶更换成了壁挂式马桶,没有卫生死角。利用入墙水箱上方空间,安装了壁挂式洗衣机,用于洗小朋友的衣物。浴室柜和镜柜结合,弥补卫生间收纳不足。空间不宽敞舍弃硬体隔断,选择浴帘提高空间灵活。
看完案例不得不说,设计师太重要了。套内不到50㎡的面积,满足一家六口居住需求,还不缺收纳。配色也很自然,整个空间简约舒适,房虽小却处处透露着家的温馨。