郑州房产在之前的推文中多次强调,郑州主城区缺的是地块,但不缺新项目。
2020年主城区不少纯新盘计划入市,其中改善产品还占据主流,让不少购房者心动不已。

同样经开老城区也不甘示弱,随着中原福塔北边保利天汇和华润置地凯旋门两个项目入市日期的不断逼近,不少购房者对其充满了兴趣(购买的渴望)。
那么今天拆姐儿就给大家聊聊经开老城区。

整个经开区位于郑州西南部,按照郑州发展的趋势来看,这里是符合城市发展方向的。
背靠郑州三环,向东开封,向南港区。
除了位置上占据有利优势,在政策上经开区也有河南自贸区、郑州跨境电商综试区、郑洛新国家自主创新示范区、等6区叠加的战略优势。
目前,经开区最大的问题其实有三个:
1、老城区工厂多,居住环境较差
2、大型商业欠缺,商业配套匮乏
3、教育资源依然比较落后,缺乏优质教育资源

但是,随着经开区的发展,不少规划也在改变。比如周边的工厂正在*迁拆**改造中,居住氛围逐渐向好。
虽然这种变化是缓慢的,局部的,但它是切实发生的。
今日看房项目
1、保利天汇
2、华润置地凯旋门
2020年1月8日,郑州迎来开年首拍,位于经开老城区的24/25/26号地集体竞拍出让。

最终,3宗地均以高于50%溢价的熔断价成交,保利22亿元斩获24、25号地,华润16.5亿元斩获26号地,成交综合房价分别为19549元/㎡、19322元/㎡与19712元/㎡。
保利天汇,24号地,容积率2.99,折合楼面价9776元每平,综合房价19549元每平。
保利天汇,24号地,容积率2.99,折合楼面价9798元每平,综合房价19322元每平。
华润置地凯旋门,容积率2.99,折合楼面价9782元每平,综合房价19712元每平。
这也就意味着,两个项目基本上近似于共享了周边的交通和大环境,以及所谓的配套,最终比拼的就是三者之间的内功修炼和更直接的价格控制。
两个项目在一起,那就先来看看交通:

作为老城区,周边道路网完善且密集。南北分别是航海路和陇海快速路都与机场高速相连。

经北六路与中州大道相连,后期自驾不管是通往市区还是外地,都非常方便。

公共交通方面,南边航海路有已经通车的地铁5号线,沿着已经修好的传媒路,最近的站点中原福塔站与华润置地凯旋门实际距离约1.7公里,与保利天汇北地块实际距离约1公里。
在建的地铁4号线货站街站距离华润置地凯旋门直线距离约800米,但步行过去需要翻越中州大道和陇海路,实际距离只远不近。
至于商业,跑远一点还是很丰富的:
商业的短板,正在逐渐的弥补当中。
10分钟车程内有富田*阳城太**购物广场、福都生活广场、凯德广场、近期开业的万锦城,附近两公里内还有丹尼斯超市和七里河市场,其次沿中州大道向北三公里即是CBD商圈。

除了周边配套商业,两个项目社区内部也都配套有部分商业。并且保利天汇南部还规划有3个商业地块,未来商业配套还会持续完善。
至于教育主要依靠后期规划,医疗资源齐全:
华润置地凯旋门社区配套有幼儿园,保利天汇西侧配建有一所公立小学及一所6班制的幼儿园,后期接送孩子非常方便。
项目周边分布有朝凤路小学,经开外国语小学,郑州市第十一中学,外国语女子中学等。
医疗方面,附近有郑州市第七人民医院,中医骨伤病医院,郑州友谊医院等。
重点放最后,那就是环境:
标题已经强调,双河交汇的位置,环境自然不会太差。

目前十七里河正在治理当中,西边的世纪欢乐园后期会改造成市政公园。

滨河公园
航海路南侧还有滨河公园、尚岗杨遗址公园以及航海体育场,后期散步、打球都有地方可去。
两个项目所处具体位置:

保利天汇
工地现状:

项目信息:

预计单价:19500元/㎡
装修情况:成品房
户型建面:98/125/142㎡
所在区域:经开区
绿化率:30%
容积率:2.99
车位比:1:1.2
梯户比:2T4户
物业公司:保利物业
项目位置:郑州市航海东路中原福塔北300米
项目动态:

保利天汇总占地约110亩,整体分为保利天汇居和保利天汇庭两期开发,共规划17栋高层,规划总户数为1788户。
项目预计7月12日首开北地块4/6/7号楼,主要户型面积为98/125/142㎡,均为一梯两户设计。
目前的认筹交2万定金开盘享1个点优惠,无首付分期政策。
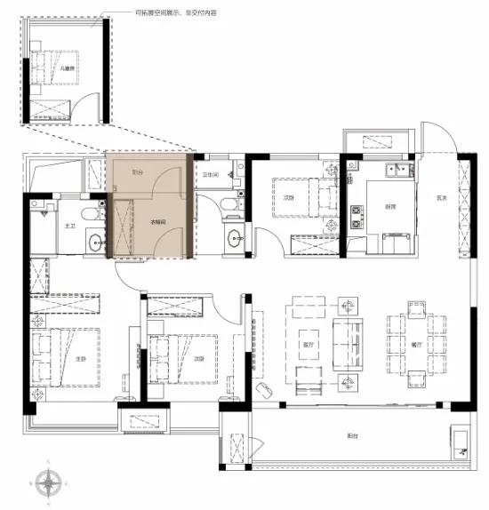
户型鉴赏:

98平

124平

140平

141平
保利天汇户型赠送面积是其一大特色,均为三开间朝南,大阳台设计。
功能布局合理,通透性不错,居住舒适度较高,整体来看没有硬伤。
拆姐儿点评:
保利天汇是保利产品系中的天字系产品,定位较高端,楼间距大概在40-45米左右,楼顶顶部以玻璃幕墙设计。

航海路与机场高速、中州大道连接处
交通方面保利天汇距离地铁更近一些,距离规划中的教育地块更近。高速与项目之间虽然有绿化带相隔,但选择的时候依然建议避开西侧楼栋。
产品方面也没的说,不愧是央企品牌,户型设计无硬伤,并且赠送面积较多,当然价格也会相对高一些。
华润置地凯旋门
工地现状:

项目信息:

预计单价:17500-20000元/㎡
装修情况:成品房
户型建面:89/102/123/143平
所在区域:经开区
绿化率:32%
容积率:2.99
车位比:1:1
梯户比:1梯2户;3梯6户;2梯2户
物业公司:华润物业
项目位置:中州大道陇海路向南300米
项目动态:

华润置地凯旋门总占地约84亩,规划了12栋25F-27F高层住宅,总户数1516户,停车位:1561辆。
项目预计7月18日首开2#、5#、6#楼栋,2#楼栋主要是89平三房,一梯两户;5#楼有102平、123平户型,三梯六户;6#楼栋主要是143平户型,两梯两户。
目前项目正在排号,两万抵四万,户型越大价格越高,预计2023年初交房。
户型鉴赏:

89平

102平

143平
整体来看户型设计不错,大多为三开间朝南,通透性较好。
另外,北向阳台后期可以封起来,南向都有阳台或者飘窗,赠送面积较多。
拆姐儿点评:
项目北侧有铁路,距离地块约100米,选择的时候可以尽量避开北侧楼栋。
交通方面距离地铁较远,自驾出行比较方便。东西两侧双河环绕,生态环境不错。
项目成品房交付,赠送有地暖、可视对讲等,没有新风系统。产品方面有89平小三房,社区改善属性不够纯粹。

很多购房者在这两个项目之间纠结,不知道选择哪一个较好。
综合来说,两个项目周边的配套基本都是共享状态,交通便利,生态环境优越。
具体来看,保利天汇距离地铁和规划中的学校更近,产品方面更加纯粹一些;缺点是地块相对较小,不利于景观组团的规划。
而华润置地凯旋门地块素质以及周边环境相对更好一些,缺点是北侧有铁路影响,产品不够纯粹。
最终,两个项目如何选择还是要看价格,结合个人需求选择最适合自己的项目。