郑州两款真实住宅实景效果对比,142平四室两厅美式乡村设计,260平别墅简欧风格设计,一位大师,真实的设计想法。
装修方式:半包+个性化
装修风格:美式乡村
小区户型:142平四室两厅保利永威西溪花园
装修造价:20万
设计师 :陶建梅

玄关样板间

客厅

餐厅效果

客餐厅效果

儿童房

平方面户型布局

玩耍区
装修方式:半包+个性化
装修风格:简欧风格
小区户型:260平别墅洞林湖新田城
装修造价:29万
设计师 :陶建梅

玄关样板间

客厅

电视背景墙

餐厅效果图

儿童玩耍区

厨房

2楼公共休闲区

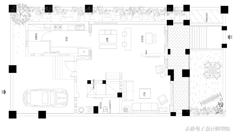
户型不方案

老人房
您喜欢这样风格装修,或者其他风格装修都可咨询:136-7365-7122 可加微信
套餐模式更省事,省钱。
服务范围:河南,北京,上海,杭州,湖州,合肥,福州,江门,济南