2017年屋主hu晗准备买房的时候,正好遇上成都房价上涨,业主哄抢;新楼盘只卖给能付全款的客户,连进售楼部都需要检验资格。
预算有限,hu晗只好去找二手房源,好不容易找到这套三环内、双地铁、学区好、价格还合适的房子,立马决定就是它了。
hu晗自己就是设计师,亲自设计和拆改,完成了自己理想中的家。
独立设计师:hu晗
户型:两室一厅一厨一卫
使用面积:76㎡
花费:20万元
位置:四川 成都
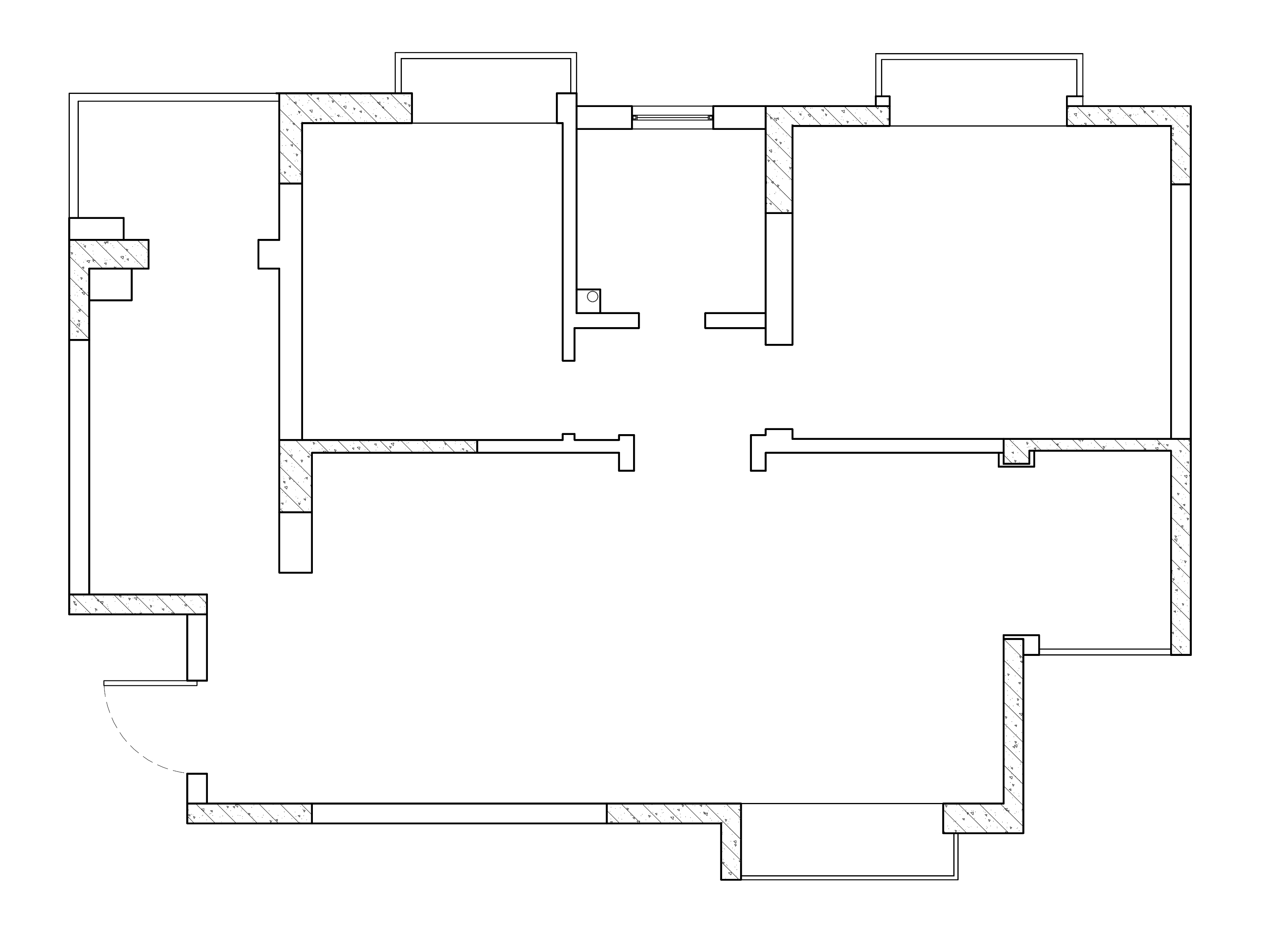
原始户型是比较方正传统的两室一厅,客厅朝南,卧室朝北。
但玄关、餐厅、客厅和阳台,共处一个狭长的空间,动线比较单一,每个房间的窗户也不能很好的对流。
除此之外,卫生间的面积小,干湿不分区,使用起来很不方便。

原始户型图

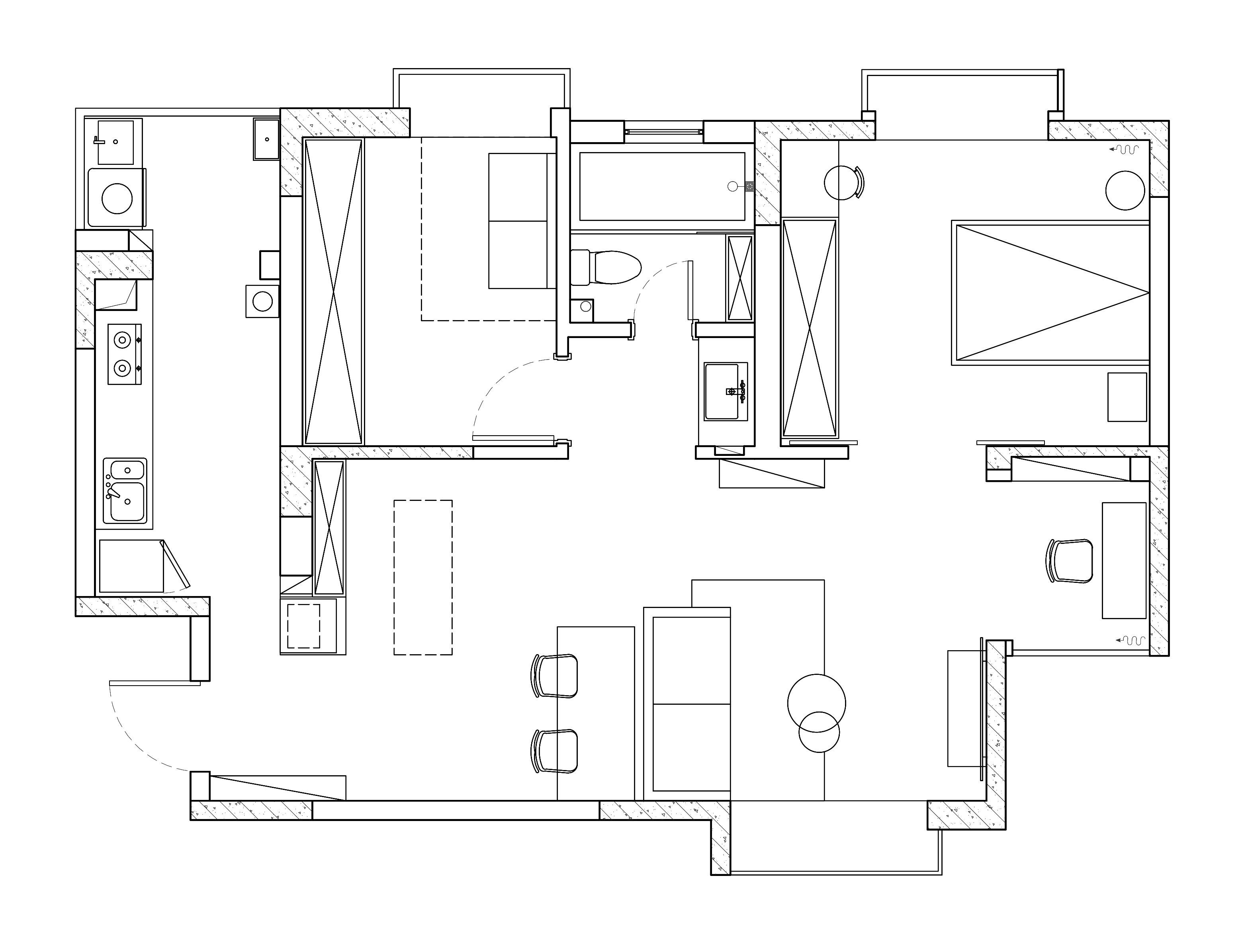
平面布置图
改造后的家,卧室的开门方向改变,白天打开卧室门,空气对流,南北通透;之前的卧室门封成墙面,为背后的卫生间匀出了洗漱区的位置,实现了干湿分离。
阳台改造成了书房,阳光充足又舒适。
玄关
玄关区域的门和墙面都刷成统一的深色,在视觉上就进行了功能分区,增强了回家的仪式感。

蓝色有设计感的单椅放在玄关,空间的趣味性增加,进门就有惊喜。
黑色的铁艺超薄鞋柜,简约的外形设计时尚百搭,足够日常换鞋需要;悬挂在墙面上,不占地面空间,也避免了清洁死角。

玄关右侧的明亮厨房与玄关形成对比,进门的包包、钥匙等零碎物件,可以随手放置在右侧的台面上。

厨房
改造前的厨房储物不够,阳台和走道堆满杂物,收纳也比较凌乱;整个空间的颜色比较暗沉,很容易显得油腻和脏。

改造前
改造后的厨房,橱柜、墙面和地面统一为整洁的白色,也显得空间更大。
因为下厨比较少,所以厨房的预算hu晗比较克制,并没有买很多厨房小电器。

改造后
地柜预留了洗碗机和垃圾处理器的位置及水电,之后如果需要,还能随时方便安装。

厨房的一角是宜家的夫洛亚厨房推车,储物量大,增加了厨房的操作台面。
抽屉用来收纳细碎的杂物,下方开放式的储物架,可以用来放常温储存的蔬菜,带滑轮移动也很方便。

家里的电器都是基本款,烤箱和微波炉放在玄关处的柜体之中,假装“内嵌式”。
上方高度不一的储物格,收纳小物件非常实用。

阳台
厨房的尽头是生活阳台,落地窗让阳台和厨房的采光变得很好。
LG洗烘一体的洗衣机,搭配的洗衣机一体柜,附带洗手池方便手洗衣物。
墙面空间也不能浪费,安装衣架整理挂件,实用又不占空间。

餐厅
客餐厅一体,是家里面积最大的区域,改造之前家具都朝同一方向摆放,过道变得更加狭长。
餐厅的储物没有做好,导致所有的杂物不得不放在外面。

改造前
玄关增加了通顶储物柜之后,上方放不常拿取的物品,下方成为收纳充足的换季鞋柜,跟玄关墙面和谐的成为一个整体。

改造后
设计独特的换衣镜靠墙摆放,正对的空闲区域,是hu晗特意保留的瑜伽区。

区别于传统的餐厅布置,餐桌餐椅布置在沙发的背后。
平时还可以用作办公区域,抬头看电视,跟坐在沙发上的家人也能更好的互动。

两把昌迪加尔椅藤编椅,经典的设计简约耐看。
规则秩序的餐椅搭配不规则的白色餐桌,再加上极具造型感和线条感的壁灯,简单的布置都能随手拍出画报的感觉。

全身镜反射出餐厅一角,目之所及都是规则与不规则形状的冲击,hu晗喜欢的也正是这种随性的轻松感。

客厅
之前的客厅装修,是十多年前装修公司最流行的欧式风格,红木地板+奢华吊灯,妥妥的土豪感。
三件套大沙发、靠墙装饰画和厚重的窗帘遮挡住了飘窗的光线;阳台的假山和鱼池,也让整个空间在视觉上变得更加拥挤。

改造前
墙面耐看的灰色是佐敦的1024,同一视角的改造图立马就能看出高下,朝南的大飘窗和原来阳台的落地窗,阳光撒进来舒适又放松。
改变布局方向,沙发不用靠墙放,不受遮挡的飘窗台让客厅看起来更加宽敞。
客厅安装了风管机,价格跟空调柜机差不多,但更节省空间,也更美观。

改造后
hu晗把电视机放在拱门一侧的墙面上,正对着沙发和餐桌,看起来不费劲;挂墙的电视抽屉柜,方便收纳小物件,也没有落地柜的厚重感。
下午阳光透过百叶窗的缝隙,再躺在地毯和懒人沙发上,宅家的幸福感油然而生。

客厅的灯光是无主灯设计,全靠明装筒灯和射灯照明,餐区和沙发之间的壁灯,既是餐厅灯,也是客厅阅读灯。
地毯、沙发和坐垫形成了一个休闲娱乐区,朋友来了可以随意的围坐起来。

zarahome的灰色做旧地毯,不容易显脏,短绒材质也方便日常清理。

放在地毯上的镜面茶几成为空间的吸睛小家具,能看出hu晗对细节的精心设计。
黑色丝绒材质的沙发,把空间里的颜色沉下来,光照下的反光,也让它也不会显得过于沉闷。
靠背可以放下做沙发床,橘色的抱枕增添了一抹亮色。

书房
原来的阳台改造成了书房,餐厅、客厅和书房成为连贯的开放式空间,视线超级开阔;弧形的门洞增加空间趣味感,书房的球形灯也与门洞相呼应。
宜家的利萨伯书桌,45cm宽的桌面刚好放下电脑,小户型必备。
搭配宜家的隆菲尔椅,纤细轻巧,虽然比不上电竞椅的舒适感,但放在这个空间就是很合适。

书房是家里采光最好的地方,最适合用来读书和办公,亚麻的纱帘避免了阳光直晒,微风一吹,是夏天的感觉没错了!

靠墙一侧的墙搁板是hu晗在淘宝上买的原木搁板,然后自己用剩下的墙漆,刷成了统一的颜色。

将来有了孩子,hu晗打算把书房改造成游戏树屋,增加高架床,下方空间可以用来孩子玩耍,上层空间可以作为备用床。

主卧
原来的主卧被1.8米的豪华大床充满后,就没法再放下衣柜储物;窗户正对的墙面,晚上关窗睡觉,空气不流通也不舒适。

改造前
开门方向改变后,换成了白色的双开推拉门,像隐藏门一样,无论是半开半闭,还是全部打开都可以,仪式感满满。


双推门高250cm,宽145cm,全部打开后,卧室、客厅和书房相连,形成一个开放式的大区域。

家里只有两人居住,所以对卧室隐私性的要求不高,平时打开卧室门,客厅飘窗和卧室飘窗空气对流,增强了采光和通风。

卧室的灰绿色墙漆是佐敦7628,温柔的颜色让人一进入卧室就放松下来。
飘窗的窗户换成隔音玻璃,瞬间缓解了临街的噪音干扰。
墙角是智米的新风机,实用性和性价比还不错,需要关窗的时候,就靠它循环室内空气。

床头的吊灯,玻璃质感提升角落的精致度,充满艺术感的裸女边几,小小的不占太多空间,也给卧室增加了情调。

另一侧的床头,是藤编的床头柜,搭配出复古典雅的气息。

针织棉的床品,冬天盖起来柔软又温暖,在冬天不易晾晒的时候,烘干也不会那么容易皱。

实木百叶+亚麻纱帘+天然石材的飘窗台面,不用过多的装饰,靠不同材质的组合搭配,就能看出设计师的功力。

本来想用宜家的帕克斯衣柜,但帕克斯的尺寸是固定的,没办法定制成顶天立地的衣柜。
最后hu晗参考帕克斯的设计,按照宜家的尺寸定制衣柜,就能方便之后使用宜家的收纳配件。

梳妆台是定制衣柜里凹进去的一块,柜体顶上安装了感应灯,解决了采光差的问题。
化妆镜旁边的小台灯,保证化妆的时候,亮度充足且均匀。

梳妆台上方的搁板刚好用来放书、包包和帽子,一目了然,拿取方便,包包和帽子也不容易因为挤压和长期悬挂变形。

梳妆台第一层是带格子的薄抽屉,专门用来收纳耳环、项链、U盘、丝巾一类容易丢失的小物件。

常用的化妆品放在抽屉里,需要的时候随手拉开就能使用,不用全放在桌面上,显得杂乱。

桌面上的小台灯和祖母绿托盘,在发挥使用功能的同时,也提升了这一角的颜值。

卫生间
改造前的卫生间,马桶正对着洗手池,不方便使用;小小的空间里挤下了浴缸,却没有任何收纳空间。

改造前
改造成干湿分离之后,容易杂乱的洗漱区,从卫生间往外挪,空间更好的利用起来。
卫生间门安装了长虹玻璃,加了绷纱,增加了洗漱区的透光效果,充满了温柔的感觉。

从客厅能看到的干区墙面保持干净,对面隐藏的墙面做壁龛收纳,实用性和颜值双重保证。
不规则的浴室镜真的很好看,对于台上盆难清洁的固有认识,hu晗觉得保持日常的清洁就没什么问题,如果没有好的收纳和清洁习惯,台下盆一样很难保持干净。
浴室柜里装了小厨宝,开水即热,下方的吊柜正好放下扫地机器人。

推门进入卫生间,之前狭窄的视野一下子开阔起来,白色的百叶窗增添了干净整洁的气质。

门后的区域做了通顶的收纳柜,下方悬空的部分方便放拖鞋,中间的开放格可以放换洗的衣物。
储物能力也很惊人,囤下了卫生纸、消毒液、沐浴液、备用毛巾等等卫生用品,疫情期间都没有用到三分之一。

智能马桶是成都本地的品牌帝王洁具,使用感还不错,跟电热毛巾架和喷枪一起,被hu晗称为“浴室小确幸三剑客”。

hu晗自己动手改造的家,充满了阳光、微风、舒适和细节处的小精致,赋予了家更美的样子和对未来的期待。
如果你还想了解更多实用家居/装修相关的精彩内容,点击头像马上关注我,让我帮你将复杂的事简单化,让你的家变得更美更舒适。
【注:本篇文章是住范儿原创,抄袭侵权者后果自负。】