济南龙湖新东站tod天街招商 (新东站龙湖tod综合体)

公示期限:2021年9月3日-----规划核实结束

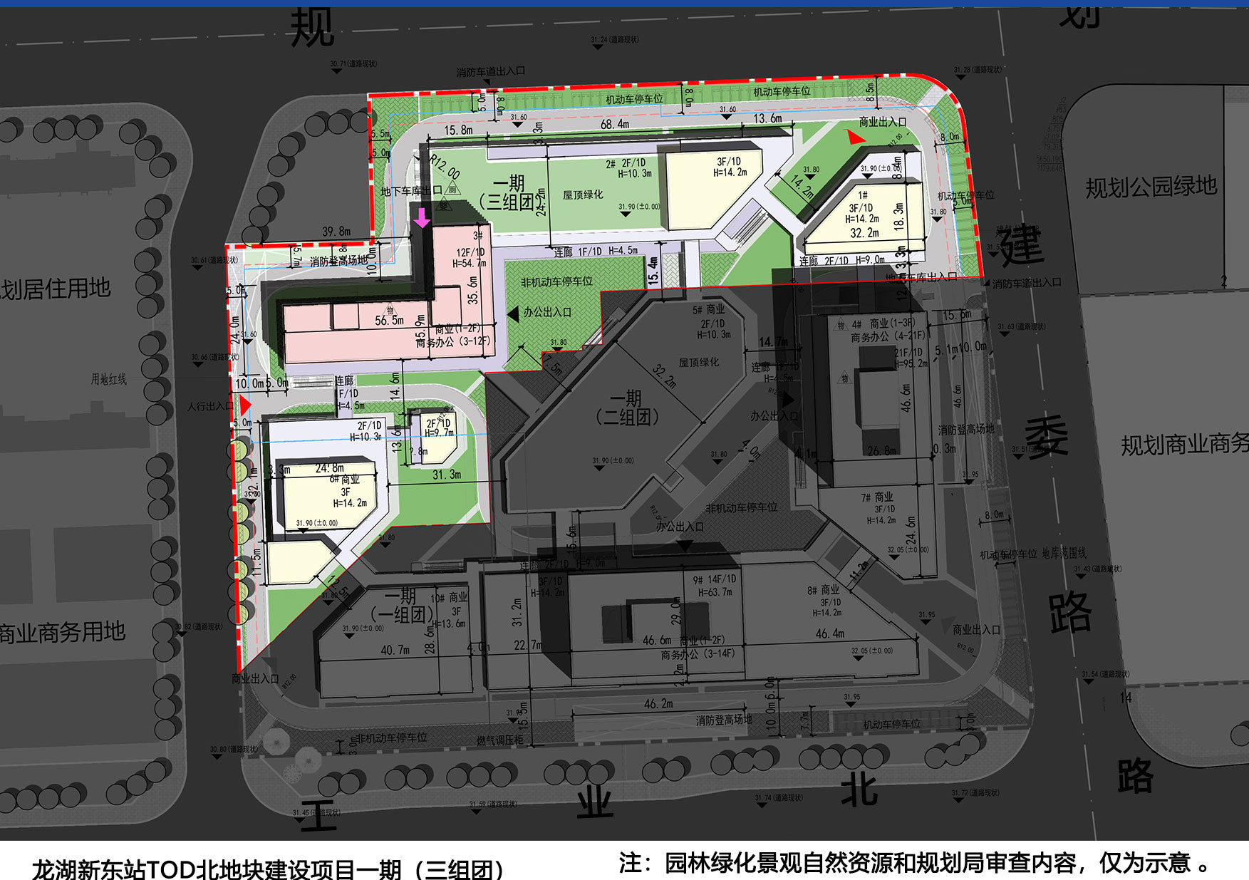
项目名称:龙湖新东站TOD北地块建设项目一期(三组团)

建设单位:济南泰鸿房地产开发有限公司

设计单位:四川洲宇建筑设计股份有限公司

建设地点:历城区凤凰路以西,工业北路北侧

济南龙湖tod项目施工单位,济南历城区龙湖地块

济南龙湖tod项目施工单位,济南历城区龙湖地块

济南龙湖tod项目施工单位,济南历城区龙湖地块

济南龙湖tod项目施工单位,济南历城区龙湖地块

济南龙湖tod项目施工单位,济南历城区龙湖地块

济南龙湖tod项目施工单位,济南历城区龙湖地块

济南龙湖tod项目施工单位,济南历城区龙湖地块