
案例信息
项目地址:戈雅公寓
空间性质:住宅空间
项目面积:180㎡
项目风格: 现代轻奢
项目户型:三室两厅一厨两卫
设计师:恒彩装饰·设计总监 邱洋

它以高品质、设计感、舒适、简约为风格特点,现代轻奢风格是一种极致简约风格,但是它比极致简约风格更注重品质和设计感,向人们透露着生活本真的自然和纯粹。造型简洁,无过多的装饰,推崇科学合理的构造工艺,重视发挥材料的性能。
——风格解析
客厅
客厅空间采用中性色作为主色调,棕咖色皮质沙发搭配同色系窗帘,形成整个空间配色主导色。横平竖直的线条交错,构成硬朗立体的家居空间。黑色金属框顶灯和家具的修饰,让空间更加富有阳刚之力。




利用客厅阳台空间打造休闲区,两边的落地储物柜既满足了收纳功能,还能起到很好的空间隔断作用。一张小茶桌,便能成为消遣茶余饭后的休闲空间。



餐厅
餐厅空间与客厅空间没有明显的隔断,让视野更加开阔。线条简单流畅的餐桌椅搭配个性十足的几何图形吊灯,半开式餐边柜若隐若现的杯具以及花饰十分养眼,打造了美貌与质感并存的餐厅空间。




主卧
卧室空间选用灰蓝色作为主导色,灰蓝色的墙面搭配白色吊顶及石膏走线,层次分明,形成良好的视觉效果。同色系成套布艺搭配让空间色彩更加和谐,浅色的家具在整个蓝灰色的空间里显得格外突出,自成风景。




次卧
次卧空间在色彩上简单干净,选择白色作为主色,浅灰色主墙面结合材质质感提升家居空间品质,白色的家具以金色金属边修饰,简单,高贵。



客卧
客卧空间以浅色搭配高级灰,纯色的大面积使用令空间更加干净清爽。


厨房
L型厨房空间十分大气,修长的台面空间为烹饪提供了足够的活动空间,同时更有一种大家的气派。浅色的搭配清爽明朗,让空间更加通透。

卫生间
卫生间空间采用浅色,长方形矩形状的空间更加有利于功能性区分,更加符合生活习惯,提升住户体验感。


原始结构图

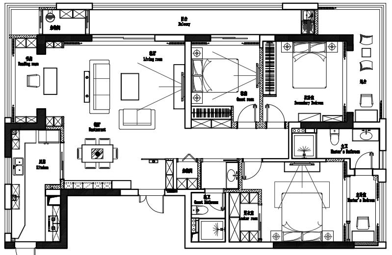
平面布置图

未经允许用作商业转载
或者其他用途保留法律追究责任
the end