今天的案例讲的是位于通州的紫峰九院城
话不多说进入正题~

房屋情况
项目地址:北京市 通州区 紫峰九院城
项目面积:140平(建筑面积)
装饰风格:现代简约
目前情况:已经完工,家具已进场
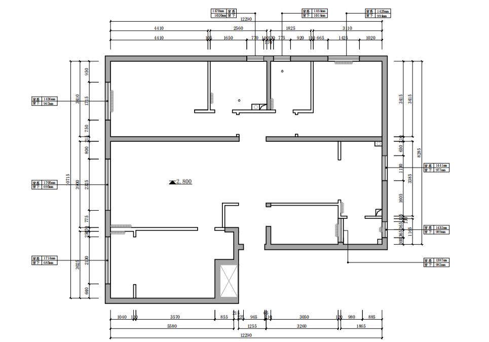
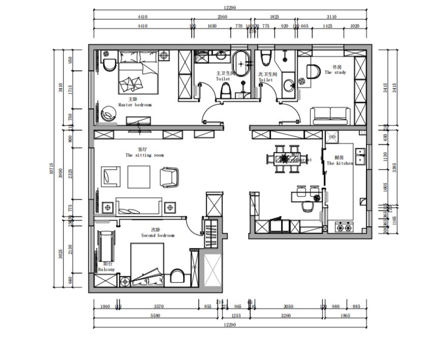
原始户型&平面布置方案


首先带大家看看原始户型与平面布置方案
室内墙体的主要变动集中在玄关与餐厅
玄关左侧的墙体重建,打造了一个大的玄关柜
餐厅旁的墙体拆除,制作了一片吧台
效果图展示

效果图中,室内颜色主要采用了黑色与白色的搭配
电视背景墙做收纳
客厅

客厅的电视背景墙改变了原来的白色,选择更加活跃一些的蓝色
餐厅

餐边柜确保了足够的收纳

客厅&餐厅总览


室内的造型都是严格按照设计效果做的,连鱼缸的效果都做了出来
颜色使用上比设计更活跃
卧室

室内是三室,上图展示的是次卧
卫生间

主卫生间具有马桶、洗漱、洗衣、淋浴和泡澡的功能
家里如果想用智能马桶记得要提前沟通预留电位哦
次卫生间

次卫具有马桶、洗漱、淋浴的功能
目前该项目已经验收,家具已经入场
业主对于装饰效果很满意
公众号:北都国际装饰
听说关注的人还有机会享受免费量房、设计与报价呢
