本案设计师风采

王琳
案例简介 Case description
In the address of the project: hong central plaza
项目地址:中弘中央广场
The project area: 141 square meters
项目面积:141平方米
The address of the project: luoyang
项目地址:洛阳
Decoration company: los spring decoration group
装饰公司:洛泉装饰集团
Design style: a minimalist
设计风格:极简
Location: Henan Luoyang
地点:河南洛阳
Chief designer: WANG LIN
设计师:王琳
wood product customization Import wallpaper etc.
設計說明:
Design specification
对于家,每个人都有不同的定义,我们可以从其「形」与「意」来理解。
从「形」来说,人、光线及空间结构在叠合交错与流动下形成家的空间形态。因构成元素的不同,便会开展出独特的生活故事。家的设计,不需太多人为的赘述和安排,仅需去整合基本必需的组件,以最真诚简单的语汇去诠释它,让它朴实自然地表达出一种纯粹的居住空间与表情。
就「意」而言,人们对家带有许多精神层面的期待,包括舒适性的要求、想像的满足,以及心灵情感的依附。这个案件,我们尽量减少工程物料量的使用、简化材质的种类,例如用一块原木、地砖,以最少的材料完成一个设计。同时,也创造高比例的留白空间。
简/减化是我们设计的核心理念,设计不应该比它所需要的还复杂。
洛阳洛泉装饰集团中弘中央广场141平方现代简约设计案例赏析

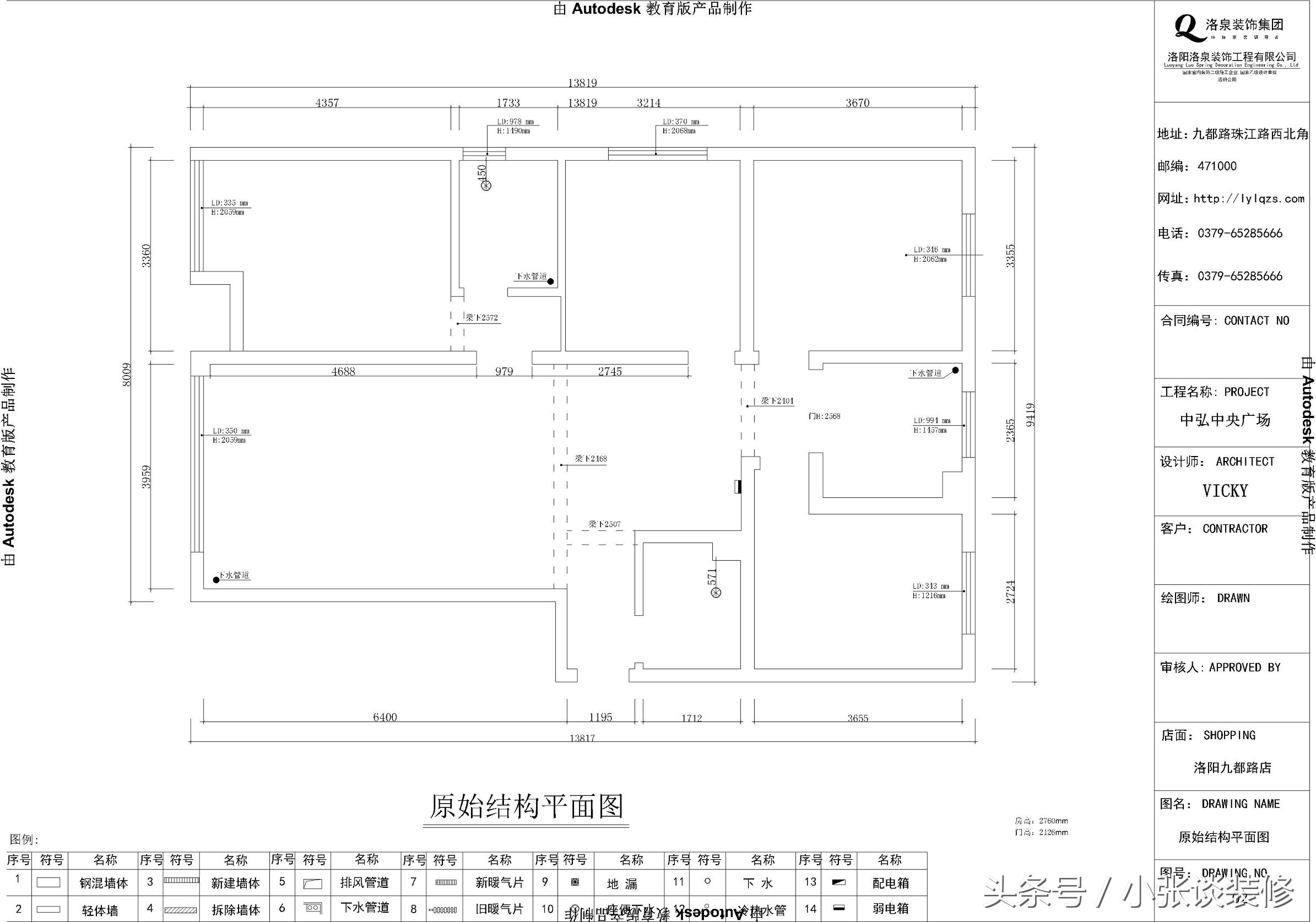
原始图

平面图

过道

沙发背景墙

客厅

餐厅

餐厅背景墙

电视背景墙

书柜
喜欢就关注洛泉小张吧,每天都会有不同小区的案例分享,还有更多小区不同风格的实景案例~~欢迎吐槽评论···洛泉装饰只为品质生活,做一户装修,交一户朋友,努力让您更感动。来洛泉找小张享受“三免服务”免费量房,免费出方案,免费出预算,还有更多优惠惊喜。