
项目名称:公寓37
项目地点:中国 上海
建筑面积:37平米
易盖房区域设计机构:上海米凹工作室
项目负责人:周雄
设计团队:许曦文、杜米力
摄影师:鲁哈哈
被称为“老公房”的、以工人新村的形态建造起来的住宅,是目前上海居民主要居住场所之一。

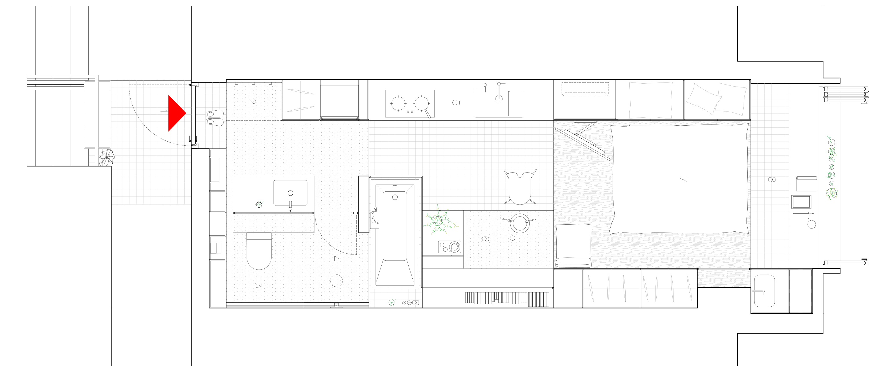
改造项目是上海老公房式的小公寓,面积不足40平方米,狭长的南北走向,由北面进入。

在尊重既有室内空间的前提下,让旧公寓在改造之后,能满足现代社会人们对使用功能的要求。

公寓位于顶层,人在室内能看见公寓楼前杉树的顶部。而杉树便是此次设计构思的起源。

窗户被设计成折叠状,自右向左完全推开后,长方形的洞口使目力所及的景象定格为一幅画。

共有四个空间,但功能并不作为划分空间的依据,不同区域之间也不设立墙、门作为隔断。

地面和屋顶的高度变化、不同材料的使用,表达了空间的特质,又拉长了行进活动中的距离感。

好比在一处院落中,从一进行至二进,行至三进……而那幅“杉树之美”始终贯穿其中。

家具变得更像建筑。地板、台面、桌椅、床、储物柜等使用不同材料,其功能也可得到扩展。

浴缸紧挨书桌,中间仅用透明玻璃隔开。这样的设计大胆、新奇、前卫。

在不可变的小空间里,人的活动自由可变。

实景图片

可折叠的窗户,增加了室内通风面积,更利用室内通风,保持干燥。

简洁的“书房”空间,可以办公,可以阅读,可以游戏,可以发呆。

开敞的洗浴空间,家里一个人居住更自在,更方便。

明亮的卧室,让居住者生活体验更好。

木质材料恬淡自然,原木色直接裸露,搭配纯白色的大床,更加让人想睡觉。

卫浴空间线条干净利落,居住者更加舒心,使用也开心,打扫起来也方便。

厨房简约、时尚,既可以做一些简单的西餐,也可以做一些传统的中餐,不用担心有那么多油烟,现在的抽风机都非常有力,快速抽光油烟。

大面积的镜子让空间明亮 、宽敞,也可以自己拍照使用。

空间通透,明亮,啊,我也好想搬进去住,太完美了。