京姐评房:北京亦庄中海京叁号院楼盘的问题答疑

最近京姐带一个三胎家庭去看亦庄附近的房子,京姐就带他去了中海京叁号院,男主和女主都很喜欢这个楼盘,今天这篇文章京姐就带大家详细测评了解一下这个项目。

请问京姐 中海京叁号院》 小区是哪个开发商?

答:中海京叁号院的开发商是中海地产

#买房# #房地产#

京姐评房:北京亦庄中海京叁号院楼盘的问题答疑

请问京姐 《中海京叁号院》怎么样值得买吗?京姐觉得能买吗?

答:中海京叁号院这个项目京姐认为无论是从开发商的实力和位置、配套、户型来看都是值得购买的,京姐认为能买。

请问京姐 《中海京叁号院》销量不佳是真的吗?(为什么卖的不好)

答:这个问题有小伙伴问京姐,但是具京姐了解消息不属实,实际好的户型已经售罄了,这个项目绝对不愁卖。

请问京姐 《中海京叁号院》营销中心有哪些样板间可以看?

答:样板间开放 240平 酒店风 168平 新中式,看房需要通过文章底部作者处跟京姐预约,不然售楼处的小姐姐是不接待的。

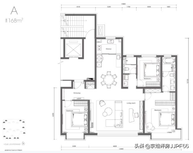
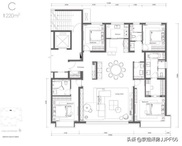
请问京姐《中海京叁号院》有哪些户型,有户型图可以看吗?最好的户型是哪个?(户型分析)

答:京姐认为最好的户型是240平大四居

【户型图】

·168㎡户型:3+1四面宽6.6米大宽厅,眼镜户型打造两代人居私密空间

京姐评房:北京亦庄中海京叁号院楼盘的问题答疑

·200㎡户型:4+1四面宽40平米MAX巨厅,双套房

京姐评房:北京亦庄中海京叁号院楼盘的问题答疑

·220㎡户型:4+1四面宽·十字双洄游眼镜户型,全年龄层奢享空间

京姐评房:北京亦庄中海京叁号院楼盘的问题答疑

·240㎡户型:4+1四面宽·主卧双洄游户型,超大边厅,尺度彰显身份

京姐评房:北京亦庄中海京叁号院楼盘的问题答疑

请问京姐 《中海京叁号院》的优缺点有哪些?卖点是什么?

答:

优点卖点:

1.最大楼间距能达到 140 米,每栋一个单元两梯两户

2.LDK一体式墅质巨厅,追求极致空间黄金分割原则,各空间尺度均优于分割标准

3.会客厅面宽6m起,极致视野尊享阳光

4.国际顶豪标准,100㎡超大边厅,270°采光

5.超大主卧套,面宽最高达七米,双洄游设计,五星级奢华

6.园林设计参考纽约中央公园打造外部高纵深围合,内部空间营造的设计理念,打造现代多层次折叠的园区

缺点:京姐认为这个项目的最大缺点就是总价过高,不适合刚需家庭。

京姐评房:北京亦庄中海京叁号院楼盘的问题答疑

请问京姐《中海京叁号院》的开盘价是多少钱一平米?什么价位?

答:中海京叁号院的开盘价是 72000 -75000/平

请问京姐 《中海京叁号院》项目的最新消息进展

答:由于项目进展时时更新,可以通过京姐的头像或名字问京姐。

请问京姐 《中海京叁号院》总价是多少钱?

答:168㎡三室两厅两卫 总价1200-1300W

200㎡四室两厅三卫 总价 1450-1500 W

220㎡四居两厅三卫 售罄 总价 1585-1650 W

240㎡四居两厅三卫 总价 1730-1800 W

复式 总价 3000-3600 W

京姐评房:北京亦庄中海京叁号院楼盘的问题答疑

请问京姐 《中海京叁号院》的配套学区分析?属于哪个学区?

答:北京二中亦庄分校50米、亦庄实验中学50米、人大附经开学校500米、亦庄实验小学500米、亦庄五幼500米、第二中心幼儿园500米、中芯国际幼儿园700米、中芯国际小学1公里、耀华国际幼儿园2.5公里等

请问京姐 《中海京叁号院》的封顶和竣工时间是什么时候?

答:《中海京叁号院》的封顶和竣工时间京姐需要问一下开发商那边,交房时间预计2023年底。

请问京姐 《中海京叁号院》的周边商业设施规划

答:16.3万龙湖天街(规划中)一路之隔,5分钟到达上海沙龙、盒马鲜生,10分钟可达大族广场、沃尔玛山姆会员店、力宝广场

京姐评房:北京亦庄中海京叁号院楼盘的问题答疑

请问京姐 《中海京叁号院》什么时候交房?(收房时间)交付标准是什么?

答:交房时间预计2023年底。精装修交付

京姐评房:北京亦庄中海京叁号院楼盘的问题答疑

请问京姐 《中海京叁号院》附近最近的地铁和高速有哪些?

答:300米可达T1号线奔驰北站, 京台、京沪、荣华路等三横五纵交错

请问京姐 《中海京叁号院》楼栋分布是什么样的?

答:

京姐评房:北京亦庄中海京叁号院楼盘的问题答疑

请问京姐 《中海京叁号院》的得房率是多少?

答: 中海京叁号院的得房率是 76-78%

请问京姐 《中海京叁号院》的绿地率是多少?

答: 中海京叁号院的绿地率是 32.2%

请问京姐 《中海京叁号院》的容积率是多少?

答: 中海京叁号院的容积率是 2.5

请问京姐 《中海京叁号院》有多少栋楼一共多少户?

答:中海京叁号院一共有21栋楼,998户

请问京姐 《中海京叁号院》的物业是哪个公司?物业费、取暖费是多少钱一平?

答:物业公司是中海物业,物业费暂定6.88,取暖费是30.

请问京姐 《中海京叁号院》周边医院有哪些?

答:5分钟可达北京中医学大学东方医院、10分钟可达北京同仁医院(全科三甲)和北京爱育华妇儿医院、15分钟可达国家康复医院等

请问京姐 《中海京叁号院》的层高是多少?

答:层高:3.05-3.15米

请问京姐 《中海京叁号院》的外立面是什么样的,总高几层?

答:以下是中海京叁号院的外立面效果图

京姐评房:北京亦庄中海京叁号院楼盘的问题答疑

京姐评房:北京亦庄中海京叁号院楼盘的问题答疑

请问京姐 《中海京叁号院》是限竞房吗?

答:不是的,中海京叁号院这个项目是纯商品房,70年大产权。

请问京姐 《中海京叁号院》的首付周期是多少?

答:首套:7天40%二套:7天40%,封顶前40%。

关于中海京叁号院项目的问题京姐今天就给大家解答到这里,如果有还有哪些问题欢迎大家跟京姐交流,由京姐参与撰写的《北京置业手册》里面包含了全北京的新房的利与弊评测,希望能帮到大家。

作者:JJPF66